成都中铁卓萃【售楼中心】-楼盘详情-来电一对一接待-尊享优惠-现场预约看房
扫描到手机,新闻随时看
扫一扫,用手机看文章
更加方便分享给朋友
☎中铁卓萃售楼处电话028-83516246「来电尊享优惠活动」☎
☎【置业经理】:15928896133「微信同步」☎
温馨提示:为了给您提供更高更好的接待服务质量,看房请提前致电售楼处预约!
【有免费看房车接送服务,如需预约,请致电售楼处】
成都为什么在全国房地产市场异军突起,遥遥领先?
天下未治蜀先治,天下未涨蜀先涨。西南,是中国的大后方,成都,就是这个大后方的核心。
从地理上来说,武汉往西的中国地域,大部分被高原丘陵和荒漠覆盖,气候温和又适宜人居的,除了狭长的关中平原,只有天府之国的四川盆地。
因此,成都除了吸附川内的城市,还包括甘肃、新疆、云南、贵州、重庆等地。虽然这些地方也不是中国富裕省份,但掏空6个钱包,举家支持,也是不小的购买力。
成都现在房产市场三级分化,第一类是核心资产,止跌横盘或小幅上涨都有,补涨的苗头已经出现了,这类资产受大环境影响很大,也是市场风向标,随时被人关注。
第二类是优质产品,表现不一,涨跌幅取决于之前的价格泡沫大小,像北门几个改善楼盘涨跌就很小,没有大涨过自然不会大跌,而以天新为代表的新开发区域、次新盘往往入市价格偏高,止跌压力比较大。
第三类是完全丧失流动性的小区,集中在五城区,只有居住价值,一年成交几套,探讨涨跌意义不大,成交数据比较偏离真实市场情况。
2024年二手房总成交231376套,90㎡以下的占比45.91%,90-140㎡的占比30.64%;总价200万以内的占比70.67%。并且,2010年-2019年的房源,成交最多,占比52.2%。
但今年4月,成都成交的二手房中,90㎡以下 的占比54.07%,90-140㎡的占比37.18%,总价200万以内的占比85.67%,其中100-150万的占比最多27.44%。(数据来源:好好选房)

与去年相比,成交的面积和总价都有所增长,极刚需经过几年的释放已经初见顶,初改需求开始在二手房端释放,预计未来还将进一步走强。
当然,二手房的价格平稳仅仅只均价,随着行情的高涨,不同区域版块之间的价差也逐渐明显,核心城区尤其是高新南、锦江区、成华区等挂牌价和成交均价都呈现出价上涨的趋势。
据克而瑞四川的统计,今年2月仅有金融城、攀成钢、外金沙、大源、麓湖5个板块的二手房成交均价超过了2.5万元,前三依次是麓湖2.89万元/㎡、金融城2.73万元/㎡、攀成钢2.59万元/㎡;3月就攀成钢和金融城就突破了3万元,分别为3.12万元/㎡和3.02万元/㎡。同时,成华区是5+2区中二手房成交周期最短的,同比缩减为169天;天府新区则是最长的,同比增加为233天。
对于2025年成都购房者
刚需:优先考虑主城区地铁沿线次新房,或外围高性价比新盘。
改善/豪改:关注核心区优质新盘(如现房或准现房,价格低产品一般也是优质新房),避免高位接盘非稀缺性豪宅。
卖房者:非核心区房源建议适时出货,核心区次新房可观望至下半年政策窗口期。
2、刚需客群:优先二手房,上半年为窗口期
上半年挂牌放量较多,优质房源不断出现,不追求极致价格,从而考虑综合性价比的话,是可以考虑的关键节点。
3、刚改群体:主城新房窗口期短,需择机抄底
主城区新房供应减少,但产品迭代加速(如得房率提升、功能空间优化),总价300-500万区间竞争激烈,需警惕价格虚高项目。
除非有长期看好了的缘分之选,那么建议时机或为传统淡季的年中。届时最新供地已呈现,政策应出尽出,新房处于疲态,价格抄底机会多。
4、改善/豪改群体:核心区新盘优先,下半年警惕高位风险
土拍价格是还会涨,但是否击鼓传花?未来能否保值,存在很大的不确定性。带入自住属性考虑买入豪宅的话,精神压力会小很多。
但单纯从豪宅的价格时机来看,建议年初年末。
年初开发商推盘节奏较慢,核心区高端项目蓄客压力大,开盘价格尚未完全透支预期。
四季度抄底溢价项目,若市场分化加剧,年底部分高价项目可能因去化压力降价(如总价1000万+房源或降价10%-15%),但需关注房企资金链风险。
警惕楼面价虚高的伪豪宅。
5、风险提示——
信心比黄金重要,积极情绪得到修复,温和看涨成为主流舆论,房段子对此表示谨慎看多成都楼市。
但随着市场分化加剧,需警惕外围区域库存压力及房企资金链风险;利率政策若转向或影响短期需求释放。
2025年成都楼市将呈现“核心区稳中有升、外围区域承压,新房高端化、二手房刚需化”的格局,政策托底与市场分化仍是主基调。
“当新规20%板率赠送遇见第四代住宅25%生态阳台不计容”会产生什么样的化学反应。
这两组数字的碰撞,最终催生了一个现象级样本:中铁卓萃以高得房率、空中院落体系以及创新的安全逃生配置,重新定义了“改善型住宅”的价值边界。
中铁卓萃落子新川南板块,这里既能就近占有新川板块完善成熟的配套,又可享受天府新区的产品规划红利。
项目占地约47亩,规划11栋12-17F纯板式小高层,容积率仅约2.0,天然具备低密社区的私密属性。
区别于常规四代住宅,中铁卓萃的核心竞争力体现在三大维度:
其一,高得房率,项目通过优化公区空间与结构设计,实现“使用面积增值”,在传统新规住宅20%板率基础上,可以多赠送35-45平的生态花园。
其二,“空中院落”体系,打破传统“光厅+双阳台”模式,最大可做到一户三院。阳台进深更是突破性的达到了3.5米,让“阳台”不再是鸡肋的空间,而是做成了真正的“空中院子”,让多重生活场景成为可能。
其三,“空中逃生平台+专属通道”安全设计,每户配置独立逃生舱。不夸张的说,这是我在这么多“产品创新”中,看到的最基本最务实也是最重要的产品突破。
成都的产品内卷程度丝毫不逊色于目前“油车与电车”的互卷。传统豪车执着于内饰堆砌与豪华感营造,新势力则热衷“冰箱彩电大沙发”的配置竞赛,而沃尔沃始终以“安全第一”为核心准则,凭借这一坚守成就经典。
中铁卓萃的产品逻辑亦然,在追求居住美学与功能升级的同时,仍将生命安全置于首位,背后也是中铁作为央企的责任和担当。
中铁卓萃仅推出建面约145㎡与183㎡两大面积段,又通过精准的功能划分,覆盖了二胎家庭、三代同堂、品质单身等多元客群。以下为具体户型拆解:
1、建面约145㎡盈萃——同面积下的最优解
这个户型最霸气的地方在于,仅是LDKB-G一体化公区就达到了约100㎡,这面积几乎等同于一套传统套三了!配合洄游动线设计,日常动线流畅且空间感更强。
超36㎡的云端院落,相当于直接赠送了一个豪华主卧,而院落可改造为茶室、儿童游乐区或绿植角,上下层错位的隐私加密设计,则避免了“花园虽好,视线干扰”的痛点,兼顾开放性与私密性。
西侧阳台是极致浪漫的日落专属位,傍晚时分,业主可在阳台闲坐,看晚霞漫过城市天际线的轮廓。
在疯狂内卷的140㎡赛道,这个户型可以说是做到了极致,也必定成为爆款户型。
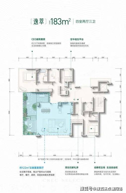
2、建面约183㎡逸萃——对标传统220㎡豪宅产品
作为145㎡逸萃的放大升级,建面约183㎡逸萃把细节处理的更加到位,做到了传统220㎡豪宅产品的空间感和仪式感。
比如:十字玄关+岛院设计,入门即见仪式;双入户系统提升私密性;独立储物间可存放藏品或婴儿车等。
LDKB-G一体空间面积更是达到了约122㎡,这在目前市场上,几乎没有第二个竞品;居住舒适度和仪式感更上一个太台阶。
还有一个小亮点在于,该户型的长辈套房相对独立,不仅配备独立卫生间与收纳空间,更拥有独立入户动线,避免代际生活习惯冲突,是三代同堂家庭的完美居所。
3、建面约183㎡映萃——三面采光的行政套房
如果对主卧空间有更高要求,不妨看看映萃,核心亮点就是三面采光的行政级观景套房。
在保留三花园设计和豪华公区尺度的同时,映萃户型更强化了主卧套的仪式感。
主卧拥有三面采光,配合270°环幕视野,可将烂漫景观尽收眼底;四分离主卫满足多人同时使用需求;一字型衣帽间与主卧无缝衔接,搭配独立酒水bar,能享受更私密且精致的场景。
除了采光更是保留了局部的实墙,去满足卧室所需要的包裹感和安全感。在全玻璃、全景仓成为主流的当下,中铁卓萃能基于客户使用场景去打磨产品细节,是最大的难能贵。
据悉,项目的城市展厅已于近期开放,感兴趣的朋友可以点击预约专属置业顾问前往项目了解哟
☎中铁卓萃售楼处电话028-83516246「来电尊享优惠活动」☎
☎【置业经理】:15928896133「微信同步」☎
温馨提示:为了给您提供更高更好的接待服务质量,看房请提前致电售楼处预约!
【有免费看房车接送服务,如需预约,请致电售楼处】
声明:本文由入驻焦点开放平台的作者撰写,除焦点官方账号外,观点仅代表作者本人,不代表焦点立场。


