成都保利.逸都和府叠拼别墅售楼处【2024成都新房二手房成交情况及2025年成都新房走势】
扫描到手机,新闻随时看
扫一扫,用手机看文章
更加方便分享给朋友
02883516246
☎保利.逸都和府售楼处电话028-83516246「来电尊享优惠活动」☎
☎【保利.逸都和府置业经理】:15928896133「微信同步」☎
温馨提示:为了给您提供更高更好的接待服务质量,看房请提前致电售楼处预约!
【有免费看房车接送服务,如需预约,请致电售楼处】
成都现在房产市场三级分化,第一类是核心资产,止跌横盘或小幅上涨都有,补涨的苗头已经出现了,这类资产受大环境影响很大,也是市场风向标,随时被人关注。
第二类是优质产品,表现不一,涨跌幅取决于之前的价格泡沫大小,像北门几个改善楼盘涨跌就很小,没有大涨过自然不会大跌,而以天新为代表的新开发区域、次新盘往往入市价格偏高,止跌压力比较大。
第三类是完全丧失流动性的小区,集中在五城区,只有居住价值,一年成交几套,探讨涨跌意义不大,成交数据比较偏离真实市场情况。
2024年成都新房市场趋向高改化:成交主力面积段为120-144㎡,成交主力总价段为200-300万。其中,建面180㎡以上新房供应总量约为255万方,成交总量约为258万方,为成都新房市场成交次主力。
二手房成首置、首改家庭主阵地:2024年大成都二手房成交主力面积段为90㎡以内,成交次主力面积段为90-120㎡,建面120㎡以内中小户型的成交套数占比超八成,这说明在成都购买二手房市场的家庭,主要住房需求为首次置业或者首次改善;
根据2024年大成都二手房成交价格来看,总价两百万以内的房源成交占比接近九成,这说明活跃在成都二手房市场的家庭购房预期价格普遍在两百万以内。据CRIC数据,11月成都二手房成交规模居全国重点52城之首,远高于上海、北京,约为广州+深圳单月二手房成交总量的1.65倍。
成都二手房成交量之所以能领先于其他城市,一方面是因为卖旧买新的置换群体日渐增多,促使二手房挂牌量持续增加。
关键是成都对四川川内具备天然的人口吸附能力,城市首位度居全国第四,一城GDP占全省36.7%,仅次于银川、西宁、长春三市。
其二是人口流入在全国处于中上水平,考虑到成都已经有超2100万常住城市人口,这个数据也是很亮眼的。
第三是新房大幅度缩量,购买力转向二手市场,特别是总价400万以内这部分需求,在主城供应量正在减少。

对于2025年成都的房产走势,预测如下:5+2区域全年只卖了31宗地,新房库存见底,多个200㎡+户型曝光,大户型成明年新房供应主流。
跟期房相比,现房的优势在于「确定性」和「更省心」。主要是现房的3大优势给足了买房人安全感。
现房优势一:眼见为实!
现房的销售形式,已经将项目的实景呈现在买房人眼前,看得见摸得着。
买房人还能将房屋的宣传材料与实物一一对照。小区的建筑、环境、质量一目了然。这样能减少交房时存在诸多问题产生的纠纷。
因此,真实可见的产品给了买房人安全感。
现房优势二:居住不延期!
购买期房相当于押宝,有着很多的不确定性,万一开发商暴雷,不仅让业主们交房延期,甚至有可能会出现烂尾的情况。
而现房交钱办完手续就能拿到钥匙,随时准备装修入住,不用担心推迟交房。
对于着急要婚房、上学的人来说,现房真的解决了不少买房人的燃眉之急。
现房优势三:资金投入成本低!
买房无非就是买期房、现房、二手房。这三者之间资金投入也都不同。
要是买期房,要等2年左右才能拿房。对于还在租房的买房人而言,就意味着要多付2年的租金。
如果选择二手房,则需要额外支付一笔中介费。
现房则是结合了期房与二手房的两大优势,无需等待交付时间、无需支付中介费。
成都豪宅聚集的东进价值主轴之上占位大面醇熟区域核心享受家门口12年菁英教育配套公园低密清水高层.叠拼.洋房-保利.逸都和府项目资料户型一览!!!
【保利逸都和府】
✅清盘特惠好房
✅龙泉大面现房花园叠墅
?下叠:面积281平、约400万起
?中叠:面积254平、260万起
?上叠:面积173平、320万起
奥特莱斯旁,读青台山小学
项目基础信息:
定位:保利.逸都和府宋氏美学
属性:南北向,公园低密墅居
位置:青台山与车城大道交汇处
占地:44亩
容积率:2.0绿化率:30%容积率:2物业:保利物业
总户数:424户
可售车位:1:1.7
梯户比:2T4/1T2交房时间:2023.7.15
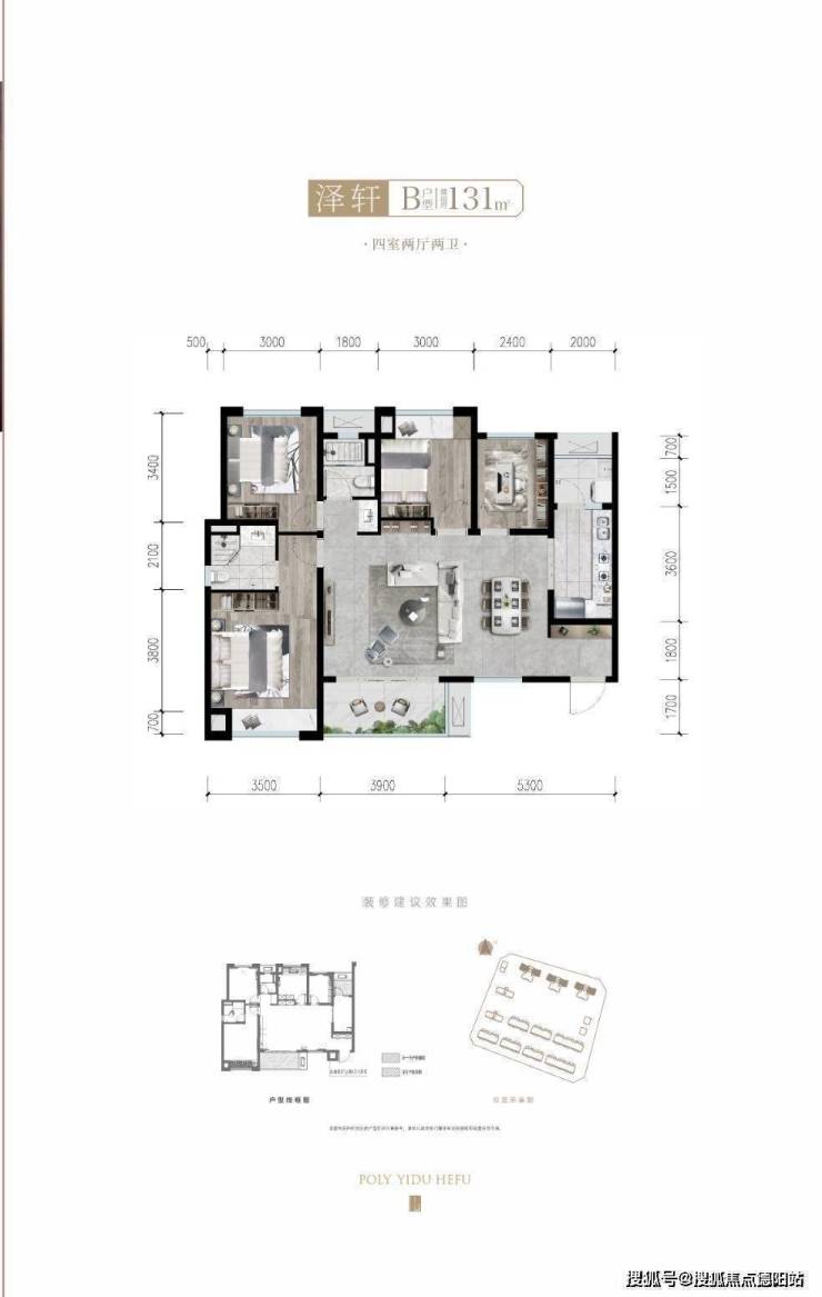
产品面积:高层109-131平22F、26F。叠拼173-282平(上叠173平方、中叠254平方、下叠282平方)6F(花园面积50-140平)。洋房128平11F
项目产品
1.整体项目44亩,容积率2.0,最大超190m楼间距5万方立体园林,9米奢阔阳台,览尽城市风景为保障居住舒适度。
2.整体采用纯南北行列式布局,这样布局的优势在于能形成一个超大的景观中庭,小区景观中轴长达约110㎡
3.其中2T4户高层住宅,高度22-26F,建筑面积段为109㎡套三双卫及131㎡套四双卫户型;还有总高6层的上中下3叠产品,面积段173-282㎡,户户带花园,尽享私密专属空间。
☎保利.逸都和府售楼处电话028-83516246「来电尊享优惠活动」☎
☎【保利.逸都和府置业经理】:15928896133「微信同步」☎
温馨提示:为了给您提供更高更好的接待服务质量,看房请提前致电售楼处预约!
【有免费看房车接送服务,如需预约,请致电售楼处】
免责声明:
以上内容仅作为邀约邀请,涉及的图片为部分区域实拍图和美学畅想图,具体内容请以现场公示和合同约定为准;本文部分资料、部分图片来源于网络,如有侵权请联系我们删除。
声明:本文由入驻焦点开放平台的作者撰写,除焦点官方账号外,观点仅代表作者本人,不代表焦点立场。


