成都华润上璟润府【售楼中心】-楼盘详情-来电一对一接待-尊享优惠-预约国庆看房
扫描到手机,新闻随时看
扫一扫,用手机看文章
更加方便分享给朋友
☎上璟润府售楼处电话028-83516246「来电尊享优惠活动」☎
☎【置业经理】:15928896133「微信同步」☎
温馨提示:为了给您提供更高更好的接待服务质量,看房请提前致电售楼处预约!
【有免费看房车接送服务,如需预约,请致电售楼处】
成都为什么在全国房地产市场异军突起,遥遥领先?
天下未治蜀先治,天下未涨蜀先涨。西南,是中国的大后方,成都,就是这个大后方的核心。
从地理上来说,武汉往西的中国地域,大部分被高原丘陵和荒漠覆盖,气候温和又适宜人居的,除了狭长的关中平原,只有天府之国的四川盆地。
因此,成都除了吸附川内的城市,还包括甘肃、新疆、云南、贵州、重庆等地。虽然这些地方也不是中国富裕省份,但掏空6个钱包,举家支持,也是不小的购买力。
9月美联储降息后,成都的楼市出现了一些新的变化。我为你梳理了当前的情况和可能的发展趋势,希望能帮助你做判断。
成都楼市在降息后的主要动态:
方面 当前状况 影响因素与趋势
房贷利率 首套房贷利率执行3.0% 未来仍有下调空间,5年期LPR若再降30基点,利率或首次触及2.5%区间
购房成本 以100万元30年期贷款计算,月供可减少近700元,总利息节省25万元 月供减少,购房负担降低
新房供应 9月预计23个项目超1500套新房入市,成华区是供应主力 核心区土地供应缩减,房企转向产品升级(如层高突破3.3米,全屋智能精装)
市场热度 9月前两周项目平均周度来访量环比上升22%,认购量环比上升40%,客户转化率达4.8% 核心地段改善型需求韧性较强
市场分化 核心区域(如金融城板块)热度较高;远郊区域(如龙泉驿、温江)二手房挂牌量激增,部分房东降价8%-10% 购房逻辑迭代,更看重三甲医院、地铁TOD、物业响应等硬指标
外资流入 外资加速布局中国核心城市房地产,偏好一线和强二线城市(如成都)的核心资产 外资正从“抄底住宅”转向“价值持有”策略,通过REITs、私募基金等形式参与
房企融资 美联储降息降低了房企美元债融资成本 融资环境改善,但房企整体债务压力仍未根本缓解,行业分化加剧,头部房企优势更明显
“金九银十”成色 市场热度有所回升,但并非所有项目都能普享市场回暖 房企推盘和营销力度提升,但楼市行情仍受宏观经济等多因素影响,新政刺激可能以短期脉冲效果为主
? 给购房者的建议
· 对于刚需和改善型购房者:当前降息降低了购房成本,是一个值得关注的窗口期。但更重要的是根据自身需求和经济实力做出决策。
· 在区域选择上,应优先考虑核心地段,这些区域通常有更好的配套设施和更强的抗风险能力。
· 对于有“卖旧买新”打算的改善型客户,当前二手房市场活跃,可利用这个机会加快置换效率。
· 投资需格外谨慎。虽然利率较低,但“房住不炒”的政策基调没有改变。市场分化明显,非核心区域的房产流动性可能较差,未来升值空间也相对有限。
? 总结一下
9月降息后的成都楼市,整体有望温和复苏,但分化是主旋律。核心区优质改善项目可能保持较高热度,而远郊区域则继续面临压力。
未来的成都楼市,产品力本身、地段价值、配套资源将越来越成为决定性的因素。关注长期价值,谨慎做出决策,总是对的。
希望这些信息能帮到你。如果你有具体的购房区域或者类型(比如刚需小户还是改善大宅)想了解,也可以告诉我,或许我能提供更聚焦的分析。
作为成都高端改善型住宅标杆,上璟润府雄踞东三环黄金区位,匠心打造集生态公园、优质教育、品质住区、繁华商业于一体的都会生活范本。
立体交通网络
项目坐拥地铁4号线现成配套,9号线及12号线(规划中)未来将形成三轨交汇格局,东三环快速路构建15分钟都市生活圈。
生态资源禀赋
坐享青龙湖湿地公园(逾万亩)、时代云朵公园(约2万㎡)及上璟公园(约160亩)三重绿肺环绕,形成天然氧吧生活区。
优质教育配套
周边汇聚四川师范大学附属临枫小学、树德中学领办的华川中学等优质教育资源,项目北侧规划新建小学(具体入学政策以教育局最终文件为准)。
繁华商业体系
华润置地打造的时代润街(约1.5万㎡)已投入运营,地铁4号线快速接驳万象城、建设路、凯德广场等核心商圈,范家院子TOD商业综合体即将呈现。

上璟润府以约160亩生态公园为基底,匠心营造1公里溪谷景观带、1.5公里蓝花楹主题大道、3.9公里林荫步道系统,创新打造溪谷十二景、四季主题花园、自然教育基地、全龄运动空间等特色配套,让每次归家都成为沉浸式的公园漫游体验。


5#地块占据上璟公园南侧制高点,依托天然地势打造阶梯式景观布局,北向俯瞰百米溪谷景观,营造出"登高望远"的尊贵人居体验。
低密墅区 礼序归家
1.88超低容积率配合点式楼群布局,形成通透的庭院围合空间。灵动水系与立体园林交织,打造五重归家礼序体系,重塑高端社区生活仪式感。
限量臻品 终极改善
叠拼产品采用大平层设计理念,在景观视野、空间尺度、功能分区、私密性等方面全面升级。创新性的自然采光系统、超高实用率、南北双庭院设计,重新定义高端住宅的空间美学标准。
【户型臻鉴】
下叠-润锦-建面约227㎡ 四室两厅两卫
【全明地下会所空间,成都顶配】
双层下沉式阳光地下室,满足高端客群健身娱乐、私人收藏、商务接待等多元化需求。
【双庭院设计,打造无界生活场域】
首层双面景观庭院实现花园入户,LDKB一体化厅堂设计同时满足社交宴请与家庭聚会需求。
意境创想图,非交付标准
【全景主卧套房,双阳台设计】
13.5米L型观景阳台,配备步入式衣帽间及双台盆卫浴系统,南北双阳台确保全天候阳光入户。
意境创想图,非交付标准
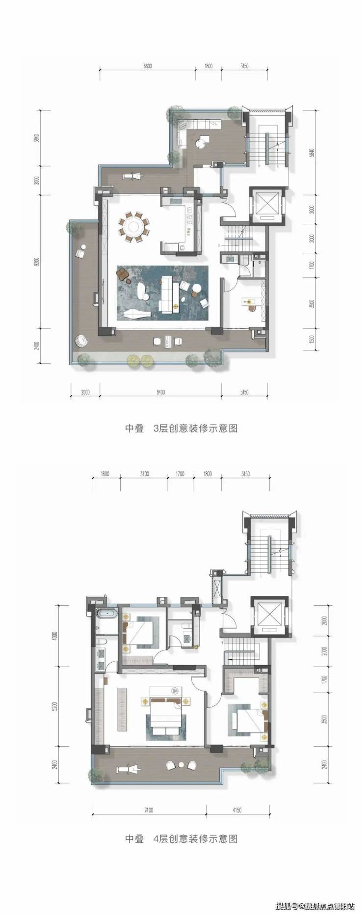
中叠-润安-建面约210㎡ 四室两厅三卫
【270°环幕阳台,公园视野无遮挡】
创新三面观景阳台设计,突破传统空间界限,可灵活改造为阳光花房、休闲茶室或景观书房。
【奢阔主卧套间,极致采光体验】
11.5米L型全景阳台衔接独立衣帽间,双台盆卫浴系统,打造酒店式居住体验。
☎上璟润府售楼处电话028-83516246「来电尊享优惠活动」☎
☎【置业经理】:15928896133「微信同步」☎
温馨提示:为了给您提供更高更好的接待服务质量,看房请提前致电售楼处预约!
【有免费看房车接送服务,如需预约,请致电售楼处】
声明:本文由入驻焦点开放平台的作者撰写,除焦点官方账号外,观点仅代表作者本人,不代表焦点立场。


