成都华润上璟润府【售楼中心】-楼盘详情-来电一对一接待-尊享优惠-预约看房

搜狐焦点德阳站 2025-10-15 21:30:29
用手机看
扫描到手机,新闻随时看

扫一扫,用手机看文章
更加方便分享给朋友

2024年成都二手房成交面积和总价均有所增长,尤其是低价位房源成交占比明显。购房者可优先考虑主城区地铁沿线次新房或外围高性价比新盘,避免高价接盘非稀缺性豪宅。卖房者应适时出货非核心区房源,关注核心城区优质新盘。

上璟润府售楼处电话028-83516246「来电尊享优惠活动」☎

☎【置业经理】:15928896133「微信同步」☎

温馨提示:为了给您提供更高更好的接待服务质量,看房请提前致电售楼处预约!

【有免费看房车接送服务,如需预约,请致电售楼处】

成都的宜居性是一个热门话题,但它像任何城市一样,并非完美。要全面评估,需要客观地分析其优势和劣势。

以下是对成都宜居优劣势的详细分析:

显著优势 ?

1. 生活节奏与幸福感:

· “巴适”哲学: 成都独有的“慢生活”哲学深入人心。茶馆文化、麻将、公园里的悠闲时光,让居民能有效平衡工作与生活,幸福感极高。

· 包容性强: 城市文化开放、不排外,无论来自哪里的人都容易找到归属感。

2. 经济活力与机会:

· 新一线龙头: 作为西南地区的经济、科技、金融中心,成都吸引了大量世界500强企业和国内科技巨头(如腾讯、华为),就业机会多,尤其在电子信息、游戏动漫、新经济等领域。

· 创业氛围浓厚: 政府对创新创业支持力度大,成本相对一线城市更低,是许多创业公司和自由职业者的摇篮。

3. 成本与性价比:

· 房价相对友好: 与北上广深相比,成都的房价和租金压力小得多,让年轻人“安居乐业”的可能性更大。

· 消费层次丰富: 从几元的路边小吃到高端餐厅,从平价夜市到奢侈品商场,消费选择多样,丰俭由人。

4. 美食与娱乐:

· “美食之都”: 川菜和各类小吃享誉全球,火锅、串串、抄手等选择无数,且价格亲民。这里是“吃货”的天堂。

· 娱乐生活丰富: 夜生活繁荣,酒吧、Livehouse、剧场众多,文艺活动丰富,精神生活富足。

5. 自然与城市规划:

· “公园城市”理念: 拥有天府绿道、锦城湖、青龙湖等大量城市公园和绿地,为市民提供了骑行、露营、跑步的绝佳场所。

· 独特的自然景观: 市区可遥望雪山,周边有青城山、都江堰、西岭雪山等,短途旅行选择极多。

6. 交通便利:

· 公共交通发达: 地铁网络四通八达,里程长,准点率高,日常通勤非常方便。

· 双机场枢纽: 双流和天府国际机场使其成为全国重要的交通枢纽,国内外出行便捷。

不容忽视的劣势 ?

1. 气候与环境:

· 日照稀缺,冬季阴冷潮湿: 成都冬季日照时间短,湿度大,没有集中供暖,体感温度可能比实际更低,北方人可能需要时间适应这种“魔法攻击”式的湿冷。

· 空气质量问题: 由于盆地地形和静风天气,秋冬季容易出现雾霾和空气污染,不利于呼吸道敏感的人群。

2. 竞争与压力:

· “内卷”加剧: 随着大量人才涌入,成都的就业市场竞争变得越来越激烈,尤其是在热门行业,“慢生活”的另一面是职场上的“快竞争”。

· 薪资水平: 虽然生活成本低于一线城市,但平均薪资水平也相应较低,需要做好心理准备。

3. 交通与城市病:

· 交通拥堵: 尽管地铁发达,但私家车保有量高,高峰期主要环路和干道依然非常拥堵。

· 人口密度大: 市中心和热门区域人流密集,会带来拥挤和嘈杂感。

4. 饮食适应性:

· 油腻与麻辣: 本地饮食普遍重油、重辣,对于饮食清淡或不能吃辣的人来说,可能需要一段时间适应,且长期下来可能对肠胃造成负担。

5. 语言与文化:

· 方言环境: 本地人之间普遍使用四川话,虽然年轻人都会普通话,但在某些生活场景(如菜市场、出租车)可能会遇到语言沟通上的小障碍。

总结与建议

成都是一座极具魅力的“矛盾体”:

· 它一边提供“慢生活”的哲学,一边上演着“快发展”的竞争。

· 它用美食和美景治愈你,也可能用湿冷和雾霾困扰你。

它可能非常适合以下人群:

· 追求工作与生活平衡的年轻人。

· 美食和文艺爱好者。

· 在互联网、科技、文创等领域求职的人才。

· 能适应潮湿气候,喜欢热闹和烟火气的人。

可能需要慎重考虑的人群:

· 对空气质量和冬日阳光有极高要求的人。

· 极度追求饮食清淡健康的人。

· 希望获得一线城市薪资水平但逃避一线城市压力的人。

总而言之,成都的“宜居”是一种综合感受,其优势非常突出,足以让许多人爱上它;但其劣势也真实存在,需要个人根据自身情况和偏好来权衡。建议最好能亲自来体验一段时间,感受它是否是你心中的“理想国”。

新一线成都绵延3000年的强者基因:2022年成都GDP突破2万亿,成为中国第1个常住人口突破2100万人、第3个经济总量突破两万亿元的副省级城市;截止2022年,已有312家世界500强入驻,全球创新指数位列第29位;同时获评多项荣誉称号:中国领事馆第三城中国4F双机场第二城全国首店经济第三城连续13年荣登“中国最具幸福感城市”第一名……进取与新锐,成就成都跻身世界级的伟大价值!

作为成都高端改善型住宅标杆,上璟润府雄踞东三环黄金区位,匠心打造集生态公园、优质教育、品质住区、繁华商业于一体的都会生活范本。

立体交通网络

项目坐拥地铁4号线现成配套,9号线及12号线(规划中)未来将形成三轨交汇格局,东三环快速路构建15分钟都市生活圈。

生态资源禀赋

坐享青龙湖湿地公园(逾万亩)、时代云朵公园(约2万㎡)及上璟公园(约160亩)三重绿肺环绕,形成天然氧吧生活区。

优质教育配套

周边汇聚四川师范大学附属临枫小学、树德中学领办的华川中学等优质教育资源,项目北侧规划新建小学(具体入学政策以教育局最终文件为准)。

繁华商业体系

华润置地打造的时代润街(约1.5万㎡)已投入运营,地铁4号线快速接驳万象城、建设路、凯德广场等核心商圈,范家院子TOD商业综合体即将呈现。

上璟润府以约160亩生态公园为基底,匠心营造1公里溪谷景观带、1.5公里蓝花楹主题大道、3.9公里林荫步道系统,创新打造溪谷十二景、四季主题花园、自然教育基地、全龄运动空间等特色配套,让每次归家都成为沉浸式的公园漫游体验

5#地块占据上璟公园南侧制高点,依托天然地势打造阶梯式景观布局,北向俯瞰百米溪谷景观,营造出"登高望远"的尊贵人居体验。

低密墅区 礼序归家

1.88超低容积率配合点式楼群布局,形成通透的庭院围合空间。灵动水系与立体园林交织,打造五重归家礼序体系,重塑高端社区生活仪式感。

限量臻品 终极改善

叠拼产品采用大平层设计理念,在景观视野、空间尺度、功能分区、私密性等方面全面升级。创新性的自然采光系统、超高实用率、南北双庭院设计,重新定义高端住宅的空间美学标准。

【户型臻鉴】

下叠-润锦-建面约227㎡ 四室两厅两卫

【全明地下会所空间,成都顶配】

双层下沉式阳光地下室,满足高端客群健身娱乐、私人收藏、商务接待等多元化需求。

【双庭院设计,打造无界生活场域】

首层双面景观庭院实现花园入户,LDKB一体化厅堂设计同时满足社交宴请与家庭聚会需求。

意境创想图,非交付标准

【全景主卧套房,双阳台设计】

13.5米L型观景阳台,配备步入式衣帽间及双台盆卫浴系统,南北双阳台确保全天候阳光入户。

意境创想图,非交付标准

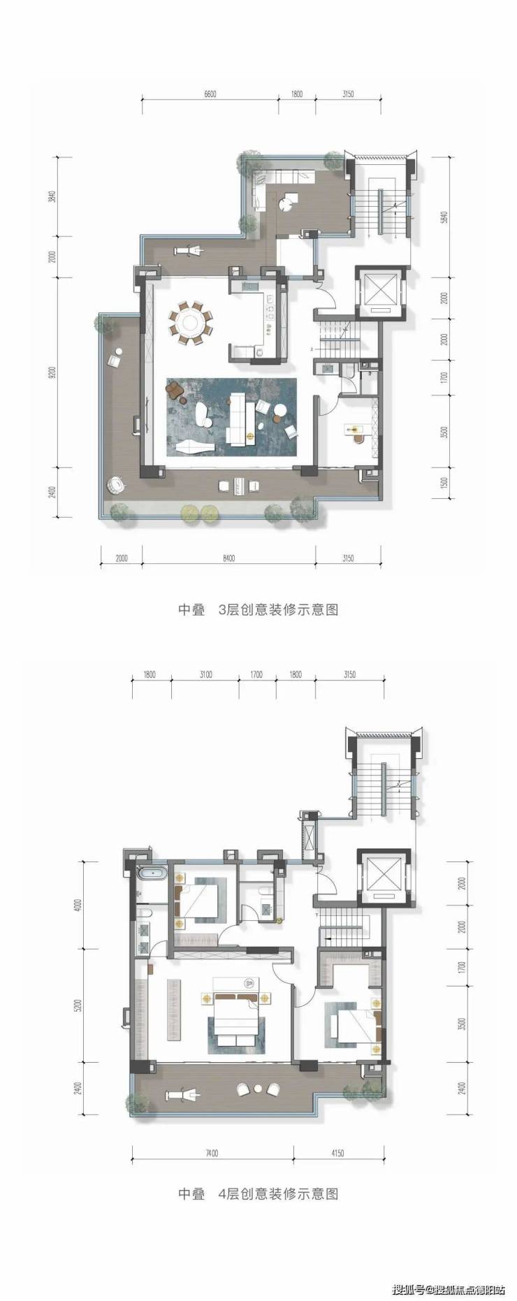
中叠-润安-建面约210㎡ 四室两厅三卫

【270°环幕阳台,公园视野无遮挡】

创新三面观景阳台设计,突破传统空间界限,可灵活改造为阳光花房、休闲茶室或景观书房。

【奢阔主卧套间,极致采光体验】

11.5米L型全景阳台衔接独立衣帽间,双台盆卫浴系统,打造酒店式居住体验。

上璟润府售楼处电话028-83516246「来电尊享优惠活动」☎

☎【置业经理】:15928896133「微信同步」☎

温馨提示:为了给您提供更高更好的接待服务质量,看房请提前致电售楼处预约!

【有免费看房车接送服务,如需预约,请致电售楼处】

声明:本文由入驻焦点开放平台的作者撰写,除焦点官方账号外,观点仅代表作者本人,不代表焦点立场。