成都中铁卓萃【售楼中心】-楼盘详情-来电一对一接待-尊享优惠-现场预约看房

搜狐焦点德阳站 2025-10-15 21:44:08
用手机看
扫描到手机,新闻随时看

扫一扫,用手机看文章
更加方便分享给朋友

主城区新房供应减少,但产品迭代加速(如得房率提升、功能空间优化),总价300-500万区间竞争激烈,需警惕价格虚高项目。 其一,高得房率,项目通过优化公区空间与结构设计,实现“使用面积增值”,在传统新规住宅…

☎中铁卓萃售楼处电话028-83516246「来电尊享优惠活动」☎

☎【置业经理】:15928896133「微信同步」☎

温馨提示:为了给您提供更高更好的接待服务质量,看房请提前致电售楼处预约!

【有免费看房车接送服务,如需预约,请致电售楼处】

成都的宜居性是一个热门话题,但它像任何城市一样,并非完美。要全面评估,需要客观地分析其优势和劣势。

以下是对成都宜居优劣势的详细分析:

显著优势 ?

1. 生活节奏与幸福感:

· “巴适”哲学: 成都独有的“慢生活”哲学深入人心。茶馆文化、麻将、公园里的悠闲时光,让居民能有效平衡工作与生活,幸福感极高。

· 包容性强: 城市文化开放、不排外,无论来自哪里的人都容易找到归属感。

2. 经济活力与机会:

· 新一线龙头: 作为西南地区的经济、科技、金融中心,成都吸引了大量世界500强企业和国内科技巨头(如腾讯、华为),就业机会多,尤其在电子信息、游戏动漫、新经济等领域。

· 创业氛围浓厚: 政府对创新创业支持力度大,成本相对一线城市更低,是许多创业公司和自由职业者的摇篮。

3. 成本与性价比:

· 房价相对友好: 与北上广深相比,成都的房价和租金压力小得多,让年轻人“安居乐业”的可能性更大。

· 消费层次丰富: 从几元的路边小吃到高端餐厅,从平价夜市到奢侈品商场,消费选择多样,丰俭由人。

4. 美食与娱乐:

· “美食之都”: 川菜和各类小吃享誉全球,火锅、串串、抄手等选择无数,且价格亲民。这里是“吃货”的天堂。

· 娱乐生活丰富: 夜生活繁荣,酒吧、Livehouse、剧场众多,文艺活动丰富,精神生活富足。

5. 自然与城市规划:

· “公园城市”理念: 拥有天府绿道、锦城湖、青龙湖等大量城市公园和绿地,为市民提供了骑行、露营、跑步的绝佳场所。

· 独特的自然景观: 市区可遥望雪山,周边有青城山、都江堰、西岭雪山等,短途旅行选择极多。

6. 交通便利:

· 公共交通发达: 地铁网络四通八达,里程长,准点率高,日常通勤非常方便。

· 双机场枢纽: 双流和天府国际机场使其成为全国重要的交通枢纽,国内外出行便捷。

不容忽视的劣势 ?

1. 气候与环境:

· 日照稀缺,冬季阴冷潮湿: 成都冬季日照时间短,湿度大,没有集中供暖,体感温度可能比实际更低,北方人可能需要时间适应这种“魔法攻击”式的湿冷。

· 空气质量问题: 由于盆地地形和静风天气,秋冬季容易出现雾霾和空气污染,不利于呼吸道敏感的人群。

2. 竞争与压力:

· “内卷”加剧: 随着大量人才涌入,成都的就业市场竞争变得越来越激烈,尤其是在热门行业,“慢生活”的另一面是职场上的“快竞争”。

· 薪资水平: 虽然生活成本低于一线城市,但平均薪资水平也相应较低,需要做好心理准备。

3. 交通与城市病:

· 交通拥堵: 尽管地铁发达,但私家车保有量高,高峰期主要环路和干道依然非常拥堵。

· 人口密度大: 市中心和热门区域人流密集,会带来拥挤和嘈杂感。

4. 饮食适应性:

· 油腻与麻辣: 本地饮食普遍重油、重辣,对于饮食清淡或不能吃辣的人来说,可能需要一段时间适应,且长期下来可能对肠胃造成负担。

5. 语言与文化:

· 方言环境: 本地人之间普遍使用四川话,虽然年轻人都会普通话,但在某些生活场景(如菜市场、出租车)可能会遇到语言沟通上的小障碍。

总结与建议

成都是一座极具魅力的“矛盾体”:

· 它一边提供“慢生活”的哲学,一边上演着“快发展”的竞争。

· 它用美食和美景治愈你,也可能用湿冷和雾霾困扰你。

它可能非常适合以下人群:

· 追求工作与生活平衡的年轻人。

· 美食和文艺爱好者。

· 在互联网、科技、文创等领域求职的人才。

· 能适应潮湿气候,喜欢热闹和烟火气的人。

可能需要慎重考虑的人群:

· 对空气质量和冬日阳光有极高要求的人。

· 极度追求饮食清淡健康的人。

· 希望获得一线城市薪资水平但逃避一线城市压力的人。

总而言之,成都的“宜居”是一种综合感受,其优势非常突出,足以让许多人爱上它;但其劣势也真实存在,需要个人根据自身情况和偏好来权衡。建议最好能亲自来体验一段时间,感受它是否是你心中的“理想国”。

新一线成都绵延3000年的强者基因:2022年成都GDP突破2万亿,成为中国第1个常住人口突破2100万人、第3个经济总量突破两万亿元的副省级城市;截止2022年,已有312家世界500强入驻,全球创新指数位列第29位;同时获评多项荣誉称号:中国领事馆第三城中国4F双机场第二城全国首店经济第三城连续13年荣登“中国最具幸福感城市”第一名……进取与新锐,成就成都跻身世界级的伟大价值!

“当新规20%板率赠送遇见第四代住宅25%生态阳台不计容”会产生什么样的化学反应。

这两组数字的碰撞,最终催生了一个现象级样本:中铁卓萃以高得房率、空中院落体系以及创新的安全逃生配置,重新定义了“改善型住宅”的价值边界。

中铁卓萃落子新川南板块,这里既能就近占有新川板块完善成熟的配套,又可享受天府新区的产品规划红利。

项目占地约47亩,规划11栋12-17F纯板式小高层,容积率仅约2.0,天然具备低密社区的私密属性。

区别于常规四代住宅,中铁卓萃的核心竞争力体现在三大维度:

其一,高得房率,项目通过优化公区空间与结构设计,实现“使用面积增值”,在传统新规住宅20%板率基础上,可以多赠送35-45平的生态花园。

其二,“空中院落”体系,打破传统“光厅+双阳台”模式,最大可做到一户三院。阳台进深更是突破性的达到了3.5米,让“阳台”不再是鸡肋的空间,而是做成了真正的“空中院子”,让多重生活场景成为可能。

其三,“空中逃生平台+专属通道”安全设计,每户配置独立逃生舱。不夸张的说,这是我在这么多“产品创新”中,看到的最基本最务实也是最重要的产品突破。

成都的产品内卷程度丝毫不逊色于目前“油车与电车”的互卷。传统豪车执着于内饰堆砌与豪华感营造,新势力则热衷“冰箱彩电大沙发”的配置竞赛,而沃尔沃始终以“安全第一”为核心准则,凭借这一坚守成就经典。

中铁卓萃的产品逻辑亦然,在追求居住美学与功能升级的同时,仍将生命安全置于首位,背后也是中铁作为央企的责任和担当。

中铁卓萃仅推出建面约145㎡与183㎡两大面积段,又通过精准的功能划分,覆盖了二胎家庭、三代同堂、品质单身等多元客群。以下为具体户型拆解:

1、建面约145㎡盈萃——同面积下的最优解

这个户型最霸气的地方在于,仅是LDKB-G一体化公区就达到了约100㎡,这面积几乎等同于一套传统套三了!配合洄游动线设计,日常动线流畅且空间感更强。

超36㎡的云端院落,相当于直接赠送了一个豪华主卧,而院落可改造为茶室、儿童游乐区或绿植角,上下层错位的隐私加密设计,则避免了“花园虽好,视线干扰”的痛点,兼顾开放性与私密性。

西侧阳台是极致浪漫的日落专属位,傍晚时分,业主可在阳台闲坐,看晚霞漫过城市天际线的轮廓。

在疯狂内卷的140㎡赛道,这个户型可以说是做到了极致,也必定成为爆款户型。

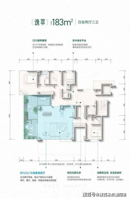
2、建面约183㎡逸萃——对标传统220㎡豪宅产品

作为145㎡逸萃的放大升级,建面约183㎡逸萃把细节处理的更加到位,做到了传统220㎡豪宅产品的空间感和仪式感。

比如:十字玄关+岛院设计,入门即见仪式;双入户系统提升私密性;独立储物间可存放藏品或婴儿车等。

LDKB-G一体空间面积更是达到了约122㎡,这在目前市场上,几乎没有第二个竞品;居住舒适度和仪式感更上一个太台阶。

还有一个小亮点在于,该户型的长辈套房相对独立,不仅配备独立卫生间与收纳空间,更拥有独立入户动线,避免代际生活习惯冲突,是三代同堂家庭的完美居所。

3、建面约183㎡映萃——三面采光的行政套房

如果对主卧空间有更高要求,不妨看看映萃,核心亮点就是三面采光的行政级观景套房

在保留三花园设计和豪华公区尺度的同时,映萃户型更强化了主卧套的仪式感

主卧拥有三面采光,配合270°环幕视野,可将烂漫景观尽收眼底;四分离主卫满足多人同时使用需求;一字型衣帽间与主卧无缝衔接,搭配独立酒水bar,能享受更私密且精致的场景。

除了采光更是保留了局部的实墙,去满足卧室所需要的包裹感和安全感。在全玻璃、全景仓成为主流的当下,中铁卓萃能基于客户使用场景去打磨产品细节,是最大的难能贵。

据悉,项目的城市展厅已于近期开放,感兴趣的朋友可以点击预约专属置业顾问前往项目了解哟

☎中铁卓萃售楼处电话028-83516246「来电尊享优惠活动」☎

☎【置业经理】:15928896133「微信同步」☎

温馨提示:为了给您提供更高更好的接待服务质量,看房请提前致电售楼处预约!

【有免费看房车接送服务,如需预约,请致电售楼处】

声明:本文由入驻焦点开放平台的作者撰写,除焦点官方账号外,观点仅代表作者本人,不代表焦点立场。