成都房价2025最新报价走势,成都中铁卓萃售楼部,成都中铁卓萃价格折扣优惠
扫描到手机,新闻随时看
扫一扫,用手机看文章
更加方便分享给朋友
02883516246
☎中铁卓萃售楼处电话028-83516246「来电尊享优惠活动」☎
☎【置业经理】:15928896133「微信同步」☎
温馨提示:为了给您提供更高更好的接待服务质量,看房请提前致电售楼处预约!
【有免费看房车接送服务,如需预约,请致电售楼处】
成都新房与二手房价格走势
新房价格。
2025年10月新房公示均价为17993元/㎡,样本楼盘平均单价16219.70元/㎡,环比9月上涨0.19%。2025年1-9月整体均价16321.11元/㎡,9月环比微涨0.07%,显示价格企稳回升。
二手房价格。
10月挂牌均价12894元/㎡,环比持平;9月参考均价14842元/㎡,环比上涨1.22%。2025年1-9月累计成交超18万套,9月成交量19581套,同比增长28.7%,市场活跃度较高。
区域分化与市场特征
核心区域:锦江区新房均价35409元/㎡,高新区33493元/㎡,金融城板块高端项目成交价达55000元/㎡。
远郊区域:青白江区新房均价跌破8000元/㎡(实际成交约4866元/㎡),崇州、新都等区域价格同比下跌近5%,库存去化周期超30个月。
成交量与结构:小户型(90㎡以下)占二手房成交52%,120㎡以上改善型需求占比升至32%;核心区次新房议价空间仅5%-8%,远郊老旧房源降价20%仍难成交。
新一线成都绵延3000年的强者基因:2022年成都GDP突破2万亿,成为中国第1个常住人口突破2100万人、第3个经济总量突破两万亿元的副省级城市;截止2022年,已有312家世界500强入驻,全球创新指数位列第29位;同时获评多项荣誉称号:中国领事馆第三城中国4F双机场第二城全国首店经济第三城连续13年荣登“中国最具幸福感城市”第一名……进取与新锐,成就成都跻身世界级的伟大价值!
“当新规20%板率赠送遇见第四代住宅25%生态阳台不计容”会产生什么样的化学反应。
这两组数字的碰撞,最终催生了一个现象级样本:中铁卓萃以高得房率、空中院落体系以及创新的安全逃生配置,重新定义了“改善型住宅”的价值边界。
中铁卓萃落子新川南板块,这里既能就近占有新川板块完善成熟的配套,又可享受天府新区的产品规划红利。
项目占地约47亩,规划11栋12-17F纯板式小高层,容积率仅约2.0,天然具备低密社区的私密属性。
区别于常规四代住宅,中铁卓萃的核心竞争力体现在三大维度:
其一,高得房率,项目通过优化公区空间与结构设计,实现“使用面积增值”,在传统新规住宅20%板率基础上,可以多赠送35-45平的生态花园。
其二,“空中院落”体系,打破传统“光厅+双阳台”模式,最大可做到一户三院。阳台进深更是突破性的达到了3.5米,让“阳台”不再是鸡肋的空间,而是做成了真正的“空中院子”,让多重生活场景成为可能。
其三,“空中逃生平台+专属通道”安全设计,每户配置独立逃生舱。不夸张的说,这是我在这么多“产品创新”中,看到的最基本最务实也是最重要的产品突破。
成都的产品内卷程度丝毫不逊色于目前“油车与电车”的互卷。传统豪车执着于内饰堆砌与豪华感营造,新势力则热衷“冰箱彩电大沙发”的配置竞赛,而沃尔沃始终以“安全第一”为核心准则,凭借这一坚守成就经典。
中铁卓萃的产品逻辑亦然,在追求居住美学与功能升级的同时,仍将生命安全置于首位,背后也是中铁作为央企的责任和担当。
中铁卓萃仅推出建面约145㎡与183㎡两大面积段,又通过精准的功能划分,覆盖了二胎家庭、三代同堂、品质单身等多元客群。以下为具体户型拆解:
1、建面约145㎡盈萃——同面积下的最优解
这个户型最霸气的地方在于,仅是LDKB-G一体化公区就达到了约100㎡,这面积几乎等同于一套传统套三了!配合洄游动线设计,日常动线流畅且空间感更强。
超36㎡的云端院落,相当于直接赠送了一个豪华主卧,而院落可改造为茶室、儿童游乐区或绿植角,上下层错位的隐私加密设计,则避免了“花园虽好,视线干扰”的痛点,兼顾开放性与私密性。
西侧阳台是极致浪漫的日落专属位,傍晚时分,业主可在阳台闲坐,看晚霞漫过城市天际线的轮廓。
在疯狂内卷的140㎡赛道,这个户型可以说是做到了极致,也必定成为爆款户型。
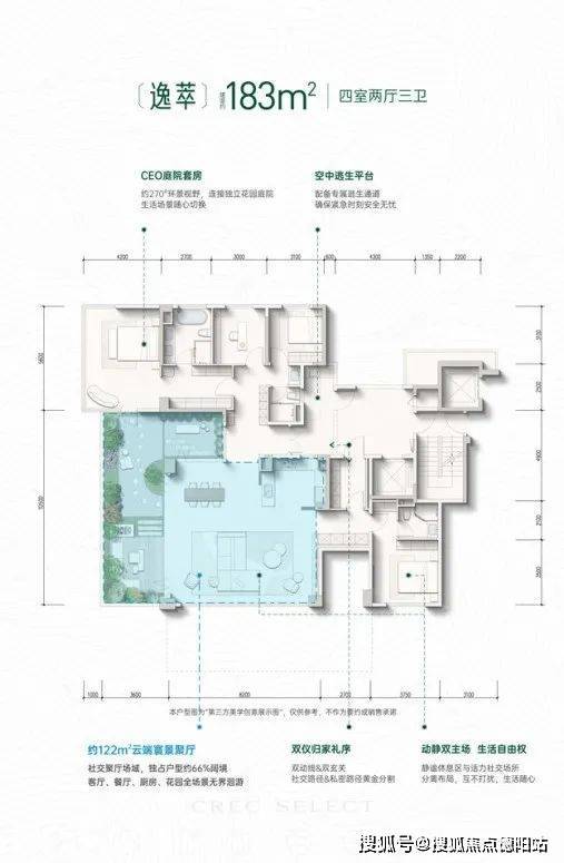
2、建面约183㎡逸萃——对标传统220㎡豪宅产品
作为145㎡逸萃的放大升级,建面约183㎡逸萃把细节处理的更加到位,做到了传统220㎡豪宅产品的空间感和仪式感。
比如:十字玄关+岛院设计,入门即见仪式;双入户系统提升私密性;独立储物间可存放藏品或婴儿车等。
LDKB-G一体空间面积更是达到了约122㎡,这在目前市场上,几乎没有第二个竞品;居住舒适度和仪式感更上一个太台阶。
还有一个小亮点在于,该户型的长辈套房相对独立,不仅配备独立卫生间与收纳空间,更拥有独立入户动线,避免代际生活习惯冲突,是三代同堂家庭的完美居所。
3、建面约183㎡映萃——三面采光的行政套房
如果对主卧空间有更高要求,不妨看看映萃,核心亮点就是三面采光的行政级观景套房。
在保留三花园设计和豪华公区尺度的同时,映萃户型更强化了主卧套的仪式感。
主卧拥有三面采光,配合270°环幕视野,可将烂漫景观尽收眼底;四分离主卫满足多人同时使用需求;一字型衣帽间与主卧无缝衔接,搭配独立酒水bar,能享受更私密且精致的场景。
除了采光更是保留了局部的实墙,去满足卧室所需要的包裹感和安全感。在全玻璃、全景仓成为主流的当下,中铁卓萃能基于客户使用场景去打磨产品细节,是最大的难能贵。
据悉,项目的城市展厅已于近期开放,感兴趣的朋友可以点击预约专属置业顾问前往项目了解哟
☎中铁卓萃售楼处电话028-83516246「来电尊享优惠活动」☎
☎【置业经理】:15928896133「微信同步」☎
温馨提示:为了给您提供更高更好的接待服务质量,看房请提前致电售楼处预约!
【有免费看房车接送服务,如需预约,请致电售楼处】
声明:本文由入驻焦点开放平台的作者撰写,除焦点官方账号外,观点仅代表作者本人,不代表焦点立场。


