成都万科高线公园《万科高线公园售楼处》项目详情-万科高线公园房价/区位介绍/预约看房
扫描到手机,新闻随时看
扫一扫,用手机看文章
更加方便分享给朋友
02883516246
在售产品:
高层、叠拼别墅、商业别墅,商业
在售面积及区间总价:
住宅面积:
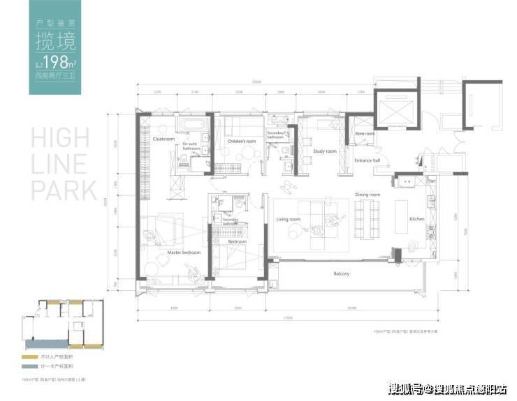
198㎡ 480-530万
——————————
商叠(实得260-350平):
上叠163平530-560万
中叠181平390-440万
下叠161平470-530万
——————————
叠拼别墅:
下叠:296.85-312.89㎡,总价783-904万
中叠:184.62-184.90㎡,总价581-632万
上叠:175.61-175.89㎡,总价691-760万
梯 户 比:2T2户
装修标准:住宅精装(2498元/㎡) 别墅,商叠清水、商业清水
总 层 高:198㎡25层
公摊面积:198平为20%
赠送面积:约25㎡
容 积 率:2.23
物业公司:万科物业
物 业 费:高层4.2元/平,住叠5.2元/平
占地面积:212亩
交房时间:在售198㎡户型2025年5月,别墅2025年5月
拿地时间:2020年7月31日

【项目概况】
高线公园项目位于行政学院TOD南区,项目北侧承接行政学院TOD北区打造的商业、公园和国际社区;南侧与三圣乡相连;东侧为万科2013年城市代表作“万科金色城市”;西侧则是我们中共成都市委党校(市政府负责培训党政领导干部、国家公务员和进行理论研究的重要部门)。作为片区优先革新打造的TOD板块,首发即由轨道城市、万科、美的三家企业联合打造,以高规划、高标准、高品质立于市场。提振片区发展信心与格局。也是万科成都区域TOD首发项目,公司倾注巨大的资源和精力规划经营,致力于呈现新一代的万科城市级社区高阶作品。
70年住宅叠拼别墅:
【70年别墅产品核心卖点】
下叠建面:297㎡,带前后花园
中叠建面:184㎡
上叠建面:175㎡,带屋顶花园
赠送
上叠140㎡,中叠40㎡,下叠160㎡
【樾墅·下叠】
四个花园+9.3米超大横厅+5.5米挑高超大采光井地下室+2.2米宽户内楼梯
室内赠送约:160㎡
花园面积:约80~160 ㎡
【樾墅·中叠】
9.3米超大横厅+6个房间设计+2.2米宽户内楼梯
不带地下室,无浪费空间
室内赠送约:约40㎡
【樾墅·上叠】
室内赠送:约140㎡(屋顶约90 ㎡)
屋顶可使用空间大
可做7—8房设计,满足多房间需求,且每个房间均在10 ㎡以上。
上叠175平:
中叠184平:
下叠297平:
精装大平层198平:
商业别墅(40年):
免责声明:部分信息来源于网络,如果侵权,请联系及时删除。
声明:本文由入驻焦点开放平台的作者撰写,除焦点官方账号外,观点仅代表作者本人,不代表焦点立场。


