成都蜀道宽境售楼处【2024成都新房二手房成交情况及2025年成都新房走势】
扫描到手机,新闻随时看
扫一扫,用手机看文章
更加方便分享给朋友
☎蜀道宽境售楼处电话028-83516246「来电尊享优惠活动」☎
☎【蜀道宽境置业经理】:15928896133「微信同步」☎
温馨提示:为了给您提供更高更好的接待服务质量,看房请提前致电售楼处预约!
【有免费看房车接送服务,如需预约,请致电售楼处】
成都现在房产市场三级分化,第一类是核心资产,止跌横盘或小幅上涨都有,补涨的苗头已经出现了,这类资产受大环境影响很大,也是市场风向标,随时被人关注。
第二类是优质产品,表现不一,涨跌幅取决于之前的价格泡沫大小,像北门几个改善楼盘涨跌就很小,没有大涨过自然不会大跌,而以天新为代表的新开发区域、次新盘往往入市价格偏高,止跌压力比较大。
第三类是完全丧失流动性的小区,集中在五城区,只有居住价值,一年成交几套,探讨涨跌意义不大,成交数据比较偏离真实市场情况。
2024年成都新房市场趋向高改化:成交主力面积段为120-144㎡,成交主力总价段为200-300万。其中,建面180㎡以上新房供应总量约为255万方,成交总量约为258万方,为成都新房市场成交次主力。
二手房成首置、首改家庭主阵地:2024年大成都二手房成交主力面积段为90㎡以内,成交次主力面积段为90-120㎡,建面120㎡以内中小户型的成交套数占比超八成,这说明在成都购买二手房市场的家庭,主要住房需求为首次置业或者首次改善;
根据2024年大成都二手房成交价格来看,总价两百万以内的房源成交占比接近九成,这说明活跃在成都二手房市场的家庭购房预期价格普遍在两百万以内。据CRIC数据,11月成都二手房成交规模居全国重点52城之首,远高于上海、北京,约为广州+深圳单月二手房成交总量的1.65倍。
成都二手房成交量之所以能领先于其他城市,一方面是因为卖旧买新的置换群体日渐增多,促使二手房挂牌量持续增加。
关键是成都对四川川内具备天然的人口吸附能力,城市首位度居全国第四,一城GDP占全省36.7%,仅次于银川、西宁、长春三市。
其二是人口流入在全国处于中上水平,考虑到成都已经有超2100万常住城市人口,这个数据也是很亮眼的。
第三是新房大幅度缩量,购买力转向二手市场,特别是总价400万以内这部分需求,在主城供应量正在减少。

对于2025年成都的房产走势,预测如下:5+2区域全年只卖了31宗地,新房库存见底,多个200㎡+户型曝光,大户型成明年新房供应主流
基本信息
楼盘地址:高新新川南6号线万安地铁站(A/B1口)旁
占地面积:50070.06㎡
建筑面积:138000㎡
容积率:2
绿化率:45%
楼栋总数:13栋
总户数:1304户
物业公司:四川蜀道物业服务集团有限责任公司
物业费:3.3元/㎡·月
停车位:937
户型建面:约117-143㎡
产品类型:小高层、洋房
楼层数:16-17F、10F
梯户比:2T2、1T2
层高:3.1米
装修情况:精装

区域分析
蜀道·宽境位于近年高新乃至整个城南大力发展的区域——新川,出道即“顶流”。高新区一直是成都城市发展的领头羊,其地产发展起点亦天然高于其它区域,只不过,目前整体可供开发的区域已屈指可数。金融城、大源等区块已高饱和,金融城三期虽有大量土地供应,但整体仍以商业用地居多,反观新川,住宅土地供应集中,且将科创、生态与人文高度融合,职住平衡是它的“主基调”。新川自诞生伊始,就经过高规格顶层设计,整体规划更加高能,但居住环境更低密宜居。对比高容高密的大源,更能承接高端改善。对比寸土寸金的金融城,新川各项兑现指标未达峰值,增长空间明朗。双重利好叠加,新川成为城南乃至成都改善主场的首选地。
蜀道·宽境所处的位置,是近年新川连片重点开发的“低容高端居住区”,有着更充足的住宅用地储备,打造空间更大,未来居住品质将更高。

周边配套
交通:蜀道·宽境,作为总规模约870亩万安TOD的上盖项目,天然占据新川发展“轴心”的重要地位。家门口就是新川中轴——地铁6号线,上接软件园、金融城,下连天新中央商务区、秦皇寺,且与约10000㎡的浮岛商业街无缝连通,既可为通勤、生活带来极高的便捷性,又能提升房子的生命周期。同时,万安TOD横向可串联海昌路TOD(规划中)、红星路车辆基底TOD,纵向又可连接陆肖TOD、昌公堰TOD,再叠加地铁6、15号线(规划中)双轨交,未来将高度聚焦城市优质资源,驱动区域生活缤纷生长。
此外还有天府大道、梓州大道、锦翰路、利州大道、新川大道、新通大道、新程大道、麓山大道等“四纵四横”城市干线环伺,可通达各大核芯商圈,支撑区域发展提速。
商业:除了万安TOD商业,项目还自带10000㎡浮岛商业,与地铁无缝接驳。此外,项目距离邻里中心约900米,直线2公里范围内,还有约25万㎡的天府和悦广场、山姆会员店、迪卡侬等,构建起“15分钟城市生活圈”,日常休闲购物需求基本可以满足。

教育:目前新川区域内已有24所学校规划,覆盖全龄段。项目直线约2公里内有新川科技园小学、银都紫藤小学等优质校区,紧邻的万安TOD北侧,是规划待建的新川二中,或将由知名教育集团领办(具体请以官方最终公示为准)。
生态:项目外侧沿路即为市政绿地,且整个新川板块本就是以新加坡“花园城市”的理念来规划打造,公园属性十分明显。
医疗:已建好的中西医结合高新医院,家门口的三甲医院;还有,四川省肿瘤医院天府院区、成都玛利亚妇女儿童医院、天府新区康养医学中心,以及在建的天府新区奥亚医院,天府新区慈道医院,成都前沿医学中心等大型医疗配套。
在售户型
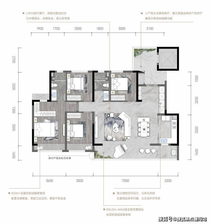
宽域 建面约143㎡ 四室两厅两卫
户型解析:17层纯板式小高层,全南北朝向,每一户皆享开阔视野与舒适体验;两梯两户私梯入户,入户独立门厅设计,全明采光,自然通风;约16m朝南面宽、约3.1m墅式层高,享全天候阳光奢适生活;约9.25m阔景巨幕阳台,墅级空中花园,收藏窗外绚丽景观。

宽廷 建面约134㎡ 四室两厅两卫
户型解析:16-17层纯板式小高层,约175m楼间距,独立单元楼栋,双面观景;两梯两户私梯入户,独立门厅设计,全明采光,自然通风;约3.1m层高,横厅设计,户型紧凑方正,实用性强,得房率高;约13.4m面宽,配置约6.8m广角阳台,奢享墅级空中花园


宽邸 建面约117㎡ 三室两厅两卫
户型解析:10层一梯两户纯板式洋房,约50m宽阔楼间距,尽享私密空间;约12.5m奢阔面宽,LDK横厅设计,连接约8.8m巨幕阳台;奢阔场域,打造头等舱式家庭社交空间;约3.1m层高,延伸室内空间,将居住体验感拉满

☎蜀道宽境售楼处电话028-83516246「来电尊享优惠活动」☎
☎【蜀道宽境置业经理】:15928896133「微信同步」☎
温馨提示:为了给您提供更高更好的接待服务质量,看房请提前致电售楼处预约!
【有免费看房车接送服务,如需预约,请致电售楼处】
声明:本文由入驻焦点开放平台的作者撰写,除焦点官方账号外,观点仅代表作者本人,不代表焦点立场。


