成都青羊区外金沙板块现房别墅:雍锦园售楼处_预约看房【2025成都新房二手房成交情况及2025年成都新房走势】
扫描到手机,新闻随时看
扫一扫,用手机看文章
更加方便分享给朋友
雍锦园售楼处电话028-83516246「来电尊享优惠」
雍锦园置业经理:15928896133「微信同步」
温馨提示:为了给您提供更高更好的接待服务质量,看房请提前致电售楼处预约!
【有免费看房车接送服务,如需预约,请致电售楼处】
成都为什么在全国房地产市场异军突起,遥遥领先?
天下未治蜀先治,天下未涨蜀先涨。西南,是中国的大后方,成都,就是这个大后方的核心。
从地理上来说,武汉往西的中国地域,大部分被高原丘陵和荒漠覆盖,气候温和又适宜人居的,除了狭长的关中平原,只有天府之国的四川盆地。
因此,成都除了吸附川内的城市,还包括甘肃、新疆、云南、贵州、重庆等地。虽然这些地方也不是中国富裕省份,但掏空6个钱包,举家支持,也是不小的购买力。
国家战略腹地四川一马当先,国家对于四川的未来给出了一个非常明确的规划。今年,国土资源部正式发布了四川省的国土空间规划2021—2035年,这是一个非常有含金量的说法,在这个文件里面国家对于四川未来10年的发展做出了一个明确的定位,叫做中国发展的战略腹地。但是要说“战略地位”哪个省份最重要,那结果就很明显了。没错,中国战略地位最重要的省份就是四川省,当然成都房价走向就一目了然了。
成都现在房产市场三级分化,第一类是核心资产,止跌横盘或小幅上涨都有,补涨的苗头已经出现了,这类资产受大环境影响很大,也是市场风向标,随时被人关注。
第二类是优质产品,表现不一,涨跌幅取决于之前的价格泡沫大小,像北门几个改善楼盘涨跌就很小,没有大涨过自然不会大跌,而以天新为代表的新开发区域、次新盘往往入市价格偏高,止跌压力比较大。
第三类是完全丧失流动性的小区,集中在五城区,只有居住价值,一年成交几套,探讨涨跌意义不大,成交数据比较偏离真实市场情况。
雍锦园位于青羊区清源二路126号,属于外金沙板块,占地约38亩,容积率2.0,由合院、联排、双拼、平层组成。
项目属于青八学区,对口小学是项目旁边的成都花园(国际)小学(清波校区),周边1公里范围还有树德实验中学(清波校区)、金沙小学、石室联合中学(金沙校区)、草堂小学等教育资源。
雍锦园旁边是地铁27号线蜀鑫路站,一街之隔便是超1700亩的百仁城市文化公园,较远点还有清水河清波公园、黄忠公园等,自然资源优渥。
项目周边有华润金悦湾(2012年9月入选“亚洲十大超级豪宅”榜单)、海亮爱金沙等楼盘,生活配套成熟。
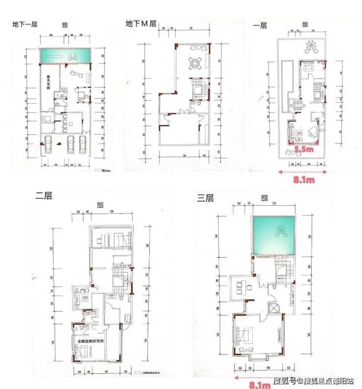
本次销售6号楼房源2套,推售建面约258㎡为双拼别墅产品,包含地上三层、地下一层及夹层。
户型图
⛩十席雍锦墅 一院藏天地⛩
青羊区现房双拼别墅
青羊区现房双拼别墅
【在售户型】
产权面积:258-380㎡,大厅6.2m高,地下室一层6米高
花园面积:207~850㎡
实得面积:720-1750平米不等
总价:3-5栋1530,2/6栋3300万端头
付款方式:全款/按揭(五成)
物业费:10元/㎡(碧桂园金管家物业)
车位不带

交通:拥有三横三纵的立体网络交通
三横:黄金路、三环路,青羊大道2.5环,可以通达成都市各个方向;
三纵:羊犀线、日月大道、IT大道。
项目距离天府广场10公里距离,驾车15分钟快速到达天府广场;
地铁4号线成都西站、清江西路站距离项目均为1.7公里左右;
地铁9号线成都西站距离本项目仅1.7公里范围内。
医疗:全方位医疗资源,解决一切就医问题
安琪儿医院、成都市妇幼保健院,西区医院,金沙医院,四川天祥骨科医院、成都青羊天航医院、成飞医院等。
教育:项目周边涵盖了0-18岁全龄优质教育配套
项目东侧是成都市第五幼儿园,南侧是成都市花园国际学校,周边幼儿园还有机关6幼、蒙特梭利幼儿园等;
小学:成都实验小学,石室外语中小学、蜀汉外国语小学、金沙小学;
初高中:金沙泡桐树中学;
大学:川大锦城学院,西南科技大学,西南财经大学,国腾学院等。
商业:
项目南侧:西单商场、沃尔玛、仁和春天、青羊万达广场(距离2公里,自驾车10分钟以内)鹏瑞利,以及大悦城(距离8公里,自驾车15分钟以内),目前也是整个区域最大的一个商场。
项目旁1公里位置规划有一个20万方的综合商业体,包含购物中心和5星级酒店,东有万象城,南有环球中心,该商业体建成后将是城西最大的综合商业体。
【交房时间】现房交付!立即入驻!
?蓝光雍锦园基础信息?
西贵宝地金沙板块核心位置,青羊区西三环外侧,苏坡立交和羊犀立交之间,属于成都政府重点打造的百仁高端生态居住区,紧邻1770亩百仁生态公园(相当于4个浣花溪大小)。
【主要卖点】:280%-460%极致赠送、户户前庭后院、地下室,区域再无外金沙核心板块,唯一在售现房双拼别墅,紧邻1770亩百仁生态公园,自由空间随意设计和装修,彰显身份尊贵


【在售房源】
2栋101
产权面积:351.64平米
花园面积:629平米
实得:1565平米
总价:2500万
2栋102
产权面积:282平米
花园面积:207平米
实得:947平米
总价:1600万
5栋102
产权面积:258平米
花园面积:196平米
实得面积:896平米
总价:1530万
6栋101
产权面积:275.55平米
花园面积:227平米
实得面积:958平米
总价:1600万
6-102
产权面积:379.42平米
花园面积:738平米
实得面积:1764平米
总价:3300万
【户型图】
一层拥有270度环幕全景花园,仅客厅开间就达到6.5米,老人房进深也达到5.5米,但餐厅空间较为压抑。二层包含全挑高赠送空间,需要业主自行搭建。三层为6.5米开间主卧,但开窗面偏小,该层还有星空露台。
地下室方面,地下一层的预留车位,足以停下三辆车,这一层还包含一个近40㎡的露天花园。夹层有约30㎡的私人X空间,可根据业主喜好打造茶室、瑜伽室、健身房等。
雍锦园售楼处电话028-83516246「来电尊享优惠」
雍锦园置业经理:15928896133「微信同步」
温馨提示:为了给您提供更高更好的接待服务质量,看房请提前致电售楼处预约!
【有免费看房车接送服务,如需预约,请致电售楼处】
免责声明:
以上内容仅作为邀约邀请,涉及的图片为部分区域实拍图和美学畅想图,具体内容请以现场公示和合同约定为准;本文部分资料、部分图片来源于网络,如有侵权请联系我们删除。
声明:本文由入驻焦点开放平台的作者撰写,除焦点官方账号外,观点仅代表作者本人,不代表焦点立场。


