成都广都鑫中心售楼处_ 清水单价6️⃣字头 总价30万起_一键直拨售楼处预约看房

搜狐焦点德阳站 2025-07-19 18:28:13
用手机看
扫描到手机,新闻随时看

扫一扫,用手机看文章
更加方便分享给朋友

可交于锦江国际(世界第二,亚洲第一酒店集团)旗下"欧暇地中海"酒店运营,清水交房后8个月为装修期(没有收益),装修好后6个月期间作为酒店培育期,没有保底收益,享受酒店运营分红收益(收益五五分成),从第7月开始…

☎售楼处电话028-83516246「来电尊享优惠活动」☎

☎【置业经理】:15928896133「微信同步」☎

温馨提示:为了给您提供更高更好的接待服务质量,看房请提前致电售楼处预约!

【有免费看房车接送服务,如需预约,请致电售楼处】

?年度爆款项目即将启动?

?天府大道上核心区域

☄️6️⃣字头水电气三通公寓

?租金2000每月起高回报项目

?双地铁1️⃣号线➕1️⃣8️⃣号线

❣️每年上千万巨大人流

?【项目参数】

占地面积:28.35亩

建筑面积:241470.5m

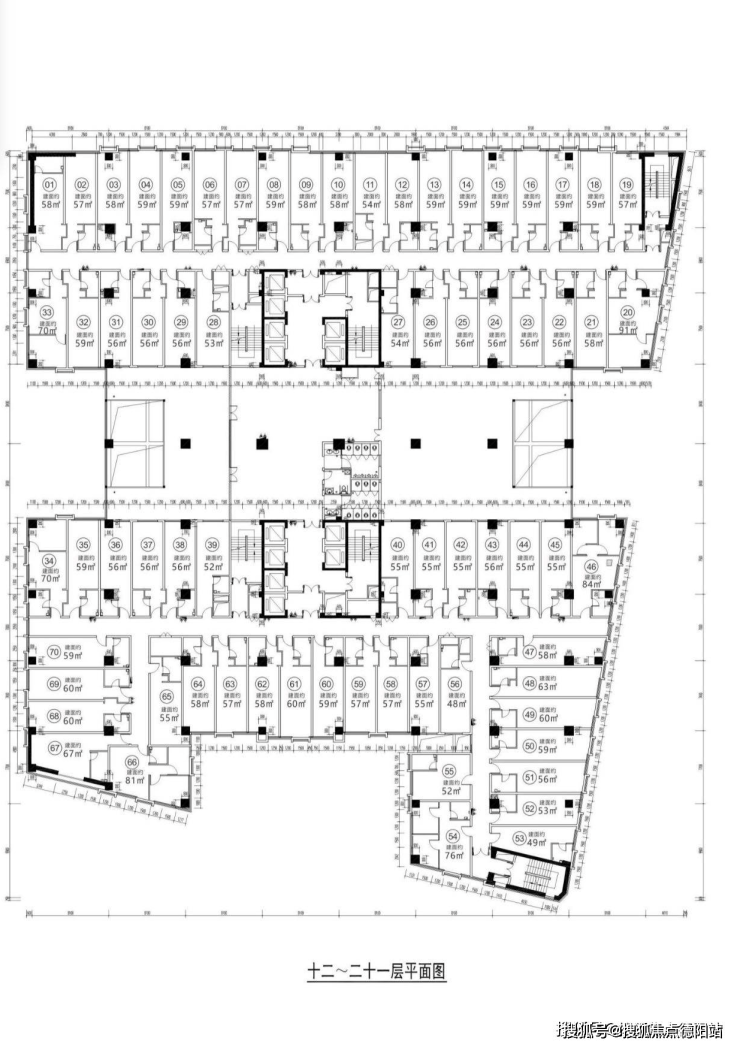
目前主售:双发天禧中心2号楼1、2单元

主力户型:57㎡

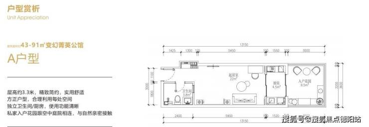
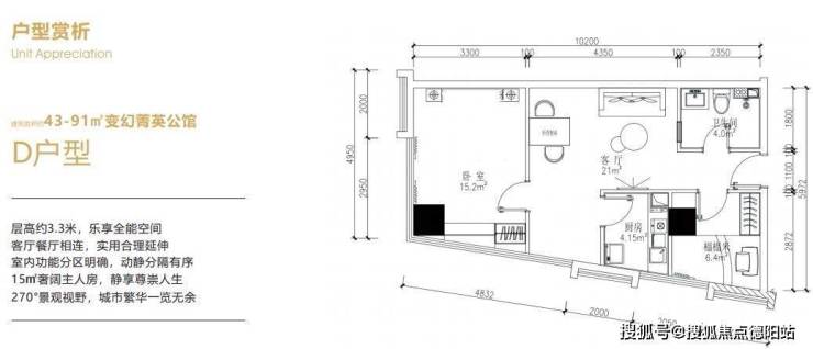
面积段:43㎡-91㎡(主力面积52-60)

层高:3.25-3.3米

总高:25层

首开楼层:13、22

三通:水电气三通

公摊:30%左右

梯户比:6T33户 6T37户

物管费:4.9元

交付时间:合同2025年12月31日前

交付标准:清水

均价:6600-7500

付款方式:一次性

✅开发商:成都双发君地置业有限公司

✅物业公司:四川博蕙京通物业管理有限公司

?【核心卖点】

天府大道中轴线上 唯一在售总价低 小面积水电气三通产品 周边楼盘无竞品

双地铁(1号线/18号线)便捷出行

可交于 锦江国际(世界第二,亚洲第一酒店集团)旗下"欧暇地中海"酒店运营,清水交房后8个月为装修期(没有收益),装修好后6个月期间作为酒店培育期,没有保底收益,享受酒店运营分红收益(收益五五分成),从第7月开始,正式享受保底(保底30元/平)加酒店运营五五分红, 平均收益:3800-4000/月!

地处于金融城,新川科技园,天府新区中央商务区三大板块交汇的黄金金三角区域,桥头堡价值洼地,大大吸附周边区域人流。

每层自带600-700㎡高线公园。 每层只有十户享受额外赠送7-9㎡阳台空间。

【区域位置】

位于成都市天府新区天府大道1888号,是智能化绿色长廊的菁英空间,含有高端酒店、文化会所及中高端商业配套的综合体物业。

【交通配套】:

双地铁上盖:1号线华阳站 18号线海昌路站

503 504 T205等二十条公交线路

五纵四横立体网络

五纵:剑南大道、益州大道、天府大道、梓州大道(科华路南延线)、成自泸高速;

四横:三环路、绕城高速、华阳大道、麓山大道。

【商业配套】:项目1-4楼自带30000方的上海协星星光商业体,-1楼大型超市盒马生鲜,-2至-4楼自带1661个停车位 。

项目斜对面是家乐福购物中心

项目南面是三利广场,是集商务办公、综合购物、高端酒店、商业体验为一体的综合性购物广场,

项目对面还有金地三期约70万方的大型商业综合体,周边还有沃尔玛山姆会员店、红星美凯龙、富森美等综合性商业,实现人居蓝本的同时,项目在后期还会迎来配套的再一次升级。

【医疗配套】:拥有天府新区人民医院、四川石油总医院、玛利亚天府妇产儿童医院、天府新区安琪儿国际妇女儿童医院、四川省中西医结合医院、四川宝石花医院等。

【生态娱乐】:项目旁边是海昌极地海洋公园、南湖梦幻岛,南湖湿地公园等。

【优质教育】:金苹果幼儿园 天府四小 天府五小 天府实验小学 天府实验中学 天府实验外国语学校等。

✅【多变户型】

✅【装修风格】

☎售楼处电话028-83516246「来电尊享优惠活动」☎

☎【置业经理】:15928896133「微信同步」☎

温馨提示:为了给您提供更高更好的接待服务质量,看房请提前致电售楼处预约!

【有免费看房车接送服务,如需预约,请致电售楼处】

声明:本文由入驻焦点开放平台的作者撰写,除焦点官方账号外,观点仅代表作者本人,不代表焦点立场。