成都华侨城·七十二院最新消息,成都华侨城·七十二院,楼盘户型,周边配套...

搜狐焦点德阳站 2025-10-08 08:17:43
用手机看
扫描到手机,新闻随时看

扫一扫,用手机看文章
更加方便分享给朋友

晋派:在售合院,面积段400-600㎡,均价约17800元/平,总价段680-1000万元洛带华侨城·七十二院作为中国院落的高光代表,花费了数年的时间用来打磨产品,不断将理想化为现实。在全新组团【十美合院】中…

02883516246

📞售楼处电话028-83516246「来电尊享优惠活动」📞

📞【置业经理】:15928896133「微信同步」📞

温馨提示:为了给您提供更高更好的接待服务质量,看房请提前致电售楼处预约!

【有免费看房车接送服务,如需预约,请致电售楼处】

洛带华侨城·七十二院,东靠龙泉山城市森林公园,北接国家4A级景区洛带古镇,西面洛水湿地公园,南临千亩蔚然花海

项目以客家人历史上五次大迁徙为文化脉络,精选中国建筑的优秀元素,汇聚闵、海、川、晋、徽五大建筑派系院落,随着街、巷、院的空间变化,让中国的传统建筑艺术得以展现

基础信息:

项目位置:成都市龙泉驿区洛带三峨街999号

占地面积:约200亩

物业公司:华侨城物业(集团)有限公司成都分公司

物业费:5元/平米/月

容积率:0.7

项目区位图:

周边配套

交通:

城市主干道:成都五环路(成环路)、成洛大道、渝蓉高速、蜀都大道等?

公交:219路、850路、K7快速公交等十余条公交线路?

距离双流机场、天府国际机场约40km,40分钟即可起飞全球✈

生态:

龙泉山城市森林公园、洛水湿地公园、蔚然花海(4A级景区)

学校:

龙泉驿区洛带第二幼儿园、洛带小学、洛带中学、成都康礼·克雷格公学(建设中)

医院

龙泉驿区第二人民医院、洛带公立卫生院、龙泉驿区第一人民医院、龙泉驿区妇幼保健院、四川省人民医院东院

休闲:

洛带古镇(4A级景区)、中国艺库商业街

产品介绍:

闵派:自持商业院落,面积段30-300㎡,打造城市商业步行街

海派:自持商业院落,面积段300-3000㎡,打造中法特色风情街

川派:在售合院,面积段200-500㎡,均价约17000元/平,总价段300-900万元

晋派:在售合院,面积段400-600㎡,均价约17800元/平,总价段680-1000万元

徽派:在售联排,面积段210-350㎡,均价约15000元/平,总价段330-520万元

户型鉴赏:

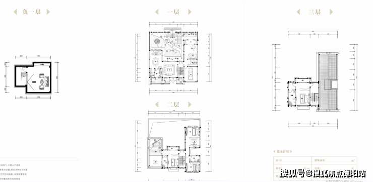
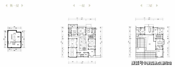
川派:明月府 9-2#(建筑面积373.17㎡,实得面积约513㎡)

川派:南风院 6-3#(建筑面积369.13㎡,实得面积约513㎡)

川派:锦云府 13-6#(建筑面积327.5㎡,实得面积约435.66㎡)

川派:烟霞堂 6-2#(建筑面积469.43㎡,实得面积约698.88㎡)

园林景观

【十美合院】集合三大建筑特色【川派、晋派、徽派】,仅10套的体量,足以体现出产品的稀有性,全实景现房交付,切身感受院落围合的居住理念,倾听来自华夏文脉的故事留存于院落之中。

洛带华侨城·七十二院实景图

洛带华侨城·七十二院作为中国院落的高光代表,花费了数年的时间用来打磨产品,不断将理想化为现实。在全新组团【十美合院】中完美体现了匠心精神,三大派系符号糅合其中——川派的清雅灵动、晋派的浑厚大气、徽派的儒雅清丽。众多“院落粉”们欣喜若狂,【十美合院】不管是价值潜力还是生活尺度,都足以成为你的必买理由。

洛带华侨城·七十二院实景图

📞售楼处电话028-83516246「来电尊享优惠活动」📞

📞【置业经理】:15928896133「微信同步」📞

温馨提示:为了给您提供更高更好的接待服务质量,看房请提前致电售楼处预约!

【有免费看房车接送服务,如需预约,请致电售楼处】

声明:本文由入驻焦点开放平台的作者撰写,除焦点官方账号外,观点仅代表作者本人,不代表焦点立场。