成都人居云缦林语售楼处【2024成都新房二手房成交情况及2025年成都新房走势】
扫描到手机,新闻随时看
扫一扫,用手机看文章
更加方便分享给朋友
02883516246
☎售楼处电话028-83516246「来电尊享优惠」☎
☎【置业经理】:15928896133「微信同步」☎
温馨提示:为了给您提供更高更好的接待服务质量,看房请提前致电售楼处预约!
【在售价格区间】:200-430万
【在售面积区间】113-119-143平 (套三套四)精装 169平-197平跃层(套五)精装
一楼带花园 ,顶跃带平台,花园平台面积不承诺到合同内 ,就近使用,花园大概面积20-60平 具体面积带客户现场看
【在售房源】
13 16号楼 143平 17F 小高层 朝南
14号楼 128平 10F 洋房 朝南 最后1套
2号楼 113-119㎡ 17F 小高层 东西朝向
1-3号楼 113-119㎡ 18F 小高层 南北
【基础信息】
项目占地:约102亩
开发商:成都人居交子置业有限公司
均价:1.8~2万左右
总价:200万-437万
公摊:119㎡-15% 143㎡-17% 128㎡-13%
户数:1284户
物业:人居智慧物业
楼层:9-18F
楼栋总数:20栋
层高:2.95-3米
梯户比:2T4/2T2/1T2
绿化率:35%
停车位:1975个(车位比1:1.5)
交付标准:精装2330元
装修呈现:中央空调,地暖,新风一线品牌
物业费:2.9元
容积率:2.42
交房时间:2025年6月30日
开发商背景
兴城人居,2022中国房地产公司品牌价值TOP10(国企)
兴城集团,第一家进入世界500强的成都市属国企,旗下地产开发运营板块兴城人居荣获“2022中国房地产公司品牌价值TOP10(国企)”奖项。是成都规模最大的国有企业。
林语系首进城北
2023携TOP级产品线“林语系”首进城北,以高配置标准,打造主城“里程碑式”作品。致献城北新贵们的新派生活样本。
楼盘周边配套

交通配套:
1地铁交通:5号线幸福桥站600号米,在建地铁27号线石门坎站300米(24年底通车)
2公路交通:北星大道,凤凰山高架,三环路,天龙大道,绕城高速。
3都会商业:悦享汇融广场、龙湖锦宸天街、大都汇、福地广场、爱尚里商业街(在建)等5大核心商业;
4教育配套
幼儿圆:机关三幼,第十六幼儿园(蜀道园区)
小学教育:人民北路小学天北校区/成都实验小学(北新校区)
中学教育:七中万达(已规划)成都铁中,新川外国语学校
5公园配套:毗邻两大城市级公园(凰山露天音乐公园、凤凰山体育公园),环城绿道公园、源上湾公园等多个公园环伺;
6医疗配套:核心优享三甲医院西部战区总医院医疗资源,金牛区中医医院(在建),为家人健康保驾护航;
人居产品观
酒店式美学建筑
以人居林语系、酒店式艺术大宅、113-143㎡全周期洋楼,焕新城市界面,园林景观与生活场景无界相融,为城北打造国际化、艺术化、个性化的美学空间。
地标粼光门庭
对标巴黎半岛酒店,融入全球奢华顶级酒店理念,以「庭院」融合与转换空间质感,入口设置迎宾水幕景墙,营造端庄大气的归家氛围。
高颜值立面
公建化外立面、全面屏视野,用轻盈、流畅线条打造一个现代感的大屋檐艺术品级外立面,约8.5米甲板式阳台面、一字板式大宅,最大限度占有窗外视野资源。
酒店雅奢景观
以围合式建筑布局,打造对标宝格丽的酒店式雅奢景观,四重归家礼序、林下花园、对景跌水、休憩卡座,一步一景,起承转合,营造独有的生活仪式感。
沉浸第二客厅
以丰富的艺术场景化设置,打造云缦林语独特的沉浸式洄游社交链,浮光廊架吧台、CO-HOME泛会所等,打破空间界限,予家人、邻里、友人的社交休闲聚场。
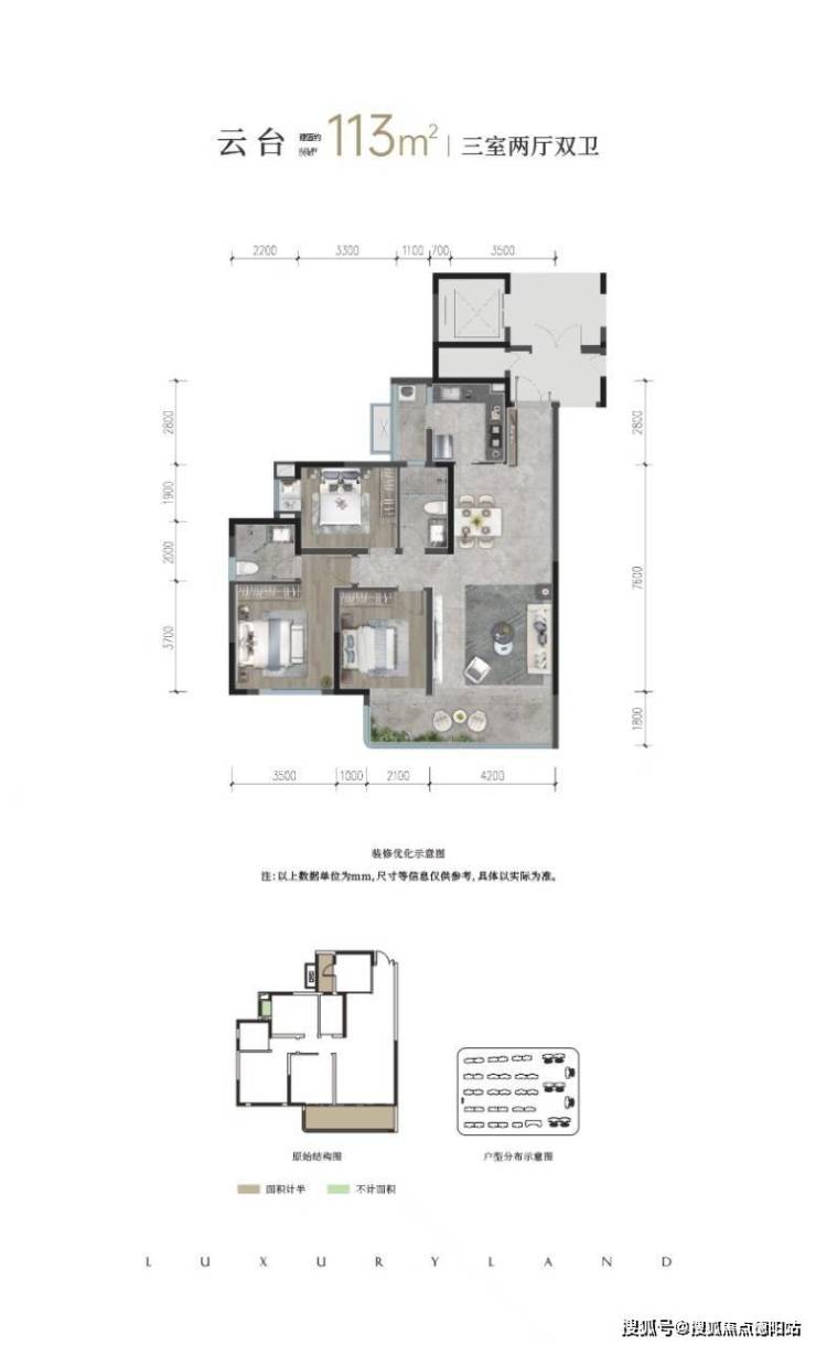
119 113平套三双卫户型图竖厅如下:

119平套三双卫户型图横厅如下:

128平套四双卫户型图如下:

143平套四双卫户型图如下:

☎售楼处电话028-83516246「来电尊享优惠」☎
☎【置业经理】:15928896133「微信同步」☎
温馨提示:为了给您提供更高更好的接待服务质量,看房请提前致电售楼处预约!
声明:本文由入驻焦点开放平台的作者撰写,除焦点官方账号外,观点仅代表作者本人,不代表焦点立场。


