成都万达1号售楼处【2024成都新房二手房成交情况及2025年成都新房走势】
扫描到手机,新闻随时看
扫一扫,用手机看文章
更加方便分享给朋友
02883516246
☎售楼处电话028-83516246「来电尊享优惠」☎
☎【置业经理】:15928896133「微信同步」☎
温馨提示:为了给您提供更高更好的接待服务质量,看房请提前致电售楼处预约!
⫸天府CBD·天府公园里·最后瞰景平层⫷
‖产品信息‖
·开发商:成都天府万达置业有限公司
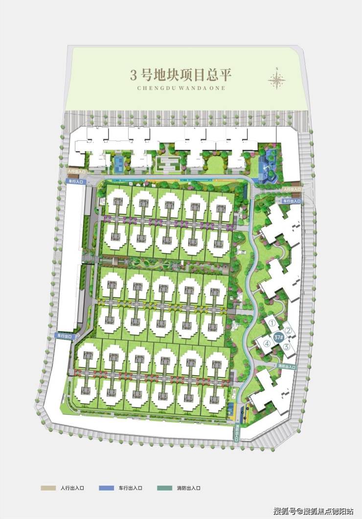
·楼栋号:3#地块35-36-37号楼(94亩)
·建筑面积:155-214㎡
·梯户比/楼层:3T4户/37F
· 容积率:3.4
·绿化率:30%
·停车位:2431
·物业费:3元/m²/月
·物业公司:成都万达广场商业管理有限公司
·住宅产权:70年
·交付标准:清水
·单价:1.8-2.2万
·总价:290-460万
·交房时间:预计2027年5月(按合同)
‖核心卖点‖
【品牌优势】全球最大不动产运营企业,实力保障居住品质。
【区位优势】位于天府新区中央商务区核心地段。与蔚蓝卡地亚、麓湖生态城共组天府新区核心金三角,为天府新区三大门户标杆级楼盘之一。
【环境优势】占地3450亩天府中央公园与项目融为一体,是成都乃至西南区最大的城市公园。
【健康优势】引入成都万达UPMC国际医院,紧邻华西天府医院(已开业)、四川省第二人民医院天府分院(肿瘤诊疗中心)、省妇幼保健院天府院区、以及规划中的华西牙科医院、华西康复医院等。
【配套优势】五纵五横立体交通路网,轨道交通覆盖8轨18站,直达成都双机场;临近天府大悦城、天府国际会议中心、广汇雪莲堂艺术馆、省图书馆鹿溪智谷分馆;隶属天新C学区,紧邻元音小学、中学。
天府新区高规格定位:https://mp.weixin.qq.com/s/ycpkRRmpjafJXS5hqFMyQA
‖周边配套‖
【景观资源】
坐拥约3450亩天府公园,往南4500亩的鹿溪河湿地公园,水域面积5000亩的兴隆湖生态公园,往北9000亩的麓湖生态公园、1200亩的浅水湾体育公园以及长11公里的锦江生态带。
【交通配套】
道路:贯穿“五纵”即剑南大道、益州大道、天府大道、红星路南延线、成自泸高速,“五横”即沈阳路、武汉路、杭州路、宁波路、广州路,优越的通达性,约30分钟车程直达全城各个时尚消费地;
轨道:地铁1号线(武汉路)、6号线(杭州路)、18号线(天府公园站)、19号线(西博城站),离项目3.9公里便是天府新区首个TOD的昌公堰站站点、成都市第一个城市候机楼。
天府新站即将启动:https://mp.weixin.qq.com/s/jC4c43SVS9_3Un7qU9ZgFw
【教育配套】
天新C区,紧邻元音小学、元音中学,天府七小、天府七中均已开校,龙江路小学桐湾校区(9月开学)
最新学校招生咨询https://mp.weixin.qq.com/s/dCGlUbRTarK2EB5Het5Mmw
【商业配套】
天府大悦城已开业、蔚蓝卡地亚花园城、麓湖CPI、天府招商花园城(年底开业)、润扬TFC天府中心
麓湖cpi天府新区最具松弛感的商业:
https://mp.weixin.qq.com/s/2R5ypagNsjDDZKynjbfTyA
商业焕新重新认识天府新区:
https://mp.weixin.qq.com/s/gNTyMpO7WMWCC2k7SjoG6A
【公共配套】
天府国际会议中心(已投入使用)、广汇雪莲堂艺术馆(已投入使用)、省图书馆鹿溪智谷分馆、金熊猫大剧院(建设中)、四川省博物院新馆(建设中)
金熊猫大剧院:https://mp.weixin.qq.com/s/f3nfJqs9y_EpZjD_Wv3XDg
【医疗配套】
成都UPMC国际医院(在建)、华西天府医院(已投入使用)、四川省第二人民医院天府分院(肿瘤诊疗中心)、省妇幼保健院天府院区
‖产品价值‖
天府公园最后的高层臻稀房源,建面约132-272㎡瞰景平层,置业天府CBD的优选!
【更高的舒适性】——3T4梯户比,舒居配比,更少的住户,舒适度更高
【更高的私密性】——阵列式布局,楼栋错落分布,居住密度低,极致通透采光
【更高的视野性】——视野无遮挡,更开阔的视野面,一览天府CBD繁华盛景
[3#地块楼栋标注图]
‖总平及户型赏析‖
约132㎡功能套四:纯正真四房

约155㎡品质四房:约7.5米大横厅

约214㎡奢居四房:约8.4m横厅,270°采光,双套房设计

☎售楼处电话028-83516246「来电尊享优惠」☎
☎【置业经理】:15928896133「微信同步」☎
温馨提示:为了给您提供更高更好的接待服务质量,看房请提前致电售楼处预约!
声明:本文由入驻焦点开放平台的作者撰写,除焦点官方账号外,观点仅代表作者本人,不代表焦点立场。


