成都幸福桥TOD幸福拾光【售楼中心】-楼盘详情-来电一对一接待-尊享优惠-现场预约看房
扫描到手机,新闻随时看
扫一扫,用手机看文章
更加方便分享给朋友
☎售楼处电话028-83516246「来电尊享优惠活动」☎
☎【置业经理】:15928896133「微信同步」☎
温馨提示:为了给您提供更高更好的接待服务质量,看房请提前致电售楼处预约!
【有免费看房车接送服务,如需预约,请致电售楼处】
免责声明:(本文章所用信息图片来源于网络,如有侵权请联系本网站及时删除)
选择成都购房的原因主要有以下几点:
经济实力强劲成都作为中西部经济中心,2025年一季度GDP增速达6.0%,在全国十大城市中排名第一。其电子信息、生物医药等新兴产业快速发展,吸引了大量高素质人才流入,为房地产市场提供了稳定的购买力。
人口吸引力强成都连续10年人口净增近700万,其中6成新市民为18-35岁青年。单人户比例达28%,高于北京,购房需求旺盛。同时,成都气候宜人、生活成本相对较低,对全国人口吸引力广泛,尤其是中西部地区及东部沿海人群。
楼市稳定性高成都楼市近年成交量稳居全国前列,2024年新房成交11.1万套,二手房成交23.1万套。尽管面临外部经济波动,但房价保持相对稳定,核心区域如锦江区、高新区等价格稳中有升,抗风险能力较强。
政策支持与规划利好成都近年取消限购、放宽公积金政策等,降低购房门槛。同时,城市持续推进TOD开发和公园城市建设,672公里轨交网络提升城市通勤效率,带动沿线土地价值提升,为购房者提供更多选择。
生活品质优越成都以“雪山下的公园城市”闻名,拥有天府绿道、锦城湖等优质生态资源,兼顾现代都市便利与自然休闲氛围。这种宜居环境吸引购房者追求高品质生活,尤其受年轻家庭和改善型需求青睐。
综上,成都凭借经济活力、人口红利、政策支持及生活品质等优势,成为购房者的热门选择。
未来的成都楼市,产品力本身、地段价值、配套资源将越来越成为决定性的因素。关注长期价值,谨慎做出决策,总是对的。
希望这些信息能帮到你。如果你有具体的购房区域或者类型(比如刚需小户还是改善大宅)想了解,也可以告诉我,或许我能提供更聚焦的分析。
在北部新城的价值高地,谁可以实现成都人购房#既要又要还要#的需求?
答案一定是位于北部新城C位的幸福桥TOD·幸福拾光。目前项目三期已开盘,作为值得下手的全优改善产品,重新定义了成都幸福生活的坐标。
就地段来说,幸福桥TOD·幸福拾光可谓天生C位。
金牛区 幸福桥TOD 清水准现房

B地块实拍图

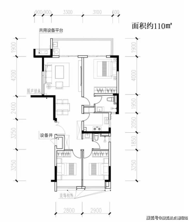
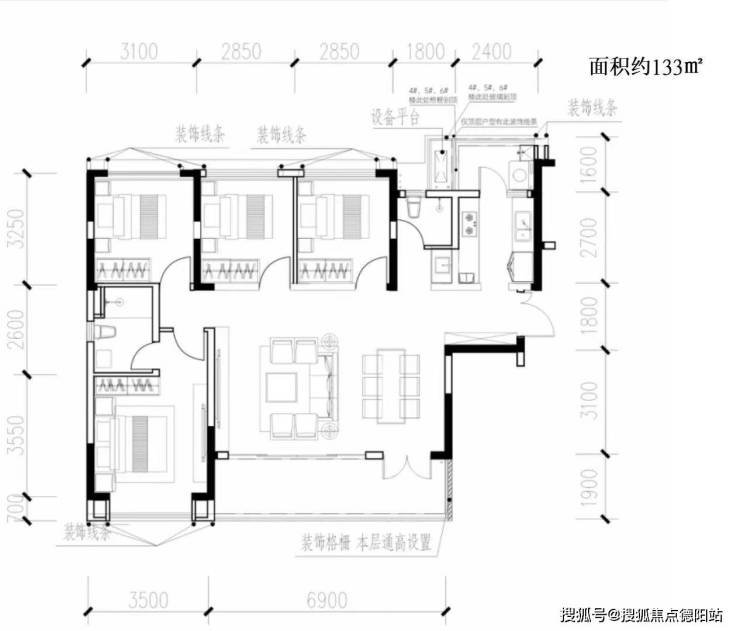
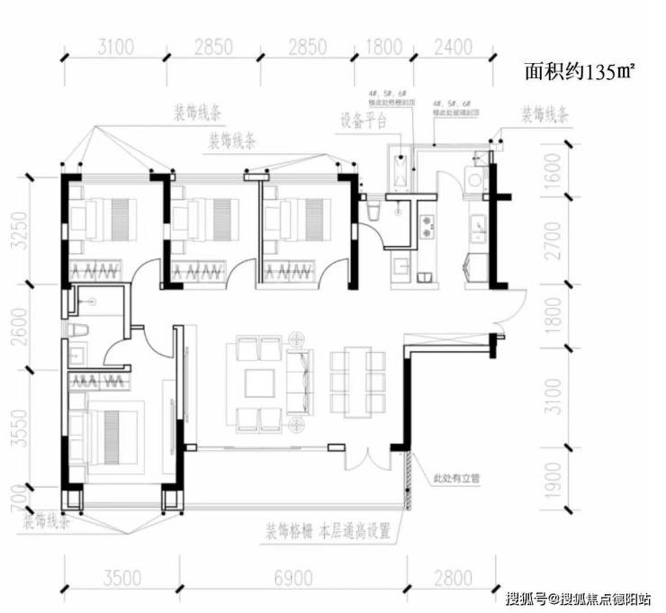
在售面积:125-135-143-180㎡(二期)
108-110-112-134-143㎡(三期)
单价15999起 中间楼层均价17500元
【项目基本信息】
•开发商:成都轨道交通集团
•物业公司:成都轨道万科物业有限公司
•总占地700亩 /二期占地64亩/三期占地74亩
•项目区位:金牛区北部新城-地铁5#幸福桥站
•总层高:二期12-17F(一楼4.5米架空层无住宅)三期9-17F
•容积率:2.0
•绿化率:二期52% 三期35%
•梯户比:二期2T2 三期 1T2户2T3户
•物业费:3.8元
•停车位:二期1:1.6三期1:1.2
•交房时间:二期2024.8月三期2025.10月
•总户数:二期624户三期503户
•交付标准:清水洋房
•公摊:二期17-20% 三期16-19%
交通:5号线幸福桥站50米,在建地铁27号线石门坎站300米
商业:汇融广场、龙湖锦宸天街、
大都会、福地广场
教育:机关三幼、第十六幼儿园(蜀道园区)
人民北路小学天北校区、成都实验小学
公园:凤凰山露天音乐公园、凤凰山体育公园
医疗:三甲医院西部战区总医院,
金牛区中医医院(在建)
目前,幸福桥TOD·幸福拾光项目一期已实景交付,低密优越的中庭景观、优美挺拔的建筑立面等,兑现着所有关于家的美好。
据了解,项目近期已加推三期地块,该地块由14栋9F—17F小高层组成。项目整体采用围合式布局,以阔绰的楼栋间距,充分保证每一户的视野采光,增强居住的体验性。在这里,能享受一种城市、人、自然、社区无界融合的生活方式。
幸福桥TOD·幸福拾光项目3期总平示意图
对于主城购房者而言,幸福桥TOD·幸福拾光无疑是可以“闭眼入”的代表。
为什么这么说?首先来看价格,当前5+2城区新房成交均价已达到26815元/㎡(数据来源:锐理数据),而幸福拾光三期最低单价仅约15999元/㎡起,放眼成都楼市,这样的价格极具竞争力。
其次,在价格因素之外,幸福桥TOD·幸福拾光以低密为法则,展示出高性价比的产品逻辑。购房者既能避免“刚需”尴尬的将就,也不需要承载高端改善高成本的压力,堪称区域的“性价比王者”。
在售户型:
☎售楼处电话028-83516246「来电尊享优惠」☎
☎【置业经理】:15928896133「微信同步」☎
温馨提示:为了给您提供更高更好的接待服务质量,看房请提前致电售楼处预约!
免责声明:
以上内容仅作为邀约邀请,涉及的图片为部分区域实拍图和美学畅想图,具体内容请以现场公示和合同约定为准;本文部分资料、部分图片来源于网络,如有侵权请联系我们删除。
声明:本文由入驻焦点开放平台的作者撰写,除焦点官方账号外,观点仅代表作者本人,不代表焦点立场。


