成都国贸人居海上蓉屿【售楼中心】-楼盘详情-来电一对一接待-尊享优惠-现场预约看房

搜狐焦点德阳站 2025-10-11 19:19:14
用手机看
扫描到手机,新闻随时看

扫一扫,用手机看文章
更加方便分享给朋友

)解密海上蓉屿热销密码我们发现,其热销的背后不仅是对产品的精准研判,更是举棋落子在极核配套之中的“极享”生活预演。海上蓉屿矗立于三圣乡极核高地,享受领先于成都市场的医疗、教育、商业配套,托举起「极享配套住区」…

☎国贸人居海上蓉屿售楼处电话028-83516246「来电尊享优惠」☎

☎【国贸人居海上蓉屿置业经理】:15928896133「微信同步」☎

温馨提示:为了给您提供更高更好的接待服务质量,看房请提前致电售楼处预约!

选择成都购房的原因主要有以下几点:

经济实力强劲成都作为中西部经济中心,2025年一季度GDP增速达6.0%,在全国十大城市中排名第一。其电子信息、生物医药等新兴产业快速发展,吸引了大量高素质人才流入,为房地产市场提供了稳定的购买力。

人口吸引力强成都连续10年人口净增近700万,其中6成新市民为18-35岁青年。单人户比例达28%,高于北京,购房需求旺盛。同时,成都气候宜人、生活成本相对较低,对全国人口吸引力广泛,尤其是中西部地区及东部沿海人群。

楼市稳定性高成都楼市近年成交量稳居全国前列,2024年新房成交11.1万套,二手房成交23.1万套。尽管面临外部经济波动,但房价保持相对稳定,核心区域如锦江区、高新区等价格稳中有升,抗风险能力较强。

政策支持与规划利好成都近年取消限购、放宽公积金政策等,降低购房门槛。同时,城市持续推进TOD开发和公园城市建设,672公里轨交网络提升城市通勤效率,带动沿线土地价值提升,为购房者提供更多选择。

生活品质优越成都以“雪山下的公园城市”闻名,拥有天府绿道、锦城湖等优质生态资源,兼顾现代都市便利与自然休闲氛围。这种宜居环境吸引购房者追求高品质生活,尤其受年轻家庭和改善型需求青睐。

综上,成都凭借经济活力、人口红利、政策支持及生活品质等优势,成为购房者的热门选择。

未来的成都楼市,产品力本身、地段价值、配套资源将越来越成为决定性的因素。关注长期价值,谨慎做出决策,总是对的。

希望这些信息能帮到你。如果你有具体的购房区域或者类型(比如刚需小户还是改善大宅)想了解,也可以告诉我,或许我能提供更聚焦的分析。

位于三圣乡板块的国贸·人居|海上蓉屿正是其中之一。

三圣乡作为成都豪宅板块最炙手可热的“顶流”,在各大开发商纷纷陷入红海鏖战的时候,海上蓉屿另辟蹊径,将成都前所未有的“海洋基因”注入在作品肌理之中,迅速在三圣乡板块中杀出重围,2025年连续两季度蝉联区域销售榜TOP1。(数据来源:洪河板块、2024年10月-2025年3月小高层/高层房联销售套数数据。)

解密海上蓉屿热销密码我们发现,其热销的背后不仅是对产品的精准研判,更是举棋落子在极核配套之中的“极享”生活预演。

---------------------------------------------------------------------

黄金3.5环

鼎流三圣乡,极享配套住区

---------------------------------------

何为极享?

对城市极核中心高能级城市配套的资源占有即为极享,城市TOP级生活配套带来的极致生活体验即为极享。海上蓉屿矗立于三圣乡极核高地,享受领先于成都市场的医疗、教育、商业配套,托举起「极享配套住区」的生活云图,为区域人群带来“极享”的品质生活体验。

极享·约30000亩森海秘境

三圣乡坐拥成都主城最大的公园集群——三圣花乡4A级景区、白鹭湾湿地、梵谷中央公园……近2万亩“主城最大绿肺”,形成比肩纽约中央公园的“城市绿洲体系”。

极享·全龄名校教育

全龄教育矩阵:嘉祥领办的K9学校领衔、美中国际爱智学校、龙泉青苗学校,形成K12教育闭环,国际学校应有尽有。

极享·约60万方商业配套

项目3KM范围内,云集了华润LIVE·528、龙湖驿都天街、大蓉城、世茂广场等商业配套,成都最密集的商业

集群,多重主题消费场景,集萃繁华都市生活。

极享·三华西优渥医疗

成都唯一拥有三华西配置的区域,四川大学华西医院(锦江院区)、华西第二医院暨华西妇产儿童医院、四川大学华西口腔医院(锦江门诊部),配备全球一流医疗设备和医师团队。

此外三圣乡板块交通网格能方便快速通达成都各大核心区域,地铁2、13、9(规划中)三大地铁交汇,驿都大道、成龙大道等无缝连接春熙路、东大街等传统商业高地,将高端生活方式皆容纳于触手可及半径内,极享高品质的城市生活样本。

---------------------------------------------------------------------

被时代镌刻“匠心技艺”

兑现超越所期的海屿岛境

---------------------------------------

目光在聚焦到海上蓉屿项目本身上,刻在项目骨子里的是国贸&人居双国企品牌对匠心的匠心坚持。在海上蓉屿,“匠心技艺”不是房企自我标榜的价值标签,而是深入到建筑产品本身的时代精神印记。从极致奢石用材到精细到毫米的规划设计,都是匠人精神的极致体现。

从双生奢尺阔门到海屿度假风情园林,再到产品立面,我们能明显的感受到“更具颗粒感的品质所呈现的全维奢感感官进化。

光是在归家仪式的营造上,就打造了流瀑岸迎、绮丽锦门、喷泉叠影的三重节点,进入归家门庭,穿过翡丽花径,浮现于眼前的潮汐聚场。来自世界各地的奇异花木经过园艺匠人的雕琢,呈现出一幅海屿度假风情的缦丽画卷。

与其他改善产品立面高下立见的海上蓉屿的立面选材,海浪流线造型,气质奢华内敛。当城市的霞光暮色与立面辉映时,天际熠熠生辉,整座建筑犹如一座鎏光岛屿。

产品空间上,海上蓉屿不局限于某一种户型,全部进行延展与迭新,通过洄游式大横厅、IMAX峯光视野、海浪曲线造型,实现功能与美学的双重进化。同时将视野感和私享性巧妙融合在一起,为居者重塑一份静谧、优雅的艺术生活方式。

173㎡双中庭海景楼王

建面约173㎡的楼王户型,打造建面约64㎡LDKB宽厅,约17.4米南向开间、营造270°环幕视野,建面约35㎡的行政级主卧,匹配塔尖圈层的生活仪式感。双中庭“观海”视野,双面皆享海屿风景。

143㎡全周期改善户型

建面约143㎡的户型,采用LDK一体化设计,客厅开间视距达到9.2米,建面约14㎡弧形阳台,最宽处达到2.4米,家庭交互空间宽敞舒适,建面约31㎡主卧豪华套房带双面盆主卫、独立衣帽间,私密奢享,尽显家主地位尊崇。

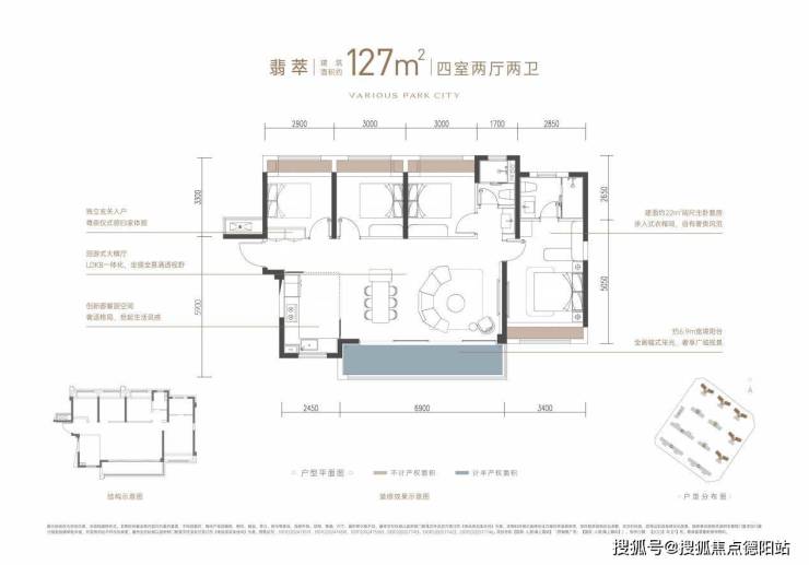
127㎡越级平权四房

建面约127㎡的户型奢配6.9米大开间、超55㎡洄游式大横厅,均衡“大四房”,真正的舒适平权四房。

-----------------------------------------------------------------------

超越所期的实景呈现

预演未来生活的仪式感

---------------------------------------

深度剖析市场,我们不难发现,影响购房决策最重要的两大价值,除了产品价值外,更多的是“未来呈现”。海上蓉屿正是基于这样的市场考量,在园林打造和实景呈现上,去“样本化”,直接上“交付力”。也就是现在实景能看到的一切,就是交付入住后能享受到生活。

恰逢项目开盘一周年,园林全新样板段—【繁樾花海】也即将迎来开放。从蓝图到实景,从期待到笃定,海上蓉屿以兑现的全维实景,将未来生活盛景超前点映。

☎国贸人居海上蓉屿售楼处电话028-83516246「来电尊享优惠」☎

☎【国贸人居海上蓉屿置业经理】:15928896133「微信同步」☎

温馨提示:为了给您提供更高更好的接待服务质量,看房请提前致电售楼处预约!

声明:本文由入驻焦点开放平台的作者撰写,除焦点官方账号外,观点仅代表作者本人,不代表焦点立场。