成都金融街·融御【售楼中心】-楼盘详情-来电一对一接待-尊享优惠-预约国庆看房
扫描到手机,新闻随时看
扫一扫,用手机看文章
更加方便分享给朋友
☎售楼处电话028-83516246「来电尊享优惠」☎
☎【置业经理】:15928896133「微信同步」☎
温馨提示:为了给您提供更高更好的接待服务质量,看房请提前致电售楼处预约!
成都为什么在全国房地产市场异军突起,遥遥领先?
天下未治蜀先治,天下未涨蜀先涨。西南,是中国的大后方,成都,就是这个大后方的核心。
从地理上来说,武汉往西的中国地域,大部分被高原丘陵和荒漠覆盖,气候温和又适宜人居的,除了狭长的关中平原,只有天府之国的四川盆地。
因此,成都除了吸附川内的城市,还包括甘肃、新疆、云南、贵州、重庆等地。虽然这些地方也不是中国富裕省份,但掏空6个钱包,举家支持,也是不小的购买力。
成都现在房产市场三级分化,第一类是核心资产,止跌横盘或小幅上涨都有,补涨的苗头已经出现了,这类资产受大环境影响很大,也是市场风向标,随时被人关注。
第二类是优质产品,表现不一,涨跌幅取决于之前的价格泡沫大小,像北门几个改善楼盘涨跌就很小,没有大涨过自然不会大跌,而以天新为代表的新开发区域、次新盘往往入市价格偏高,止跌压力比较大。
第三类是完全丧失流动性的小区,集中在五城区,只有居住价值,一年成交几套,探讨涨跌意义不大,成交数据比较偏离真实市场情况。
太古里旁绝版住宅全新推出
总府路十年首秀震撼登场【金融街·融御】
【项目实拍图】
『项目概况』
开发商:成都中逸实业有限公司(金融街)
项目占地:5015.48㎡
建筑面积:71730.17m
总户数:住宅144户、商办186户
拿地时间:2017年
车位数:365个
『项目信息』
房源面积:149、162、175、182、324平
均价:149均价2.8万 、162均价2.6 万
175均价2.7万 、 182均价2.8 万
324均价3.8万
在售楼层:5-47F
总价:400-1000万
层高:局部6.3m挑高
总更高:超高层47层
梯户比:4T7户、4T4户(顶楼)
公摊:27%
物业公司:金融街物业
物业费:4.95元/㎡/月
装修情况:清水
交房时间:2024年12月31号
学校片区:属锦一片区(对应的小学是锦官驿小学、和平街小学、天涯石昭宗祠分校,本项目就近的是和平街,中学则有七中育才水井坊校区、盐道街中学、十七中)
选择金融街·融御大理由
大品牌
千亿国企 中国500强金融街控股:金融街融御由金融街控股开发,这是一家来自北京的千亿上市国企。金融街控股成立于1992年,主要深耕五大城市群,“融御”是其旗下TOP级产品。成都的金融街融御,是继北京、上海、广州、深圳后,全国第5座融御,有一定示范意义。2017年,金融街控股进入成都市场,先后打造了金融街金悦府、金融街融府、花屿岛等楼盘。其中,位于成华龙潭寺的金融街融府已经交付,现阶段仅剩位于远郊新津的金融街金悦府和合作开发项目花屿岛还有货在售。也就是说,金融街融御是金融街控股在成都主城唯一住宅,也是公司核心项目。
春熙路商圈太古里旁:总府路10年来唯一新开的新房住宅,可以说没有竞品。最近的太升南路地铁口步行600米
中国西部第一大商业街:继香港铜锣湾、上海南京路中国第三大商业街
贵胄圈层
王侯将相,顶级政商高干人群聚集之地
物业管家
金融街控股物业公司+管家式服务
顾问 定制 伺服 圈层 管家 礼宾
酒店式配套服务
高端业主圈层社交俱乐部、健身房、瑜伽室
成熟配套
✅交通:周边有“两横两纵”的城市干道体系,包括横向的蜀都大道、新华大道;以及纵向的顺城大街和红星路;并通过区域内的毛细网路与之相连,既方便快捷.
✅地铁:已经建成的地铁1、2、3、4号线均在项目周边,其中距离最近的是4号线太升南路站,直线距离约500米;其次是3号线和4号线交汇的市二医院站,直线距离约670米;稍微远一点的,就是2号线和3号线交汇的春熙路站,直线距离约800米;基本上可以满足通达全城的需求。
公交环绕:公交3路、8路、45路、52路、53路、98路、138路
✅医疗:华西医院、成都军大医院、四川省第四人民医院、成都市第二人民医院
✅商业:毋庸置疑,全成都最繁华的商业,非这里莫属。300-500米范围内,就是春熙路传统的三大百货,王府井、茂业和百盛;600-800米范围内,是成都当前最具代表性的高端商业地标IFS和太古里;此外,周边1000米范围内,还有恒大广场、仁和春天、茂业天地、九龙广场、中环广场、群光广场、银石广场等;百年春熙路,这名头岂是盖的?
顶尖设计团队
整个项目邀请了基准方中、因澈思明景观设计联袂打造。其中,商业裙楼采用玻璃、文化石等材质,打造出具有民国风情的商业综合体,与周围的邮电局大楼等历史建筑更好的融为一体;而塔楼的部分则采用了公建化的外立面,利用中空双镀银low-e玻璃(具有良好的采光性,且没有“光污染”,更好的隔热和防紫外线功能,绿色节能环保)和铝板营造现代建筑风格,让业主可以坐拥市中心的无敌视野。
是所见即所得的准现房
金融街·融御是金融街控股(北京西城区国资委旗下上市公司)2017年就拿地的项目,项目的外立面、公共区域已经基本呈现,所见即所得。
挑高赠送和合理价格
因为拿地较早,所以在报规报建上,金融街·融御享受到了“老政策”,拥有局部6.3米的挑高空间,可以搭建出部分的赠送面积;同时,也因为拿地较早,政府指导价格相对偏低,预计清水限价2.8万/平,在当前楼市环境中,这个价格甚至比一些三环外的楼盘还便宜。一边是赠送面积大,一边是价格批的低,性价比就更突出了
区域图:
总平图:
户型图
区别于传统平层,这些房源均为跃层,采用的是局部挑高设计,6.3m层高,就当下的市场来说,很难再找下一个。
149㎡户型图
✅大落地窗,270°广角视野,尽瞰主城繁华
✅挑高6.3米,自主设计的空间大
✅动静分区私密性方面,跃层天然优势
✅ 可以拥有近7米开间的主卧大套房
149㎡样板间实拍
162㎡户型图
客厅意境图
✅2号房东南朝向,比同面积6号房和149㎡的日照更好
✅楼上楼下户型都很方正,改造设计空间大
✅动静分区私密性方面,跃层天然优势
182㎡户型图:
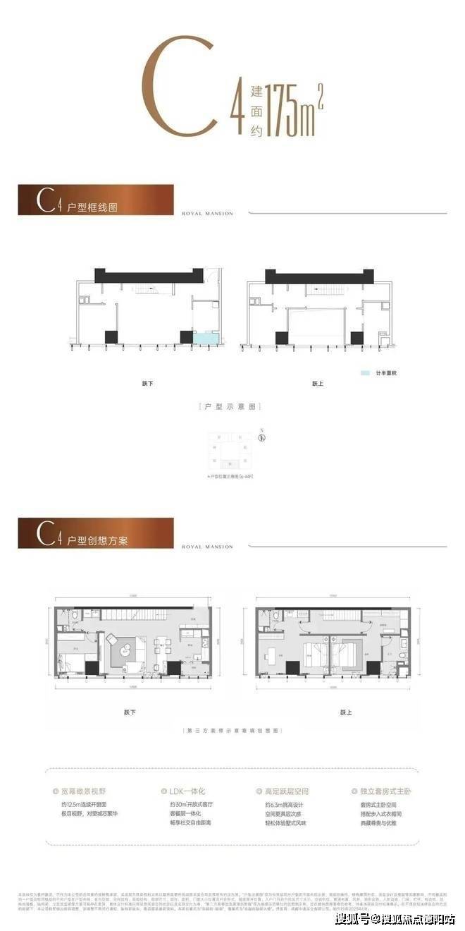
175㎡户型图:
效果图:
☎售楼处电话028-83516246「来电尊享优惠」☎
☎【置业经理】:15928896133「微信同步」☎
温馨提示:为了给您提供更高更好的接待服务质量,看房请提前致电售楼处预约!
声明:本文由入驻焦点开放平台的作者撰写,除焦点官方账号外,观点仅代表作者本人,不代表焦点立场。


