成都华兴锦樾河畔售楼处_预约看房 华兴锦樾河畔房价_楼盘详情...
扫描到手机,新闻随时看
扫一扫,用手机看文章
更加方便分享给朋友
02883516246
☎售楼处电话028-83516246「来电尊享优惠活动」☎
☎【置业经理】:15928896133「微信同步」☎
温馨提示:为了给您提供更高更好的接待服务质量,看房请提前致电售楼处预约!
【有免费看房车接送服务,如需预约,请致电售楼处】
成都现在房产市场三级分化,第一类是核心资产,止跌横盘或小幅上涨都有,补涨的苗头已经出现了,这类资产受大环境影响很大,也是市场风向标,随时被人关注。
第二类是优质产品,表现不一,涨跌幅取决于之前的价格泡沫大小,像北门几个改善楼盘涨跌就很小,没有大涨过自然不会大跌,而以天新为代表的新开发区域、次新盘往往入市价格偏高,止跌压力比较大。
第三类是完全丧失流动性的小区,集中在五城区,只有居住价值,一年成交几套,探讨涨跌意义不大,成交数据比较偏离真实市场情况。
2024年成都新房市场趋向高改化:成交主力面积段为120-144㎡,成交主力总价段为200-300万。其中,建面180㎡以上新房供应总量约为255万方,成交总量约为258万方,为成都新房市场成交次主力。
二手房成首置、首改家庭主阵地:2024年大成都二手房成交主力面积段为90㎡以内,成交次主力面积段为90-120㎡,建面120㎡以内中小户型的成交套数占比超八成,这说明在成都购买二手房市场的家庭,主要住房需求为首次置业或者首次改善;
根据2024年大成都二手房成交价格来看,总价两百万以内的房源成交占比接近九成,这说明活跃在成都二手房市场的家庭购房预期价格普遍在两百万以内。据CRIC数据,11月成都二手房成交规模居全国重点52城之首,远高于上海、北京,约为广州+深圳单月二手房成交总量的1.65倍。
成都二手房成交量之所以能领先于其他城市,一方面是因为卖旧买新的置换群体日渐增多,促使二手房挂牌量持续增加。
关键是成都对四川川内具备天然的人口吸附能力,城市首位度居全国第四,一城GDP占全省36.7%,仅次于银川、西宁、长春三市。
其二是人口流入在全国处于中上水平,考虑到成都已经有超2100万常住城市人口,这个数据也是很亮眼的。
第三是新房大幅度缩量,购买力转向二手市场,特别是总价400万以内这部分需求,在主城供应量正在减少。

对于2025年成都的房产走势,预测如下:5+2区域全年只卖了31宗地,新房库存见底,多个200㎡+户型曝光,大户型成明年新房供应主流
项目概况
开发商:华兴房产
项目规模:总占地面积约74亩,容积率1.5,绿地率30.04%
建筑规划:高层住宅5栋(22-26层)、洋房3栋(7-8层)、双拼住宅36栋
居住密度:总户数523户,车位配比1:1.6(规划839个)
交付标准:洋房全精装;高层1/2/4/5号楼精装,3号楼清水
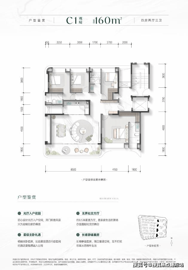
户型区间:高层99-160㎡,洋房160㎡
梯户配置:高层2T4/2T3,洋房1T2
产权年限:70年
预计交付:2027年12月27日
物业服务:成都兴华晟物业有限公司,高层3.6元/㎡·月,洋房3.8元/㎡·月

精品户型



全方位配套
立体交通网络:
项目坐拥"八横四纵"交通体系,北接天府一至五街,南临华府大道与警校路(直连成雅高速),东西向贯通华秀路、剑南大道、益州大道及天府大道等城市主干道。轨道交通方面,距离地铁5号线骑龙站约2公里,可便捷换乘7号、9号环线及19号机场快线。更值得期待的是规划中的15号线与22号线将在项目西南角设置换乘站(暂定名草碾子站),未来出行将更加高效。

多元商业配套:
社区内规划下沉式活力商业街区,周边15分钟车程内汇聚世豪广场、鹭洲里、伊藤洋华堂、银泰城、港汇天地及铁像寺水街等大型商业综合体,满足全方位消费需求。
优质教育资源:
地处全国唯一实行15年义务教育的双流区,项目周边已形成完善的全龄段教育体系。900米范围内即达双流区怡心第一实验学校,此外还分布着成都教科院附属学校、成都七中高新校区、美视国际学校及成都外国语学校等知名学府。

顶尖医疗资源:
3.5公里处正在建设四川大学华西医院高新院区(规划2000床位,预计2026年启用),1公里处规划建设第三人民医院高新院区(规划1200床位,预计2027年投入运营),两大三甲医院将为居民健康保驾护航。
生态宜居环境:
项目毗邻江安河,半径1公里内坐拥三大公园:500亩三江公园(在建)、192亩骑龙中水湿地公园及江安河滨河公园。这些绿地系统未来将串联形成规模可观的城市生态绿肺,为业主提供优质的休闲空间。
项目核心价值
华兴锦樾河畔
☎售楼处电话028-83516246「来电尊享优惠活动」☎
☎【置业经理】:15928896133「微信同步」☎
温馨提示:为了给您提供更高更好的接待服务质量,看房请提前致电售楼处预约!
【有免费看房车接送服务,如需预约,请致电售楼处】
声明:本文由入驻焦点开放平台的作者撰写,除焦点官方账号外,观点仅代表作者本人,不代表焦点立场。


