成都盈嘉赢家售楼处【2024成都新房二手房成交情况及2025年成都新房走势】
扫描到手机,新闻随时看
扫一扫,用手机看文章
更加方便分享给朋友
02883516246
☎盈嘉赢家售楼处电话028-83516246「来电尊享优惠」☎
☎【盈嘉赢家置业经理】:15928896133「微信同步」☎
温馨提示:有实体样板间,欢迎预约实地看房了解体验!
【有免费看房车接送服务,如需预约,请致电售楼处】
成都现在房产市场三级分化,第一类是核心资产,止跌横盘或小幅上涨都有,补涨的苗头已经出现了,这类资产受大环境影响很大,也是市场风向标,随时被人关注。
第二类是优质产品,表现不一,涨跌幅取决于之前的价格泡沫大小,像北门几个改善楼盘涨跌就很小,没有大涨过自然不会大跌,而以天新为代表的新开发区域、次新盘往往入市价格偏高,止跌压力比较大。
第三类是完全丧失流动性的小区,集中在五城区,只有居住价值,一年成交几套,探讨涨跌意义不大,成交数据比较偏离真实市场情况。
2024年成都新房市场趋向高改化:成交主力面积段为120-144㎡,成交主力总价段为200-300万。其中,建面180㎡以上新房供应总量约为255万方,成交总量约为258万方,为成都新房市场成交次主力。
二手房成首置、首改家庭主阵地:2024年大成都二手房成交主力面积段为90㎡以内,成交次主力面积段为90-120㎡,建面120㎡以内中小户型的成交套数占比超八成,这说明在成都购买二手房市场的家庭,主要住房需求为首次置业或者首次改善;
根据2024年大成都二手房成交价格来看,总价两百万以内的房源成交占比接近九成,这说明活跃在成都二手房市场的家庭购房预期价格普遍在两百万以内。据CRIC数据,11月成都二手房成交规模居全国重点52城之首,远高于上海、北京,约为广州+深圳单月二手房成交总量的1.65倍。
成都二手房成交量之所以能领先于其他城市,一方面是因为卖旧买新的置换群体日渐增多,促使二手房挂牌量持续增加。
关键是成都对四川川内具备天然的人口吸附能力,城市首位度居全国第四,一城GDP占全省36.7%,仅次于银川、西宁、长春三市。
其二是人口流入在全国处于中上水平,考虑到成都已经有超2100万常住城市人口,这个数据也是很亮眼的。
第三是新房大幅度缩量,购买力转向二手市场,特别是总价400万以内这部分需求,在主城供应量正在减少。

对于2025年成都的房产走势,预测如下:5+2区域全年只卖了31宗地,新房库存见底,多个200㎡+户型曝光,大户型成明年新房供应主流
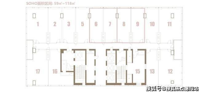
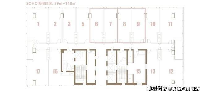
【基础数据】
面积:60平-98平-118平
楼层:8-20层
层高:3.9m
总楼层:37层(地下3层、地上34层)
总户数:503套
总高度:155.2米
梯户比:7梯15户
物业公司:戴德梁行(世界五大行之一,管家式服务),14元每平米
开发商:四川川发瑞丰投资有限公司
交房时间:付清房款10个月之内交付
交付标准:精装
装修标准:11000
项目立体图及夜景图:
项目卖点:
卖点一:盈嘉所处位置是绝版地段,不可复制、无可替代的,稳坐春熙路商圈头把交椅。项目地处春熙路核心地段,被IFS、金融汇、太古里所环抱,这里拥有近十个大型城市商业综合体,商业总面积超过500万方,并且这里云集了全市80%的外资机构和世界500强企业,还有200多家金融机构,近10万人办公。春熙路步行街每日人流量超过50万人次,可以说是全成都最繁华的地段。
卖点二:咱们项目作为地铁2.3号线春熙路站,双地铁上盖物业,抢占核心枢纽。春熙路商圈的核心已随着地铁开通而变化,盈嘉地下商业将于银石广场无缝连接,下楼就可以乘坐地铁,是名副其实的双地铁上盖物业。地铁春熙路站单日人流量高达150万人次,盈嘉无疑是地铁经济的最大受益者。
卖点三:政府牵头,打造千亿级国际影响力顶流商圈。2015年政府开始实施国际购物天堂计划,春熙路商圈将成为国家5A级旅游景区和千亿级国际影响力的顶流商圈,未来春熙路将更加的万众瞩目。
卖点四:我们项目将于银石广场、太古里强强联合,共创锦江区地下商业王国。以地铁2.3号线为中心,锦江区政府将重点打造地下商业中心。盈嘉地下商业打造的是多元特色美食街,已与银石广场连通,负二层已预留通道,和太古里地下商业无缝连接。相信在政府引导下,不仅能满足消费者需求,还能实现地下商业中心的繁华。
卖点五:盈嘉已成为成都网红标杆,我们的裙楼商业整体定位为时尚前沿动感的体验中心,地下商业打造的是多元特色美食街,地上两层商业引进时尚潮流运动品牌和汽车城市展厅等,还有成都最贵的裸眼3D户外大屏,成功吸引无数网红、街拍、明星等到此打卡,成为网红新地标。
卖点六:3.9米绝版层高,尊享至尊空间。盈嘉科学分区、灵动设计,270度全景落地窗,一揽春熙路的繁华和大慈寺的悠闲,尽享居住舒适感和视觉感。
卖点七:盈嘉配备奢华精装,是顶级轻奢服务式公寓。中央空调、新风、地暖全带,洁具杜拉维特,五金汉斯格雅等,盈嘉专为高管、海归等金字塔人群提供至尊服务。
卖点八:盈嘉聘请全球知名物业管理团队,世界五大行之一的戴德梁行,为您提供五星级的专属管家服务。
卖点九:租金眼见为实,投资安全可靠。从同区域的酒店和公寓运营情况来看,无论日租还是月租,高租金,高出租率、高回报率,可以说是投资零风险,春熙路不可复制的黄金地段所带来的高资金收益是完全得到市场认可的,其他区域无法超越的。
☎盈嘉赢家售楼处电话028-83516246「来电尊享优惠」☎
☎【盈嘉赢家置业经理】:15928896133「微信同步」☎
温馨提示:有实体样板间,欢迎预约实地看房了解体验!
【有免费看房车接送服务,如需预约,请致电售楼处】
免责声明:
以上内容仅作为邀约邀请,涉及的图片为部分区域实拍图和美学畅想图,具体内容请以现场公示和合同约定为准;本文部分资料、部分图片来源于网络,如有侵权请联系我们删除。
声明:本文由入驻焦点开放平台的作者撰写,除焦点官方账号外,观点仅代表作者本人,不代表焦点立场。


