成都广都鑫中心售楼处_ 清水单价6️⃣字头 总价30万起_一键直拨售楼处预约看房

搜狐焦点德阳站 2025-07-11 20:44:55
用手机看
扫描到手机,新闻随时看

扫一扫,用手机看文章
更加方便分享给朋友

本文主要介绍了成都双发君地置业有限公司的天府大道上核心区域水电气三通公寓项目,包括项目的总价、面积、楼层、交付标准、交房时间、付款方式、开发商和物业公司等信息,同时强调了项目的地理位置、交通便利性和预期收益。

☎售楼处电话028-83516246「来电尊享优惠活动」☎

☎【置业经理】:15928896133「微信同步」☎

温馨提示:为了给您提供更高更好的接待服务质量,看房请提前致电售楼处预约!

【有免费看房车接送服务,如需预约,请致电售楼处】

?年度爆款项目即将启动?

?天府大道上核心区域

☄️6️⃣字头水电气三通公寓

?租金2000每月起高回报项目

?双地铁1️⃣号线➕1️⃣8️⃣号线

❣️每年上千万巨大人流

?【项目参数】

占地面积:28.35亩

建筑面积:241470.5m

目前主售:双发天禧中心2号楼1、2单元

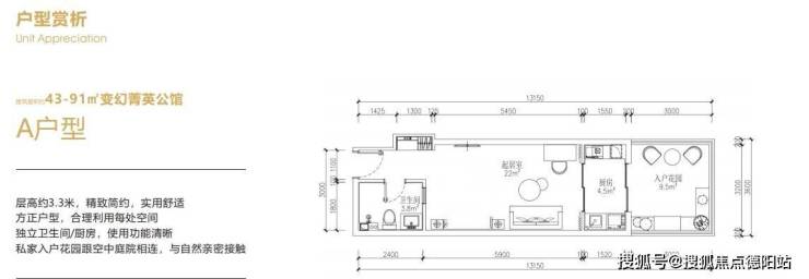
主力户型:57㎡

面积段:43㎡-91㎡(主力面积52-60)

层高:3.25-3.3米

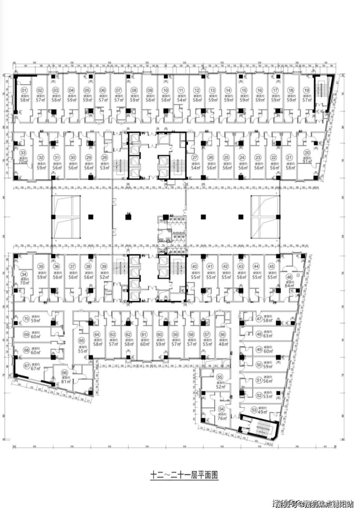
总高:25层

首开楼层:13、22

三通:水电气三通

公摊:30%左右

梯户比:6T33户 6T37户

物管费:4.9元

交付时间:合同2025年12月31日前

交付标准:清水

均价:6600-7500

付款方式:一次性

✅开发商:成都双发君地置业有限公司

✅物业公司:四川博蕙京通物业管理有限公司

?【核心卖点】

天府大道中轴线上 唯一在售总价低 小面积水电气三通产品 周边楼盘无竞品

双地铁(1号线/18号线)便捷出行

可交于 锦江国际(世界第二,亚洲第一酒店集团)旗下"欧暇地中海"酒店运营,清水交房后8个月为装修期(没有收益),装修好后6个月期间作为酒店培育期,没有保底收益,享受酒店运营分红收益(收益五五分成),从第7月开始,正式享受保底(保底30元/平)加酒店运营五五分红, 平均收益:3800-4000/月!

地处于金融城,新川科技园,天府新区中央商务区三大板块交汇的黄金金三角区域,桥头堡价值洼地,大大吸附周边区域人流。

每层自带600-700㎡高线公园。 每层只有十户享受额外赠送7-9㎡阳台空间。

【区域位置】

位于成都市天府新区天府大道1888号,是智能化绿色长廊的菁英空间,含有高端酒店、文化会所及中高端商业配套的综合体物业。

【交通配套】:

双地铁上盖:1号线华阳站 18号线海昌路站

503 504 T205等二十条公交线路

五纵四横立体网络

五纵:剑南大道、益州大道、天府大道、梓州大道(科华路南延线)、成自泸高速;

四横:三环路、绕城高速、华阳大道、麓山大道。

【商业配套】:项目1-4楼自带30000方的上海协星星光商业体,-1楼大型超市盒马生鲜,-2至-4楼自带1661个停车位 。

项目斜对面是家乐福购物中心

项目南面是三利广场,是集商务办公、综合购物、高端酒店、商业体验为一体的综合性购物广场,

项目对面还有金地三期约70万方的大型商业综合体,周边还有沃尔玛山姆会员店、红星美凯龙、富森美等综合性商业,实现人居蓝本的同时,项目在后期还会迎来配套的再一次升级。

【医疗配套】:拥有天府新区人民医院、四川石油总医院、玛利亚天府妇产儿童医院、天府新区安琪儿国际妇女儿童医院、四川省中西医结合医院、四川宝石花医院等。

【生态娱乐】:项目旁边是海昌极地海洋公园、南湖梦幻岛,南湖湿地公园等。

【优质教育】:金苹果幼儿园 天府四小 天府五小 天府实验小学 天府实验中学 天府实验外国语学校等。

✅【多变户型】

✅【装修风格】

☎售楼处电话028-83516246「来电尊享优惠活动」☎

☎【置业经理】:15928896133「微信同步」☎

温馨提示:为了给您提供更高更好的接待服务质量,看房请提前致电售楼处预约!

【有免费看房车接送服务,如需预约,请致电售楼处】

声明:本文由入驻焦点开放平台的作者撰写,除焦点官方账号外,观点仅代表作者本人,不代表焦点立场。