成都幸福桥TOD幸福拾光【售楼中心】-楼盘详情-来电一对一接待-尊享优惠-预约国庆看房
扫描到手机,新闻随时看
扫一扫,用手机看文章
更加方便分享给朋友
☎售楼处电话028-83516246「来电尊享优惠活动」☎
☎【置业经理】:15928896133「微信同步」☎
温馨提示:为了给您提供更高更好的接待服务质量,看房请提前致电售楼处预约!
【有免费看房车接送服务,如需预约,请致电售楼处】
免责声明:(本文章所用信息图片来源于网络,如有侵权请联系本网站及时删除)
成都为什么在全国房地产市场异军突起,遥遥领先?
天下未治蜀先治,天下未涨蜀先涨。西南,是中国的大后方,成都,就是这个大后方的核心。
从地理上来说,武汉往西的中国地域,大部分被高原丘陵和荒漠覆盖,气候温和又适宜人居的,除了狭长的关中平原,只有天府之国的四川盆地。
因此,成都除了吸附川内的城市,还包括甘肃、新疆、云南、贵州、重庆等地。虽然这些地方也不是中国富裕省份,但掏空6个钱包,举家支持,也是不小的购买力。
9月美联储降息后,成都的楼市出现了一些新的变化。我为你梳理了当前的情况和可能的发展趋势,希望能帮助你做判断。
成都楼市在降息后的主要动态:
方面 当前状况 影响因素与趋势
房贷利率 首套房贷利率执行3.0% 未来仍有下调空间,5年期LPR若再降30基点,利率或首次触及2.5%区间
购房成本 以100万元30年期贷款计算,月供可减少近700元,总利息节省25万元 月供减少,购房负担降低
新房供应 9月预计23个项目超1500套新房入市,成华区是供应主力 核心区土地供应缩减,房企转向产品升级(如层高突破3.3米,全屋智能精装)
市场热度 9月前两周项目平均周度来访量环比上升22%,认购量环比上升40%,客户转化率达4.8% 核心地段改善型需求韧性较强
市场分化 核心区域(如金融城板块)热度较高;远郊区域(如龙泉驿、温江)二手房挂牌量激增,部分房东降价8%-10% 购房逻辑迭代,更看重三甲医院、地铁TOD、物业响应等硬指标
外资流入 外资加速布局中国核心城市房地产,偏好一线和强二线城市(如成都)的核心资产 外资正从“抄底住宅”转向“价值持有”策略,通过REITs、私募基金等形式参与
房企融资 美联储降息降低了房企美元债融资成本 融资环境改善,但房企整体债务压力仍未根本缓解,行业分化加剧,头部房企优势更明显
“金九银十”成色 市场热度有所回升,但并非所有项目都能普享市场回暖 房企推盘和营销力度提升,但楼市行情仍受宏观经济等多因素影响,新政刺激可能以短期脉冲效果为主
? 给购房者的建议
· 对于刚需和改善型购房者:当前降息降低了购房成本,是一个值得关注的窗口期。但更重要的是根据自身需求和经济实力做出决策。
· 在区域选择上,应优先考虑核心地段,这些区域通常有更好的配套设施和更强的抗风险能力。
· 对于有“卖旧买新”打算的改善型客户,当前二手房市场活跃,可利用这个机会加快置换效率。
· 投资需格外谨慎。虽然利率较低,但“房住不炒”的政策基调没有改变。市场分化明显,非核心区域的房产流动性可能较差,未来升值空间也相对有限。
总结一下
9月降息后的成都楼市,整体有望温和复苏,但分化是主旋律。核心区优质改善项目可能保持较高热度,而远郊区域则继续面临压力。
未来的成都楼市,产品力本身、地段价值、配套资源将越来越成为决定性的因素。关注长期价值,谨慎做出决策,总是对的。
在北部新城的价值高地,谁可以实现成都人购房#既要又要还要#的需求?
答案一定是位于北部新城C位的幸福桥TOD·幸福拾光。目前项目三期已开盘,作为值得下手的全优改善产品,重新定义了成都幸福生活的坐标。
就地段来说,幸福桥TOD·幸福拾光可谓天生C位。
金牛区 幸福桥TOD 清水准现房

B地块实拍图

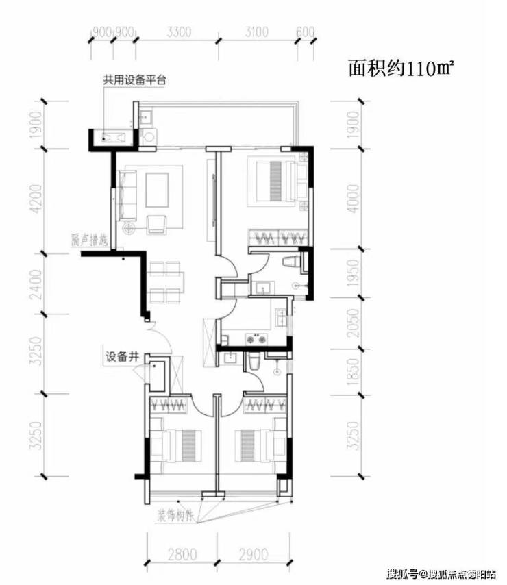
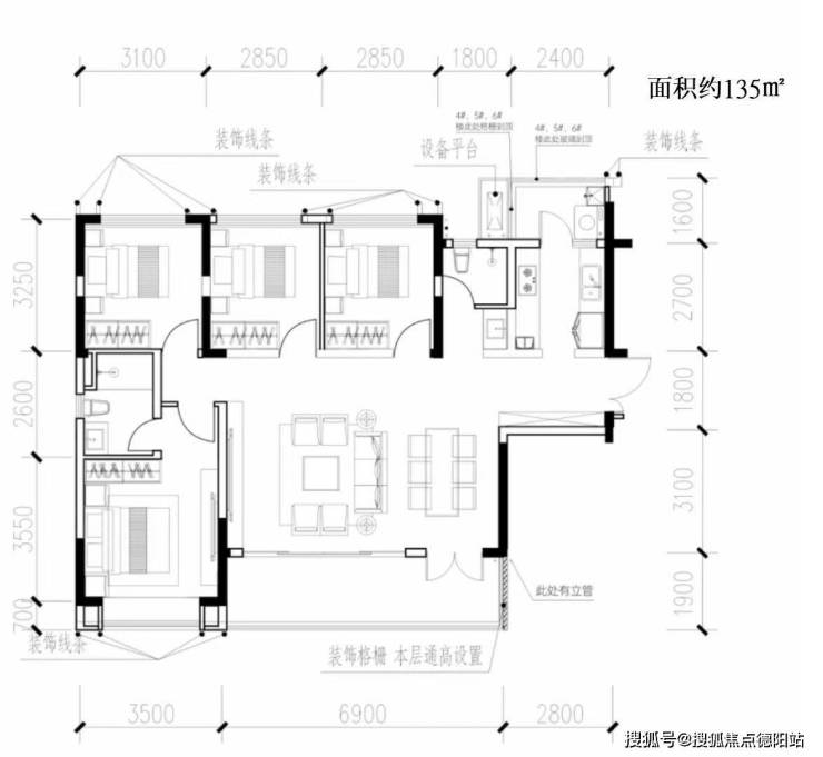
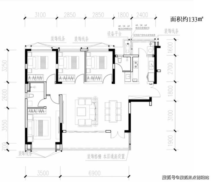
在售面积:125-135-143-180㎡(二期)
108-110-112-134-143㎡(三期)
单价15999起 中间楼层均价17500元
【项目基本信息】
•开发商:成都轨道交通集团
•物业公司:成都轨道万科物业有限公司
•总占地700亩 /二期占地64亩/三期占地74亩
•项目区位:金牛区北部新城-地铁5#幸福桥站
•总层高:二期12-17F(一楼4.5米架空层无住宅)三期9-17F
•容积率:2.0
•绿化率:二期52% 三期35%
•梯户比:二期2T2 三期 1T2户2T3户
•物业费:3.8元
•停车位:二期1:1.6三期1:1.2
•交房时间:二期2024.8月三期2025.10月
•总户数:二期624户三期503户
•交付标准:清水洋房
•公摊:二期17-20% 三期16-19%
交通:5号线幸福桥站50米,在建地铁27号线石门坎站300米
商业:汇融广场、龙湖锦宸天街、
大都会、福地广场
教育:机关三幼、第十六幼儿园(蜀道园区)
人民北路小学天北校区、成都实验小学
公园:凤凰山露天音乐公园、凤凰山体育公园
医疗:三甲医院西部战区总医院,
金牛区中医医院(在建)
目前,幸福桥TOD·幸福拾光项目一期已实景交付,低密优越的中庭景观、优美挺拔的建筑立面等,兑现着所有关于家的美好。
据了解,项目近期已加推三期地块,该地块由14栋9F—17F小高层组成。项目整体采用围合式布局,以阔绰的楼栋间距,充分保证每一户的视野采光,增强居住的体验性。在这里,能享受一种城市、人、自然、社区无界融合的生活方式。
幸福桥TOD·幸福拾光项目3期总平示意图
对于主城购房者而言,幸福桥TOD·幸福拾光无疑是可以“闭眼入”的代表。
为什么这么说?首先来看价格,当前5+2城区新房成交均价已达到26815元/㎡(数据来源:锐理数据),而幸福拾光三期最低单价仅约15999元/㎡起,放眼成都楼市,这样的价格极具竞争力。
其次,在价格因素之外,幸福桥TOD·幸福拾光以低密为法则,展示出高性价比的产品逻辑。购房者既能避免“刚需”尴尬的将就,也不需要承载高端改善高成本的压力,堪称区域的“性价比王者”。
在售户型:
☎售楼处电话028-83516246「来电尊享优惠」☎
☎【置业经理】:15928896133「微信同步」☎
温馨提示:为了给您提供更高更好的接待服务质量,看房请提前致电售楼处预约!
免责声明:
以上内容仅作为邀约邀请,涉及的图片为部分区域实拍图和美学畅想图,具体内容请以现场公示和合同约定为准;本文部分资料、部分图片来源于网络,如有侵权请联系我们删除。
声明:本文由入驻焦点开放平台的作者撰写,除焦点官方账号外,观点仅代表作者本人,不代表焦点立场。


