成都高投启鸣双子售楼处【2024成都新房二手房成交情况及2025年成都新房走势】
扫描到手机,新闻随时看
扫一扫,用手机看文章
更加方便分享给朋友
02883516246
☎高投启鸣双子售楼处电话028-83516246「来电尊享优惠活动」☎
☎【高投启鸣双子置业经理】:15928896133「微信同步」☎
温馨提示:为了给您提供更高更好的接待服务质量,看房请提前致电售楼处预约!
【有免费看房车接送服务,如需预约,请致电售楼处】
成都现在房产市场三级分化,第一类是核心资产,止跌横盘或小幅上涨都有,补涨的苗头已经出现了,这类资产受大环境影响很大,也是市场风向标,随时被人关注。
第二类是优质产品,表现不一,涨跌幅取决于之前的价格泡沫大小,像北门几个改善楼盘涨跌就很小,没有大涨过自然不会大跌,而以天新为代表的新开发区域、次新盘往往入市价格偏高,止跌压力比较大。
第三类是完全丧失流动性的小区,集中在五城区,只有居住价值,一年成交几套,探讨涨跌意义不大,成交数据比较偏离真实市场情况。
2024年成都新房市场趋向高改化:成交主力面积段为120-144㎡,成交主力总价段为200-300万。其中,建面180㎡以上新房供应总量约为255万方,成交总量约为258万方,为成都新房市场成交次主力。
二手房成首置、首改家庭主阵地:2024年大成都二手房成交主力面积段为90㎡以内,成交次主力面积段为90-120㎡,建面120㎡以内中小户型的成交套数占比超八成,这说明在成都购买二手房市场的家庭,主要住房需求为首次置业或者首次改善;
根据2024年大成都二手房成交价格来看,总价两百万以内的房源成交占比接近九成,这说明活跃在成都二手房市场的家庭购房预期价格普遍在两百万以内。据CRIC数据,11月成都二手房成交规模居全国重点52城之首,远高于上海、北京,约为广州+深圳单月二手房成交总量的1.65倍。
成都二手房成交量之所以能领先于其他城市,一方面是因为卖旧买新的置换群体日渐增多,促使二手房挂牌量持续增加。
关键是成都对四川川内具备天然的人口吸附能力,城市首位度居全国第四,一城GDP占全省36.7%,仅次于银川、西宁、长春三市。
其二是人口流入在全国处于中上水平,考虑到成都已经有超2100万常住城市人口,这个数据也是很亮眼的。
第三是新房大幅度缩量,购买力转向二手市场,特别是总价400万以内这部分需求,在主城供应量正在减少。

对于2025年成都的房产走势,预测如下:5+2区域全年只卖了31宗地,新房库存见底,多个200㎡+户型曝光,大户型成明年新房供应主流
高投·启鸣双子以“核心地段+国企品质+大师设计+极致户型”四重优势,填补新川核心区高性价比改善空白,成为人才留驻高新区的理想人居范本。
——2025年高新必看项目,新川新作
——新川核心区国企迭新之作,重塑改善人居标杆

高投启鸣宸序&观樾【项目核心价值】
★ 【高新3.0 全城改善必看新川】上个十年看金融城,下个十年看新川。新川,全球卓越的未来城市样板间。
★ 【产城交融 · 距离世界最近的10平方公里】经国务院批准的全国首批国家级高新区;成都金融大脑经济脊梁。
★ 【865亩新川之心 · 黄金一公里极核区】新川正席一公里范围内在售项目稀缺,双子坐拥成熟资源高地,兑现度领先板块。
★ 【高投启鸣系 · 全T2板式四房 | 全系互动架空层 | 超高得房率 】国企品质背书,成都高投打造,高新区新规首作,得房率与产品力双重突破。
一、区位配套分析
交通便捷性
——地铁:距离6号线蒲草塘站约500米,1号线四河站约1.2公里。
——道路网:紧邻新川主干道新程大道,快速连接天府大道、梓州大道等城市动脉。
全维配套
——教育:启鸣宸序与上海师范大学成都海川学校(九年一贯制)仅一街之隔,周边另有金苹果锦城一中附属小学等优质资源。
——商业/生活:步行范围内涵盖新川邻里中心(含社区商业、农贸市场)、AI创新中心商业体。
——生态/产业:毗邻新川湿地公园、新川之心公园;周边聚集AI创新中心、5G智慧产业园等高新产业。
二、项目产品力解析
1. 设计美学
建筑立面:
香槟金+深空灰双色搭配,龙鳞纹发光塔冠、海宝蓝石材干挂基座,呈现轻奢地标感。
园林设计:
启鸣宸序:约80米月光轴串联13座主题花园,45米归家大门+仪式水景。
启鸣观樾:泰国VERSO HUA HIN酒店灵感浮岛中庭,热带植被+流水幕墙营造度假感。

三、“双子”项目信息概览
【启鸣宸序】
占地面积:30.2亩
绿地率:35%
总户数:383户
建筑类型:小高层
梯户比:2T2
装修情况:臻装大平层
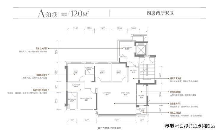
建面约120㎡ | 超配四房•光厅双厅双卫
建面约143㎡ | 高奢四房•光厅双厅三卫
【启鸣宸序】
【启鸣观樾】
占地面积:17亩
绿地率:35%
总户数:221户
建筑类型:小高层
梯户比:2T2
装修情况:臻装大平层
建面约120㎡ | 超配四房•光厅双厅双卫
建面约143㎡ | 高奢四房•光厅双厅三卫
【启鸣观樾】
四、户型鉴赏
☎售楼处电话028-83516246「来电尊享优惠活动」☎
☎【置业经理】:15928896133「微信同步」☎
温馨提示:为了给您提供更高更好的接待服务质量,看房请提前致电售楼处预约!
【有免费看房车接送服务,如需预约,请致电售楼处】
免责声明:
以上内容仅作为邀约邀请,涉及的图片为部分区域实拍图和美学畅想图,具体内容请以现场公示和合同约定为准;本文部分资料、部分图片来源于网络,如有侵权请联系我们删除。
声明:本文由入驻焦点开放平台的作者撰写,除焦点官方账号外,观点仅代表作者本人,不代表焦点立场。


