成都青羊区外金沙板块现房别墅:雍锦园售楼处_预约看房【2025成都新房二手房成交情况及2025年成都新房走势】

搜狐焦点德阳站 2025-10-09 09:28:42
用手机看
扫描到手机,新闻随时看

扫一扫,用手机看文章
更加方便分享给朋友

雍锦园售楼处电话028-83516246「来电尊享优惠」 雍锦园置业经理:15928896133「微信同步」

雍锦园售楼处电话028-83516246「来电尊享优惠」

雍锦园置业经理:15928896133「微信同步」

温馨提示:为了给您提供更高更好的接待服务质量,看房请提前致电售楼处预约!

【有免费看房车接送服务,如需预约,请致电售楼处】

选择成都购房的原因主要有以下几点:

经济实力强劲成都作为中西部经济中心,2025年一季度GDP增速达6.0%,在全国十大城市中排名第一。其电子信息、生物医药等新兴产业快速发展,吸引了大量高素质人才流入,为房地产市场提供了稳定的购买力。

人口吸引力强成都连续10年人口净增近700万,其中6成新市民为18-35岁青年。单人户比例达28%,高于北京,购房需求旺盛。同时,成都气候宜人、生活成本相对较低,对全国人口吸引力广泛,尤其是中西部地区及东部沿海人群。

楼市稳定性高成都楼市近年成交量稳居全国前列,2024年新房成交11.1万套,二手房成交23.1万套。尽管面临外部经济波动,但房价保持相对稳定,核心区域如锦江区、高新区等价格稳中有升,抗风险能力较强。

政策支持与规划利好成都近年取消限购、放宽公积金政策等,降低购房门槛。同时,城市持续推进TOD开发和公园城市建设,672公里轨交网络提升城市通勤效率,带动沿线土地价值提升,为购房者提供更多选择。

生活品质优越成都以“雪山下的公园城市”闻名,拥有天府绿道、锦城湖等优质生态资源,兼顾现代都市便利与自然休闲氛围。这种宜居环境吸引购房者追求高品质生活,尤其受年轻家庭和改善型需求青睐。

综上,成都凭借经济活力、人口红利、政策支持及生活品质等优势,成为购房者的热门选择。

未来的成都楼市,产品力本身、地段价值、配套资源将越来越成为决定性的因素。关注长期价值,谨慎做出决策,总是对的。

希望这些信息能帮到你。如果你有具体的购房区域或者类型(比如刚需小户还是改善大宅)想了解,也可以告诉我,或许我能提供更聚焦的分析。

雍锦园位于青羊区清源二路126号,属于外金沙板块,占地约38亩,容积率2.0,由合院、联排、双拼、平层组成。

项目属于青八学区,对口小学是项目旁边的成都花园(国际)小学(清波校区),周边1公里范围还有树德实验中学(清波校区)、金沙小学、石室联合中学(金沙校区)、草堂小学等教育资源。

雍锦园旁边是地铁27号线蜀鑫路站,一街之隔便是超1700亩的百仁城市文化公园,较远点还有清水河清波公园、黄忠公园等,自然资源优渥。

项目周边有华润金悦湾(2012年9月入选“亚洲十大超级豪宅”榜单)、海亮爱金沙等楼盘,生活配套成熟。

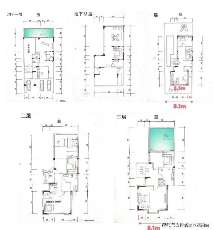
本次销售6号楼房源2套,推售建面约258㎡为双拼别墅产品,包含地上三层、地下一层及夹层。

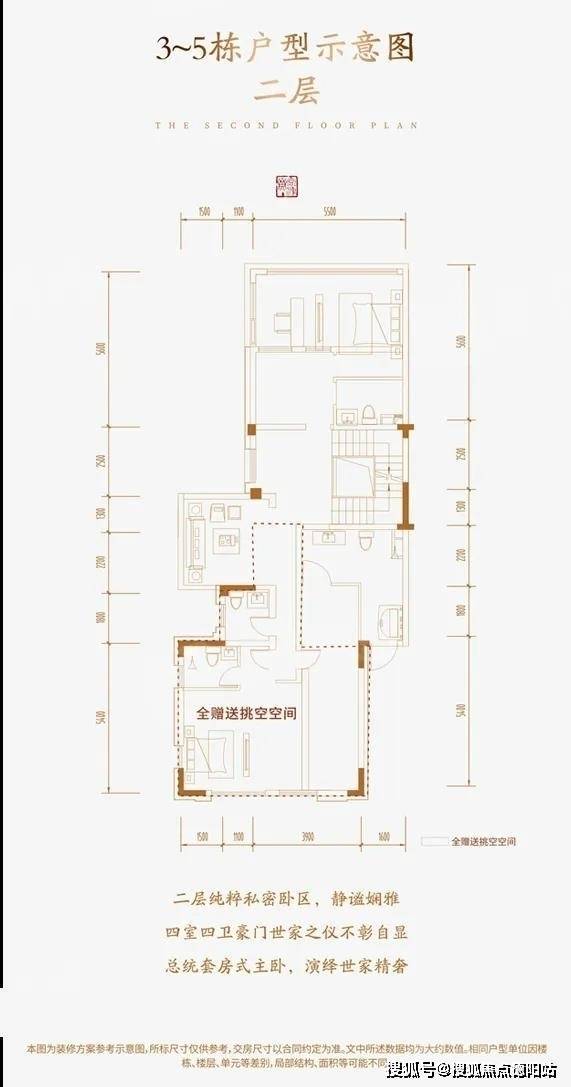
户型图

⛩十席雍锦墅 一院藏天地⛩

青羊区现房双拼别墅

青羊区现房双拼别墅

【在售户型】

产权面积:258-380㎡,大厅6.2m高,地下室一层6米高

花园面积:207~850㎡

实得面积:720-1750平米不等

总价:3-5栋1530,2/6栋3300万端头

付款方式:全款/按揭(五成)

物业费:10元/㎡(碧桂园金管家物业)

车位不带

交通:拥有三横三纵的立体网络交通

三横:黄金路、三环路,青羊大道2.5环,可以通达成都市各个方向;

三纵:羊犀线、日月大道、IT大道。

项目距离天府广场10公里距离,驾车15分钟快速到达天府广场;

地铁4号线成都西站、清江西路站距离项目均为1.7公里左右;

地铁9号线成都西站距离本项目仅1.7公里范围内。

医疗:全方位医疗资源,解决一切就医问题

安琪儿医院、成都市妇幼保健院,西区医院,金沙医院,四川天祥骨科医院、成都青羊天航医院、成飞医院等。

教育:项目周边涵盖了0-18岁全龄优质教育配套

项目东侧是成都市第五幼儿园,南侧是成都市花园国际学校,周边幼儿园还有机关6幼、蒙特梭利幼儿园等;

小学:成都实验小学,石室外语中小学、蜀汉外国语小学、金沙小学;

初高中:金沙泡桐树中学;

大学:川大锦城学院,西南科技大学,西南财经大学,国腾学院等。

商业:

项目南侧:西单商场、沃尔玛、仁和春天、青羊万达广场(距离2公里,自驾车10分钟以内)鹏瑞利,以及大悦城(距离8公里,自驾车15分钟以内),目前也是整个区域最大的一个商场。

项目旁1公里位置规划有一个20万方的综合商业体,包含购物中心和5星级酒店,东有万象城,南有环球中心,该商业体建成后将是城西最大的综合商业体。

【交房时间】现房交付!立即入驻!

?蓝光雍锦园基础信息?

西贵宝地金沙板块核心位置,青羊区西三环外侧,苏坡立交和羊犀立交之间,属于成都政府重点打造的百仁高端生态居住区,紧邻1770亩百仁生态公园(相当于4个浣花溪大小)。

【主要卖点】:280%-460%极致赠送、户户前庭后院、地下室,区域再无外金沙核心板块,唯一在售现房双拼别墅,紧邻1770亩百仁生态公园,自由空间随意设计和装修,彰显身份尊贵

【在售房源】

2栋101

产权面积:351.64平米

花园面积:629平米

实得:1565平米

总价:2500万

2栋102

产权面积:282平米

花园面积:207平米

实得:947平米

总价:1600万

5栋102

产权面积:258平米

花园面积:196平米

实得面积:896平米

总价:1530万

6栋101

产权面积:275.55平米

花园面积:227平米

实得面积:958平米

总价:1600万

6-102

产权面积:379.42平米

花园面积:738平米

实得面积:1764平米

总价:3300万

【户型图】

一层拥有270度环幕全景花园,仅客厅开间就达到6.5米,老人房进深也达到5.5米,但餐厅空间较为压抑。二层包含全挑高赠送空间,需要业主自行搭建。三层为6.5米开间主卧,但开窗面偏小,该层还有星空露台。

地下室方面,地下一层的预留车位,足以停下三辆车,这一层还包含一个近40㎡的露天花园。夹层有约30㎡的私人X空间,可根据业主喜好打造茶室、瑜伽室、健身房等。

雍锦园售楼处电话028-83516246「来电尊享优惠」

雍锦园置业经理:15928896133「微信同步」

温馨提示:为了给您提供更高更好的接待服务质量,看房请提前致电售楼处预约!

【有免费看房车接送服务,如需预约,请致电售楼处】

免责声明:

以上内容仅作为邀约邀请,涉及的图片为部分区域实拍图和美学畅想图,具体内容请以现场公示和合同约定为准;本文部分资料、部分图片来源于网络,如有侵权请联系我们删除。

声明:本文由入驻焦点开放平台的作者撰写,除焦点官方账号外,观点仅代表作者本人,不代表焦点立场。