成都绿城润百合售楼处【2024成都新房二手房成交情况及2025年成都新房走势】
扫描到手机,新闻随时看
扫一扫,用手机看文章
更加方便分享给朋友
02883516246
☎绿城润百合售楼处电话028-83516246「来电尊享优惠」☎
☎【绿城润百合置业经理】:15928896133「微信同步」☎
温馨提示:为了给您提供更高更好的接待服务质量,看房请提前致电售楼处预约!
成都现在房产市场三级分化,第一类是核心资产,止跌横盘或小幅上涨都有,补涨的苗头已经出现了,这类资产受大环境影响很大,也是市场风向标,随时被人关注。
第二类是优质产品,表现不一,涨跌幅取决于之前的价格泡沫大小,像北门几个改善楼盘涨跌就很小,没有大涨过自然不会大跌,而以天新为代表的新开发区域、次新盘往往入市价格偏高,止跌压力比较大。
第三类是完全丧失流动性的小区,集中在五城区,只有居住价值,一年成交几套,探讨涨跌意义不大,成交数据比较偏离真实市场情况。
2024年成都新房市场趋向高改化:成交主力面积段为120-144㎡,成交主力总价段为200-300万。其中,建面180㎡以上新房供应总量约为255万方,成交总量约为258万方,为成都新房市场成交次主力。
二手房成首置、首改家庭主阵地:2024年大成都二手房成交主力面积段为90㎡以内,成交次主力面积段为90-120㎡,建面120㎡以内中小户型的成交套数占比超八成,这说明在成都购买二手房市场的家庭,主要住房需求为首次置业或者首次改善;
根据2024年大成都二手房成交价格来看,总价两百万以内的房源成交占比接近九成,这说明活跃在成都二手房市场的家庭购房预期价格普遍在两百万以内。据CRIC数据,11月成都二手房成交规模居全国重点52城之首,远高于上海、北京,约为广州+深圳单月二手房成交总量的1.65倍。
成都二手房成交量之所以能领先于其他城市,一方面是因为卖旧买新的置换群体日渐增多,促使二手房挂牌量持续增加。
关键是成都对四川川内具备天然的人口吸附能力,城市首位度居全国第四,一城GDP占全省36.7%,仅次于银川、西宁、长春三市。
其二是人口流入在全国处于中上水平,考虑到成都已经有超2100万常住城市人口,这个数据也是很亮眼的。
第三是新房大幅度缩量,购买力转向二手市场,特别是总价400万以内这部分需求,在主城供应量正在减少。

对于2025年成都的房产走势,预测如下:5+2区域全年只卖了31宗地,新房库存见底,多个200㎡+户型曝光,大户型成明年新房供应主流
【绿城·润百合】
建面约140-175㎡新规1号洋房作品
东大街·攀成钢·绿城公园滨水低密住宅

【基础信息】
项目位置:成华区九寨沟路
开 发 商:成都丽景房地产开发有限公司
物 业:绿城物业
总 户 数:230户
总栋数:10栋
均价区间:3.2-4万
总价区间:
•140平:450-520万
•160平:560-600万
•175平:650-700万
物 业 费:6元/平
建筑类型:小高层、洋房
产权年限:70年
总 占 地:26亩
容 积 率:2.0
绿 化 率:30%
得 房 率:110%
装修情况:精装(带三大件)
精装标准:140平:3699
160/175平:3899
车 位:1:1.2(202个)
梯 户 比:7F(1T2户)、17F(2T2户)
拿地时间:2025年2月25日
交房时间:2027年4月30日
【豪宅专家,履迹全国】
绿城中国控股有限公司,自1995年肇起杭州西子湖畔,绿城便秉持“真诚、善意、精致、完美”为信仰,以“理想生活综合服务商”为愿景的匠造之路,30载脚踏实地,先后进驻30个省份、200余座城市,近1000座美丽家园,约150万“绿粉”,带着“绿城基因”的作品在当地扎根生长,绽放生命华章 。
【战略级作品—百合系】
每一朵百合都开在城市心上!城市心之所向,百合沁香而往。从杭州武林到宁波慈溪潮塘,到南京鼓楼,到苏州奥体南,到成都攀成钢东,绿城“百合”产品序列,礼献每一座城市的心上。
【城市中轴东大街——千年金融中心】
成都千年金融中心,有着“西部华尔街”的美誉,沿线汇集了超150家各类金融机构,其中14家外资银行,还有128家世界500强企业 ,不仅串联起春熙路时尚商圈、锦东商圈、攀成钢商圈等重要节点,同时也构造了城东高端人居发展板块,未来发展不可限量。
【东大街上高端人居3.0板块-攀成钢东】
继2007年的东大街上第一代豪宅时代豪庭,2012年的第二代高端人居攀成钢十年断供后,东大街沿线高端人居项目持续迭代升级。攀成钢东,已然成为东大街沿线上新的高端人居新板块,绿城润百合以全新的产品规划,低密、迭代的产品设计,更高颜值的立面设计及更精巧别致的园林景观打造城市高端生活范本。

【极核生活,尽享城市顶级配套】
?最便捷交通资源:步行可达2、7号线双地铁,三横三纵立体交通网络,半小时通达全城;
?城市级商业配套:5min攀成钢商圈、10min万象城商圈、15min春熙路商圈;
?国际化教育配套:英华学校(K9)、成都市第十二幼、蓉城小学;
?最稀缺生态资源:1min秀水河公园、5min塔子山公园、10min望江公园、20min青龙湖生态湿地公园;
?殿堂级医疗保障:半小时内华西本部、华西附二院、华西锦江院区,全系顶级三甲医院环伺;
【成都二环边唯一公园洋房社区】
公园城市,难得城东低密栖居
秀水新境,演绎滨水生活样本
借鉴巴瓦庄园的打造手法,在公园的底盘上,打造新规下1号洋房产品,体感容积率仅1.2。
【以百合为灵感,创造独特天际封面】
“全面屏”的通透设计,演绎内外无界的交互质感
“曲面镜”的圆弧倒角,创造温润柔和的视线质感
“悬浮阳台:的飘逸视效,塑造灵动美好的花蕊质感
本案的整体立面设计,将以兼具经典感与未来性的产品设计,完成对区域整体美学的引领,进而形成屹立于都心的封面昭示。

【大师级森奢园林景观,城东的公园秀场】
Amanpuri同款景观,以海纳百川的设计手法,形成移步异景的生活感受,打造舒适治愈的生活氛围,轻松休闲的园区享受。
以百合门庭、廊厅水院、艺境花园、林荫剧场、秘境之丘、沁蕊长廊等多场景的打造,构建成都生活的”蒙太奇“。

【1+5花园会所体系,奢享品味】
会所结合景观打造超1000㎡内外无界空间,定制室内网球馆、桌球室、健身房、行政酒廊等奢享系统,于此塔尖圈层,际会风云人物。

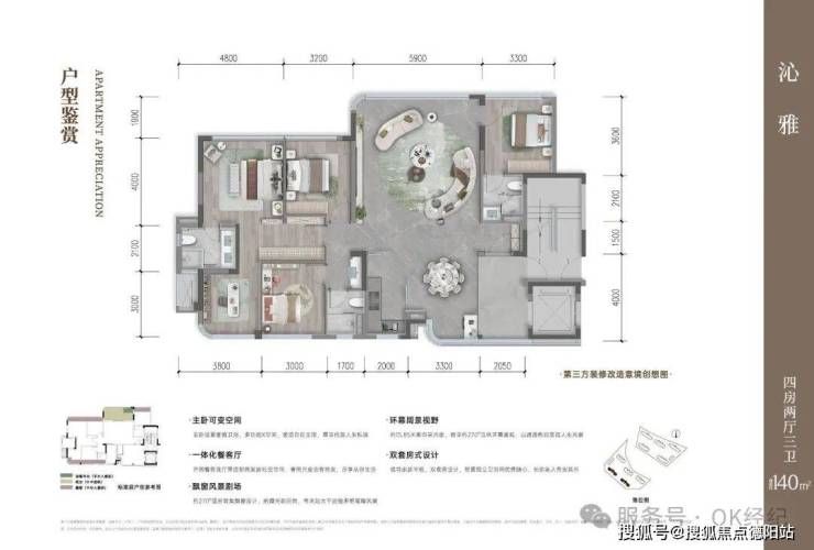
【户型鉴赏】
沁雅——140㎡洋房(实得约160平米)
(四房双卫双套房,主卧带独立衣帽间)
金枝——140㎡小高层
(超大入户光厅,实得约155平米)
云赏——160㎡小高层
(9米开间,超宽视野,100咪楼间距,可做五房,实得约180平米)
玉瓣——175㎡洋房 (实得约200平米
(四房四卫三套房,双阳台)
☎绿城润百合售楼处电话028-83516246「来电尊享优惠」☎
☎【绿城润百合置业经理】:15928896133「微信同步」☎
温馨提示:为了给您提供更高更好的接待服务质量,看房请提前致电售楼处预约!
声明:本文由入驻焦点开放平台的作者撰写,除焦点官方账号外,观点仅代表作者本人,不代表焦点立场。


