成都雍景白鹭湾售楼处【2024成都新房二手房成交情况及2025年成都新房走势】
扫描到手机,新闻随时看
扫一扫,用手机看文章
更加方便分享给朋友
02883516246
成都现在房产市场三级分化,第一类是核心资产,止跌横盘或小幅上涨都有,补涨的苗头已经出现了,这类资产受大环境影响很大,也是市场风向标,随时被人关注。
第二类是优质产品,表现不一,涨跌幅取决于之前的价格泡沫大小,像北门几个改善楼盘涨跌就很小,没有大涨过自然不会大跌,而以天新为代表的新开发区域、次新盘往往入市价格偏高,止跌压力比较大。
第三类是完全丧失流动性的小区,集中在五城区,只有居住价值,一年成交几套,探讨涨跌意义不大,成交数据比较偏离真实市场情况。
2024年成都新房市场趋向高改化:成交主力面积段为120-144㎡,成交主力总价段为200-300万。其中,建面180㎡以上新房供应总量约为255万方,成交总量约为258万方,为成都新房市场成交次主力。
二手房成首置、首改家庭主阵地:2024年大成都二手房成交主力面积段为90㎡以内,成交次主力面积段为90-120㎡,建面120㎡以内中小户型的成交套数占比超八成,这说明在成都购买二手房市场的家庭,主要住房需求为首次置业或者首次改善;
根据2024年大成都二手房成交价格来看,总价两百万以内的房源成交占比接近九成,这说明活跃在成都二手房市场的家庭购房预期价格普遍在两百万以内。据CRIC数据,11月成都二手房成交规模居全国重点52城之首,远高于上海、北京,约为广州+深圳单月二手房成交总量的1.65倍。
成都二手房成交量之所以能领先于其他城市,一方面是因为卖旧买新的置换群体日渐增多,促使二手房挂牌量持续增加。
关键是成都对四川川内具备天然的人口吸附能力,城市首位度居全国第四,一城GDP占全省36.7%,仅次于银川、西宁、长春三市。
其二是人口流入在全国处于中上水平,考虑到成都已经有超2100万常住城市人口,这个数据也是很亮眼的。
第三是新房大幅度缩量,购买力转向二手市场,特别是总价400万以内这部分需求,在主城供应量正在减少。

金融城东 仅483席 封藏白鹭湾
锚定金融城东,享万亩白鹭湾生态背靠千亿高能级产业,立序科创轴“芯”之上一席低密墅境,主城惟此百亩大盘

天赋城市厚 蕴萃此百亩大境
再造“中芯”之上的人居骄傲,城市繁华,集萃于此
商业:白鹭湾科技生态园约17万㎡ 配套商业、SKP、环球中心招商大魔方、银泰中心in99、华熙LVE·528商圈环绕
医疗:华西附二院锦江院区、华西医院锦江院区(建设中)、华西口腔锦江院区等华西系医疗机构保驾护航
教育:盐道街小学(规划中)、川师附中 (规划中)、师大一中锦江校区、成都锦江区嘉祥外国语学校等
交通:三横四纵主干道,地铁9号线二期白鹭湾站(规划中)、地铁20号线林家坝站(规划中),双地铁覆盖
取法原生自然 百亩栖隐谧境
以1.5容积率的纯粹主义。打造六层臻洋房、上下纯叠墅等居住形态,超流体立面搭配大面积LOW-E玻璃,历久弥新甄选。世界花木奢材,一轴三园数十景观组团,与千只白鹭栖而共鸣,与万物自然和而共生。

臻藏级公园隐奢大宅 敬献天府
LDKB一体化无界宽厅,星级酒店式套房。奢境约270°环幕风景,高配国际潮奢品牌装标。建面约176-199m'六层臻洋房每一席,皆臻品。
户型鉴赏
A户型|洋房|建面约176㎡| 四室两厅三卫

B户型|洋房|建面约199㎡| 四室两厅三卫

C1户型|叠拼|建面约238㎡| 四室两厅四卫


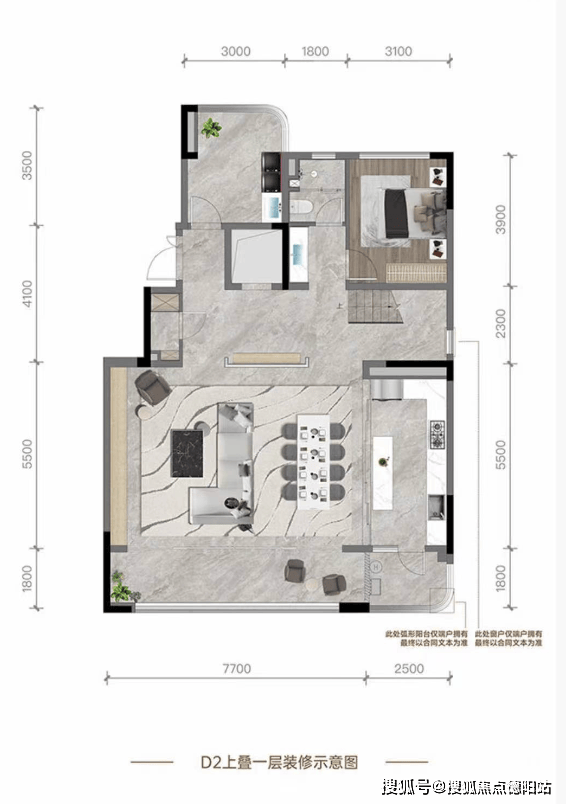
D2户型|叠拼|建面约350㎡| 五室两厅四卫



声明:本文由入驻焦点开放平台的作者撰写,除焦点官方账号外,观点仅代表作者本人,不代表焦点立场。


