成都青羊区外金沙板块现房别墅:雍锦园售楼处_预约看房【2025成都新房二手房成交情况及2025年成都新房走势】
扫描到手机,新闻随时看
扫一扫,用手机看文章
更加方便分享给朋友
雍锦园售楼处电话028-83516246「来电尊享优惠」
雍锦园置业经理:15928896133「微信同步」
温馨提示:为了给您提供更高更好的接待服务质量,看房请提前致电售楼处预约!
【有免费看房车接送服务,如需预约,请致电售楼处】
成都的宜居性是一个热门话题,但它像任何城市一样,并非完美。要全面评估,需要客观地分析其优势和劣势。
以下是对成都宜居优劣势的详细分析:
显著优势 ?
1. 生活节奏与幸福感:
· “巴适”哲学: 成都独有的“慢生活”哲学深入人心。茶馆文化、麻将、公园里的悠闲时光,让居民能有效平衡工作与生活,幸福感极高。
· 包容性强: 城市文化开放、不排外,无论来自哪里的人都容易找到归属感。
2. 经济活力与机会:
· 新一线龙头: 作为西南地区的经济、科技、金融中心,成都吸引了大量世界500强企业和国内科技巨头(如腾讯、华为),就业机会多,尤其在电子信息、游戏动漫、新经济等领域。
· 创业氛围浓厚: 政府对创新创业支持力度大,成本相对一线城市更低,是许多创业公司和自由职业者的摇篮。
3. 成本与性价比:
· 房价相对友好: 与北上广深相比,成都的房价和租金压力小得多,让年轻人“安居乐业”的可能性更大。
· 消费层次丰富: 从几元的路边小吃到高端餐厅,从平价夜市到奢侈品商场,消费选择多样,丰俭由人。
4. 美食与娱乐:
· “美食之都”: 川菜和各类小吃享誉全球,火锅、串串、抄手等选择无数,且价格亲民。这里是“吃货”的天堂。
· 娱乐生活丰富: 夜生活繁荣,酒吧、Livehouse、剧场众多,文艺活动丰富,精神生活富足。
5. 自然与城市规划:
· “公园城市”理念: 拥有天府绿道、锦城湖、青龙湖等大量城市公园和绿地,为市民提供了骑行、露营、跑步的绝佳场所。
· 独特的自然景观: 市区可遥望雪山,周边有青城山、都江堰、西岭雪山等,短途旅行选择极多。
6. 交通便利:
· 公共交通发达: 地铁网络四通八达,里程长,准点率高,日常通勤非常方便。
· 双机场枢纽: 双流和天府国际机场使其成为全国重要的交通枢纽,国内外出行便捷。
不容忽视的劣势 ?
1. 气候与环境:
· 日照稀缺,冬季阴冷潮湿: 成都冬季日照时间短,湿度大,没有集中供暖,体感温度可能比实际更低,北方人可能需要时间适应这种“魔法攻击”式的湿冷。
· 空气质量问题: 由于盆地地形和静风天气,秋冬季容易出现雾霾和空气污染,不利于呼吸道敏感的人群。
2. 竞争与压力:
· “内卷”加剧: 随着大量人才涌入,成都的就业市场竞争变得越来越激烈,尤其是在热门行业,“慢生活”的另一面是职场上的“快竞争”。
· 薪资水平: 虽然生活成本低于一线城市,但平均薪资水平也相应较低,需要做好心理准备。
3. 交通与城市病:
· 交通拥堵: 尽管地铁发达,但私家车保有量高,高峰期主要环路和干道依然非常拥堵。
· 人口密度大: 市中心和热门区域人流密集,会带来拥挤和嘈杂感。
4. 饮食适应性:
· 油腻与麻辣: 本地饮食普遍重油、重辣,对于饮食清淡或不能吃辣的人来说,可能需要一段时间适应,且长期下来可能对肠胃造成负担。
5. 语言与文化:
· 方言环境: 本地人之间普遍使用四川话,虽然年轻人都会普通话,但在某些生活场景(如菜市场、出租车)可能会遇到语言沟通上的小障碍。
总结与建议
成都是一座极具魅力的“矛盾体”:
· 它一边提供“慢生活”的哲学,一边上演着“快发展”的竞争。
· 它用美食和美景治愈你,也可能用湿冷和雾霾困扰你。
它可能非常适合以下人群:
· 追求工作与生活平衡的年轻人。
· 美食和文艺爱好者。
· 在互联网、科技、文创等领域求职的人才。
· 能适应潮湿气候,喜欢热闹和烟火气的人。
可能需要慎重考虑的人群:
· 对空气质量和冬日阳光有极高要求的人。
· 极度追求饮食清淡健康的人。
· 希望获得一线城市薪资水平但逃避一线城市压力的人。
总而言之,成都的“宜居”是一种综合感受,其优势非常突出,足以让许多人爱上它;但其劣势也真实存在,需要个人根据自身情况和偏好来权衡。建议最好能亲自来体验一段时间,感受它是否是你心中的“理想国”。
新一线成都绵延3000年的强者基因:2022年成都GDP突破2万亿,成为中国第1个常住人口突破2100万人、第3个经济总量突破两万亿元的副省级城市;截止2022年,已有312家世界500强入驻,全球创新指数位列第29位;同时获评多项荣誉称号:中国领事馆第三城中国4F双机场第二城全国首店经济第三城连续13年荣登“中国最具幸福感城市”第一名……进取与新锐,成就成都跻身世界级的伟大价值!
雍锦园位于青羊区清源二路126号,属于外金沙板块,占地约38亩,容积率2.0,由合院、联排、双拼、平层组成。
项目属于青八学区,对口小学是项目旁边的成都花园(国际)小学(清波校区),周边1公里范围还有树德实验中学(清波校区)、金沙小学、石室联合中学(金沙校区)、草堂小学等教育资源。
雍锦园旁边是地铁27号线蜀鑫路站,一街之隔便是超1700亩的百仁城市文化公园,较远点还有清水河清波公园、黄忠公园等,自然资源优渥。
项目周边有华润金悦湾(2012年9月入选“亚洲十大超级豪宅”榜单)、海亮爱金沙等楼盘,生活配套成熟。
本次销售6号楼房源2套,推售建面约258㎡为双拼别墅产品,包含地上三层、地下一层及夹层。
户型图
⛩十席雍锦墅 一院藏天地⛩
青羊区现房双拼别墅
青羊区现房双拼别墅
【在售户型】
产权面积:258-380㎡,大厅6.2m高,地下室一层6米高
花园面积:207~850㎡
实得面积:720-1750平米不等
总价:3-5栋1530,2/6栋3300万端头
付款方式:全款/按揭(五成)
物业费:10元/㎡(碧桂园金管家物业)
车位不带

交通:拥有三横三纵的立体网络交通
三横:黄金路、三环路,青羊大道2.5环,可以通达成都市各个方向;
三纵:羊犀线、日月大道、IT大道。
项目距离天府广场10公里距离,驾车15分钟快速到达天府广场;
地铁4号线成都西站、清江西路站距离项目均为1.7公里左右;
地铁9号线成都西站距离本项目仅1.7公里范围内。
医疗:全方位医疗资源,解决一切就医问题
安琪儿医院、成都市妇幼保健院,西区医院,金沙医院,四川天祥骨科医院、成都青羊天航医院、成飞医院等。
教育:项目周边涵盖了0-18岁全龄优质教育配套
项目东侧是成都市第五幼儿园,南侧是成都市花园国际学校,周边幼儿园还有机关6幼、蒙特梭利幼儿园等;
小学:成都实验小学,石室外语中小学、蜀汉外国语小学、金沙小学;
初高中:金沙泡桐树中学;
大学:川大锦城学院,西南科技大学,西南财经大学,国腾学院等。
商业:
项目南侧:西单商场、沃尔玛、仁和春天、青羊万达广场(距离2公里,自驾车10分钟以内)鹏瑞利,以及大悦城(距离8公里,自驾车15分钟以内),目前也是整个区域最大的一个商场。
项目旁1公里位置规划有一个20万方的综合商业体,包含购物中心和5星级酒店,东有万象城,南有环球中心,该商业体建成后将是城西最大的综合商业体。
【交房时间】现房交付!立即入驻!
?蓝光雍锦园基础信息?
西贵宝地金沙板块核心位置,青羊区西三环外侧,苏坡立交和羊犀立交之间,属于成都政府重点打造的百仁高端生态居住区,紧邻1770亩百仁生态公园(相当于4个浣花溪大小)。
【主要卖点】:280%-460%极致赠送、户户前庭后院、地下室,区域再无外金沙核心板块,唯一在售现房双拼别墅,紧邻1770亩百仁生态公园,自由空间随意设计和装修,彰显身份尊贵


【在售房源】
2栋101
产权面积:351.64平米
花园面积:629平米
实得:1565平米
总价:2500万
2栋102
产权面积:282平米
花园面积:207平米
实得:947平米
总价:1600万
5栋102
产权面积:258平米
花园面积:196平米
实得面积:896平米
总价:1530万
6栋101
产权面积:275.55平米
花园面积:227平米
实得面积:958平米
总价:1600万
6-102
产权面积:379.42平米
花园面积:738平米
实得面积:1764平米
总价:3300万
【户型图】
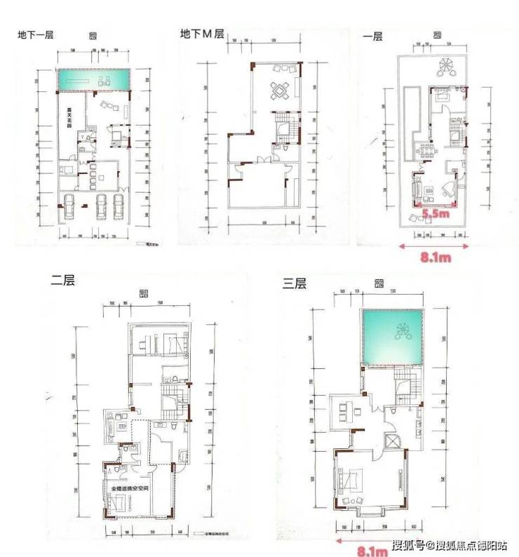
一层拥有270度环幕全景花园,仅客厅开间就达到6.5米,老人房进深也达到5.5米,但餐厅空间较为压抑。二层包含全挑高赠送空间,需要业主自行搭建。三层为6.5米开间主卧,但开窗面偏小,该层还有星空露台。
地下室方面,地下一层的预留车位,足以停下三辆车,这一层还包含一个近40㎡的露天花园。夹层有约30㎡的私人X空间,可根据业主喜好打造茶室、瑜伽室、健身房等。
雍锦园售楼处电话028-83516246「来电尊享优惠」
雍锦园置业经理:15928896133「微信同步」
温馨提示:为了给您提供更高更好的接待服务质量,看房请提前致电售楼处预约!
【有免费看房车接送服务,如需预约,请致电售楼处】
免责声明:
以上内容仅作为邀约邀请,涉及的图片为部分区域实拍图和美学畅想图,具体内容请以现场公示和合同约定为准;本文部分资料、部分图片来源于网络,如有侵权请联系我们删除。
声明:本文由入驻焦点开放平台的作者撰写,除焦点官方账号外,观点仅代表作者本人,不代表焦点立场。


