成都招商未来公园臻天珏《招商未来公园臻天珏售楼处》项目详情-招商未来公园臻天珏房价/区位介绍/预约看房
扫描到手机,新闻随时看
扫一扫,用手机看文章
更加方便分享给朋友
☎【招商未来公园臻天珏售楼处电话】:028-60220139「预约看房」☎
☎【招商未来公园臻天珏置业经理】:15928896133「微信同步」☎
温馨提示:为了给您提供更高更好的接待服务质量,看房请提前致电售楼处预约!
【招商未来公园·臻天珏基础信息】
建筑面积:100861.88㎡
占地:58亩
容积率:1.8
建筑密度:19.99%
绿地率:35%
楼栋数:17栋(8栋大平层、9栋叠拼)
梯户比:小高2T2,叠拼分区入户
楼层:小高15-17F,叠拼3叠6F
总户数:398户
车位:829
装修情况:清水
物业费:叠拼4元/平,小高3.8元/平
交房时间:2026年12月31
本批加推大平层:137-179平
14号楼(179平)总价:350万起
17号楼(137平)总价:250万起
单价:1.8-2万
本批次开盘叠拼
15号楼/16号楼
上叠(天璞:202平(屋顶花园100平左右)
上叠总价:430万起
中叠(天璟)217平(带花园50平左右➕地下室)
中叠总价:440万左右
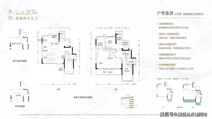
下叠(天玑:217平(带花园60平左右➕地下室)
下叠总价:500万起

主城是成都坚定的主流发展方向。主城新十年,四环大时代,天府北城新中心进阶城市级高端组团,补齐主城极核四象限拼图,擎动未来价值腾飞。

经过5年集中建设,天府北城新中心超前兑现:
高科产业:中铁轨交、北斗+、人工智能等千亿产业集群,助力职住平衡;
高端商业:以金牛招商花园城(建设中)为核心打造近20万方TOD商圈,定鼎城北芯;
优越生态:环城生态公园、凤凰山体育公园、露天音乐公园,丰富文娱生活;
优教资源:整体规划5所幼儿园、4所小学、1所中学,享免送式教育;
优质医疗:中国人民解放军西部战区总医院、金牛区中医医院等,护航生活。
招商未来公园,占据北城新中心之芯,以筑城先驱之姿兑现TOD大城,改善社区尊崇交付,为高阶生活打样。

招商蛇口与成都共一线,深耕十四年,筑就招商时代公园、招商新川臻境、招商大魔方等标杆项目,始终引领成都城市发展和人居需求方向。
【臻系血脉 为主城北定制头牌奢宅】
“臻系”为招商蛇口高端产品系,秉承为城市中坚定制高阶生活的理念,打造具有「高端定制性」「成长性」与「极致美学」的理想人居。
【天回高端组团】天回占位天府成都北城新中心之芯,享高阶规划及高速兑现,未来公园于压轴地块6号地,打造首排豪宅东方墅区。
地标豪宅头排:毗邻杜家碾CBD地标集群,位于幸福桥CLD高端居住组团核心位置,奢享花园城购物中心地标级配套,臻天珏高定一座地标豪宅。
公园豪宅头排:四大生态公园环绕,承纳鲜氧活力景观,更享四环生态带绿洲公园,容积率低至1.8,臻稀墅区,无愧于城市公园豪宅首排。
人文豪宅头排:凤凰山体育公园、图书展览馆(规划中)、人民北路小学等人文配套群,蕴养天回人文豪宅藏品。

【天字规划】臻系天字号墅区 开启主城北顶奢豪宅时代
承袭臻系基因,以“悦东方悦高级”打造理念,高定一座东方臻墅区——臻天珏。主城少有的1.8低密墅区,全南向布局,定制级东方园林、尊享级公区配置、极致感官美学产品,将再一次引领主城北人居迈进高端居住传奇。
总平布局:东方哲学 鸾凤和鸣
总平布局取意“鸾凤和鸣”,建筑是龙,以点式布局融于园林;景观为凤,从建筑线条与色彩中汲取灵感。建筑与景观的协奏之间,保证居住舒适度和景观最大化,高层实现户户观景,栋栋楼王;叠拼享私密性与极致公园景观视野。
【天字建筑】曲线瀑布 鎏光建筑
以滴水流体塑性为灵感,延续臻系建筑立面美学,以“锦水曲线”为灵感,形成极具韵律的曲线瀑布造型。在颜色萃取上,从蜀锦正色中提取元素,通过香槟、中灰、米白的搭配,营造出一种跟随自然的律动。
【天字仪门】双重归家 显赫仪门
定制双归家显赫仪门,给予业主双重礼序和身份感的彰显。主入口以中国传统“卷轴”为灵感,以高5.7米,宽超40米超大延展面铺陈开来,将奢华仪式感拉满;
设置酒店式环岛落客区+接待大堂,搭配迎宾水景,烘托归家尊崇感。

【天字园林】逐光浮桥 礼制归家
连岛绿洲与浮桥自然连接,构筑溪屿廊桥微度假之旅,东方意蕴筑境,演绎“人在画中游”的归家美学。
【天字配套】东方雅物 悦动生活
健身空间:独立架空层健身空间,与园林景观交融,健身与美景同在。

奢华门厅:精致单元门厅,联动智能门禁系统,彰显生活至高礼遇。
【招商未来公园·臻天珏户型鉴赏】


☎【招商未来公园臻天珏售楼处电话】:028-60220139「预约看房」☎
☎【招商未来公园臻天珏置业经理】:15928896133「微信同步」☎
温馨提示:为了给您提供更高更好的接待服务质量,看房请提前致电售楼处预约!
免责声明:
以上内容仅作为邀约邀请,涉及的图片为部分区域实拍图和美学畅想图,具体内容请以现场公示和合同约定为准;本文部分资料、部分图片来源于网络,如有侵权请联系我们删除。
声明:本文由入驻焦点开放平台的作者撰写,除焦点官方账号外,观点仅代表作者本人,不代表焦点立场。


