成都国贸人居海上蓉屿售楼处【2024成都新房二手房成交情况及2025年成都新房走势】
扫描到手机,新闻随时看
扫一扫,用手机看文章
更加方便分享给朋友
☎国贸人居海上蓉屿售楼处电话028-83516246「来电尊享优惠」☎
☎【国贸人居海上蓉屿置业经理】:15928896133「微信同步」☎
温馨提示:为了给您提供更高更好的接待服务质量,看房请提前致电售楼处预约!
成都现在房产市场三级分化,第一类是核心资产,止跌横盘或小幅上涨都有,补涨的苗头已经出现了,这类资产受大环境影响很大,也是市场风向标,随时被人关注。
第二类是优质产品,表现不一,涨跌幅取决于之前的价格泡沫大小,像北门几个改善楼盘涨跌就很小,没有大涨过自然不会大跌,而以天新为代表的新开发区域、次新盘往往入市价格偏高,止跌压力比较大。
第三类是完全丧失流动性的小区,集中在五城区,只有居住价值,一年成交几套,探讨涨跌意义不大,成交数据比较偏离真实市场情况。
2024年成都新房市场趋向高改化:成交主力面积段为120-144㎡,成交主力总价段为200-300万。其中,建面180㎡以上新房供应总量约为255万方,成交总量约为258万方,为成都新房市场成交次主力。
二手房成首置、首改家庭主阵地:2024年大成都二手房成交主力面积段为90㎡以内,成交次主力面积段为90-120㎡,建面120㎡以内中小户型的成交套数占比超八成,这说明在成都购买二手房市场的家庭,主要住房需求为首次置业或者首次改善;
根据2024年大成都二手房成交价格来看,总价两百万以内的房源成交占比接近九成,这说明活跃在成都二手房市场的家庭购房预期价格普遍在两百万以内。据CRIC数据,11月成都二手房成交规模居全国重点52城之首,远高于上海、北京,约为广州+深圳单月二手房成交总量的1.65倍。
成都二手房成交量之所以能领先于其他城市,一方面是因为卖旧买新的置换群体日渐增多,促使二手房挂牌量持续增加。
关键是成都对四川川内具备天然的人口吸附能力,城市首位度居全国第四,一城GDP占全省36.7%,仅次于银川、西宁、长春三市。
其二是人口流入在全国处于中上水平,考虑到成都已经有超2100万常住城市人口,这个数据也是很亮眼的。
第三是新房大幅度缩量,购买力转向二手市场,特别是总价400万以内这部分需求,在主城供应量正在减少。

对于2025年成都的房产走势,预测如下:5+2区域全年只卖了31宗地,新房库存见底,多个200㎡+户型曝光,大户型成明年新房供应主流
位于三圣乡板块的国贸·人居|海上蓉屿正是其中之一。
三圣乡作为成都豪宅板块最炙手可热的“顶流”,在各大开发商纷纷陷入红海鏖战的时候,海上蓉屿另辟蹊径,将成都前所未有的“海洋基因”注入在作品肌理之中,迅速在三圣乡板块中杀出重围,2025年连续两季度蝉联区域销售榜TOP1。(数据来源:洪河板块、2024年10月-2025年3月小高层/高层房联销售套数数据。)
解密海上蓉屿热销密码我们发现,其热销的背后不仅是对产品的精准研判,更是举棋落子在极核配套之中的“极享”生活预演。
---------------------------------------------------------------------
黄金3.5环
鼎流三圣乡,极享配套住区
---------------------------------------
何为极享?
对城市极核中心高能级城市配套的资源占有即为极享,城市TOP级生活配套带来的极致生活体验即为极享。海上蓉屿矗立于三圣乡极核高地,享受领先于成都市场的医疗、教育、商业配套,托举起「极享配套住区」的生活云图,为区域人群带来“极享”的品质生活体验。
极享·约30000亩森海秘境
三圣乡坐拥成都主城最大的公园集群——三圣花乡4A级景区、白鹭湾湿地、梵谷中央公园……近2万亩“主城最大绿肺”,形成比肩纽约中央公园的“城市绿洲体系”。

极享·全龄名校教育
全龄教育矩阵:嘉祥领办的K9学校领衔、美中国际爱智学校、龙泉青苗学校,形成K12教育闭环,国际学校应有尽有。
极享·约60万方商业配套
项目3KM范围内,云集了华润LIVE·528、龙湖驿都天街、大蓉城、世茂广场等商业配套,成都最密集的商业
集群,多重主题消费场景,集萃繁华都市生活。
极享·三华西优渥医疗
成都唯一拥有三华西配置的区域,四川大学华西医院(锦江院区)、华西第二医院暨华西妇产儿童医院、四川大学华西口腔医院(锦江门诊部),配备全球一流医疗设备和医师团队。

此外三圣乡板块交通网格能方便快速通达成都各大核心区域,地铁2、13、9(规划中)三大地铁交汇,驿都大道、成龙大道等无缝连接春熙路、东大街等传统商业高地,将高端生活方式皆容纳于触手可及半径内,极享高品质的城市生活样本。
---------------------------------------------------------------------
被时代镌刻“匠心技艺”
兑现超越所期的海屿岛境
---------------------------------------
目光在聚焦到海上蓉屿项目本身上,刻在项目骨子里的是国贸&人居双国企品牌对匠心的匠心坚持。在海上蓉屿,“匠心技艺”不是房企自我标榜的价值标签,而是深入到建筑产品本身的时代精神印记。从极致奢石用材到精细到毫米的规划设计,都是匠人精神的极致体现。
从双生奢尺阔门到海屿度假风情园林,再到产品立面,我们能明显的感受到“更具颗粒感的品质所呈现的全维奢感感官进化。
光是在归家仪式的营造上,就打造了流瀑岸迎、绮丽锦门、喷泉叠影的三重节点,进入归家门庭,穿过翡丽花径,浮现于眼前的潮汐聚场。来自世界各地的奇异花木经过园艺匠人的雕琢,呈现出一幅海屿度假风情的缦丽画卷。

与其他改善产品立面高下立见的海上蓉屿的立面选材,海浪流线造型,气质奢华内敛。当城市的霞光暮色与立面辉映时,天际熠熠生辉,整座建筑犹如一座鎏光岛屿。
产品空间上,海上蓉屿不局限于某一种户型,全部进行延展与迭新,通过洄游式大横厅、IMAX峯光视野、海浪曲线造型,实现功能与美学的双重进化。同时将视野感和私享性巧妙融合在一起,为居者重塑一份静谧、优雅的艺术生活方式。
173㎡双中庭海景楼王
建面约173㎡的楼王户型,打造建面约64㎡LDKB宽厅,约17.4米南向开间、营造270°环幕视野,建面约35㎡的行政级主卧,匹配塔尖圈层的生活仪式感。双中庭“观海”视野,双面皆享海屿风景。
143㎡全周期改善户型
建面约143㎡的户型,采用LDK一体化设计,客厅开间视距达到9.2米,建面约14㎡弧形阳台,最宽处达到2.4米,家庭交互空间宽敞舒适,建面约31㎡主卧豪华套房带双面盆主卫、独立衣帽间,私密奢享,尽显家主地位尊崇。
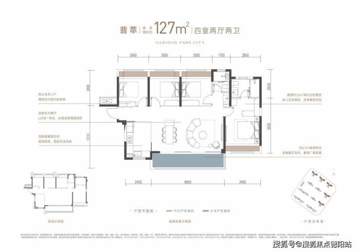
127㎡越级平权四房
建面约127㎡的户型奢配6.9米大开间、超55㎡洄游式大横厅,均衡“大四房”,真正的舒适平权四房。
-----------------------------------------------------------------------
超越所期的实景呈现
预演未来生活的仪式感
---------------------------------------
深度剖析市场,我们不难发现,影响购房决策最重要的两大价值,除了产品价值外,更多的是“未来呈现”。海上蓉屿正是基于这样的市场考量,在园林打造和实景呈现上,去“样本化”,直接上“交付力”。也就是现在实景能看到的一切,就是交付入住后能享受到生活。
恰逢项目开盘一周年,园林全新样板段—【繁樾花海】也即将迎来开放。从蓝图到实景,从期待到笃定,海上蓉屿以兑现的全维实景,将未来生活盛景超前点映。
☎国贸人居海上蓉屿售楼处电话028-83516246「来电尊享优惠」☎
☎【国贸人居海上蓉屿置业经理】:15928896133「微信同步」☎
温馨提示:为了给您提供更高更好的接待服务质量,看房请提前致电售楼处预约!
声明:本文由入驻焦点开放平台的作者撰写,除焦点官方账号外,观点仅代表作者本人,不代表焦点立场。


