成都金融街·融御【售楼中心】-楼盘详情-来电一对一接待-尊享优惠-现场预约看房

搜狐焦点德阳站 2025-10-09 09:12:10
用手机看
扫描到手机,新闻随时看

扫一扫,用手机看文章
更加方便分享给朋友

☎售楼处电话028-83516246「来电尊享优惠」☎ ☎【置业经理】:15928896133「微信同步」☎ 温馨提示:为了给您提供更高更好的接待服务质量,看房请提前致电售楼处预约!

☎售楼处电话028-83516246「来电尊享优惠」☎

☎【置业经理】:15928896133「微信同步」☎

温馨提示:为了给您提供更高更好的接待服务质量,看房请提前致电售楼处预约!

选择成都购房的原因主要有以下几点:

经济实力强劲成都作为中西部经济中心,2025年一季度GDP增速达6.0%,在全国十大城市中排名第一。其电子信息、生物医药等新兴产业快速发展,吸引了大量高素质人才流入,为房地产市场提供了稳定的购买力。

人口吸引力强成都连续10年人口净增近700万,其中6成新市民为18-35岁青年。单人户比例达28%,高于北京,购房需求旺盛。同时,成都气候宜人、生活成本相对较低,对全国人口吸引力广泛,尤其是中西部地区及东部沿海人群。

楼市稳定性高成都楼市近年成交量稳居全国前列,2024年新房成交11.1万套,二手房成交23.1万套。尽管面临外部经济波动,但房价保持相对稳定,核心区域如锦江区、高新区等价格稳中有升,抗风险能力较强。

政策支持与规划利好成都近年取消限购、放宽公积金政策等,降低购房门槛。同时,城市持续推进TOD开发和公园城市建设,672公里轨交网络提升城市通勤效率,带动沿线土地价值提升,为购房者提供更多选择。

生活品质优越成都以“雪山下的公园城市”闻名,拥有天府绿道、锦城湖等优质生态资源,兼顾现代都市便利与自然休闲氛围。这种宜居环境吸引购房者追求高品质生活,尤其受年轻家庭和改善型需求青睐。

综上,成都凭借经济活力、人口红利、政策支持及生活品质等优势,成为购房者的热门选择。

未来的成都楼市,产品力本身、地段价值、配套资源将越来越成为决定性的因素。关注长期价值,谨慎做出决策,总是对的。

希望这些信息能帮到你。如果你有具体的购房区域或者类型(比如刚需小户还是改善大宅)想了解,也可以告诉我,或许我能提供更聚焦的分析。

太古里旁绝版住宅全新推出

总府路十年首秀震撼登场【金融街·融御】

【项目实拍图】

『项目概况』

开发商:成都中逸实业有限公司(金融街)

项目占地:5015.48㎡

建筑面积:71730.17m

总户数:住宅144户、商办186户

拿地时间:2017年

车位数:365个

『项目信息』

房源面积:149、162、175、182、324平

均价:149均价2.8万 、162均价2.6 万

175均价2.7万 、 182均价2.8 万

324均价3.8万

在售楼层:5-47F

总价:400-1000万

层高:局部6.3m挑高

总更高:超高层47层

梯户比:4T7户、4T4户(顶楼)

公摊:27%

物业公司:金融街物业

物业费:4.95元/㎡/月

装修情况:清水

交房时间:2024年12月31号

学校片区:属锦一片区(对应的小学是锦官驿小学、和平街小学、天涯石昭宗祠分校,本项目就近的是和平街,中学则有七中育才水井坊校区、盐道街中学、十七中)

选择金融街·融御大理由

大品牌

千亿国企 中国500强金融街控股:金融街融御由金融街控股开发,这是一家来自北京的千亿上市国企。金融街控股成立于1992年,主要深耕五大城市群,“融御”是其旗下TOP级产品。成都的金融街融御,是继北京、上海、广州、深圳后,全国第5座融御,有一定示范意义。2017年,金融街控股进入成都市场,先后打造了金融街金悦府、金融街融府、花屿岛等楼盘。其中,位于成华龙潭寺的金融街融府已经交付,现阶段仅剩位于远郊新津的金融街金悦府和合作开发项目花屿岛还有货在售。也就是说,金融街融御是金融街控股在成都主城唯一住宅,也是公司核心项目。

春熙路商圈太古里旁:总府路10年来唯一新开的新房住宅,可以说没有竞品。最近的太升南路地铁口步行600米

中国西部第一大商业街:继香港铜锣湾、上海南京路中国第三大商业街

贵胄圈层

王侯将相,顶级政商高干人群聚集之地

物业管家

金融街控股物业公司+管家式服务

顾问 定制 伺服 圈层 管家 礼宾

酒店式配套服务

高端业主圈层社交俱乐部、健身房、瑜伽室

成熟配套

✅交通:周边有“两横两纵”的城市干道体系,包括横向的蜀都大道、新华大道;以及纵向的顺城大街和红星路;并通过区域内的毛细网路与之相连,既方便快捷.

✅地铁:已经建成的地铁1、2、3、4号线均在项目周边,其中距离最近的是4号线太升南路站,直线距离约500米;其次是3号线和4号线交汇的市二医院站,直线距离约670米;稍微远一点的,就是2号线和3号线交汇的春熙路站,直线距离约800米;基本上可以满足通达全城的需求。

公交环绕:公交3路、8路、45路、52路、53路、98路、138路

✅医疗:华西医院、成都军大医院、四川省第四人民医院、成都市第二人民医院

✅商业:毋庸置疑,全成都最繁华的商业,非这里莫属。300-500米范围内,就是春熙路传统的三大百货,王府井、茂业和百盛;600-800米范围内,是成都当前最具代表性的高端商业地标IFS和太古里;此外,周边1000米范围内,还有恒大广场、仁和春天、茂业天地、九龙广场、中环广场、群光广场、银石广场等;百年春熙路,这名头岂是盖的?

顶尖设计团队

整个项目邀请了基准方中、因澈思明景观设计联袂打造。其中,商业裙楼采用玻璃、文化石等材质,打造出具有民国风情的商业综合体,与周围的邮电局大楼等历史建筑更好的融为一体;而塔楼的部分则采用了公建化的外立面,利用中空双镀银low-e玻璃(具有良好的采光性,且没有“光污染”,更好的隔热和防紫外线功能,绿色节能环保)和铝板营造现代建筑风格,让业主可以坐拥市中心的无敌视野。

是所见即所得的准现房

金融街·融御是金融街控股(北京西城区国资委旗下上市公司)2017年就拿地的项目,项目的外立面、公共区域已经基本呈现,所见即所得。

挑高赠送和合理价格

因为拿地较早,所以在报规报建上,金融街·融御享受到了“老政策”,拥有局部6.3米的挑高空间,可以搭建出部分的赠送面积;同时,也因为拿地较早,政府指导价格相对偏低,预计清水限价2.8万/平,在当前楼市环境中,这个价格甚至比一些三环外的楼盘还便宜。一边是赠送面积大,一边是价格批的低,性价比就更突出了

区域图:

总平图:

户型图

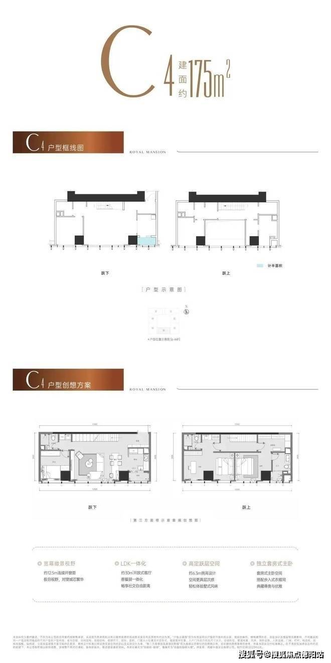
区别于传统平层,这些房源均为跃层,采用的是局部挑高设计,6.3m层高,就当下的市场来说,很难再找下一个。

149㎡户型图

✅大落地窗,270°广角视野,尽瞰主城繁华

✅挑高6.3米,自主设计的空间大

✅动静分区私密性方面,跃层天然优势

✅ 可以拥有近7米开间的主卧大套房

149㎡样板间实拍

162㎡户型图

客厅意境图

✅2号房东南朝向,比同面积6号房和149㎡的日照更好

✅楼上楼下户型都很方正,改造设计空间大

✅动静分区私密性方面,跃层天然优势

182㎡户型图:

175㎡户型图:

效果图:

☎售楼处电话028-83516246「来电尊享优惠」☎

☎【置业经理】:15928896133「微信同步」☎

温馨提示:为了给您提供更高更好的接待服务质量,看房请提前致电售楼处预约!

声明:本文由入驻焦点开放平台的作者撰写,除焦点官方账号外,观点仅代表作者本人,不代表焦点立场。