成都幸福桥TOD·幸福拾光售楼处-预约看房【2024成都新房二手房成交情况及2025年成都新房走势】

搜狐焦点德阳站 2025-06-26 18:45:57
用手机看
扫描到手机,新闻随时看

扫一扫,用手机看文章
更加方便分享给朋友

成都新房市场三大分化:核心资产、优质产品、完全丧失流动性的小区。2024年成都新房市场成交主力面积段为120-144㎡,成交主力总价段为200-300万。二手房成首置、首改家庭主阵地。

?售楼处电话028-83516246「来电尊享优惠活动」?

?【置业经理】:15928896133「微信同步」?

温馨提示:为了给您提供更高更好的接待服务质量,看房请提前致电售楼处预约!

【有免费看房车接送服务,如需预约,请致电售楼处】

成都现在房产市场三级分化,第一类是核心资产,止跌横盘或小幅上涨都有,补涨的苗头已经出现了,这类资产受大环境影响很大,也是市场风向标,随时被人关注。

第二类是优质产品,表现不一,涨跌幅取决于之前的价格泡沫大小,像北门几个改善楼盘涨跌就很小,没有大涨过自然不会大跌,而以天新为代表的新开发区域、次新盘往往入市价格偏高,止跌压力比较大。

第三类是完全丧失流动性的小区,集中在五城区,只有居住价值,一年成交几套,探讨涨跌意义不大,成交数据比较偏离真实市场情况。

2024年成都新房市场趋向高改化:成交主力面积段为120-144㎡,成交主力总价段为200-300万。其中,建面180㎡以上新房供应总量约为255万方,成交总量约为258万方,为成都新房市场成交次主力。

二手房成首置、首改家庭主阵地:2024年大成都二手房成交主力面积段为90㎡以内,成交次主力面积段为90-120㎡,建面120㎡以内中小户型的成交套数占比超八成,这说明在成都购买二手房市场的家庭,主要住房需求为首次置业或者首次改善;

根据2024年大成都二手房成交价格来看,总价两百万以内的房源成交占比接近九成,这说明活跃在成都二手房市场的家庭购房预期价格普遍在两百万以内。据CRIC数据,11月成都二手房成交规模居全国重点52城之首,远高于上海、北京,约为广州+深圳单月二手房成交总量的1.65倍

成都二手房成交量之所以能领先于其他城市,一方面是因为卖旧买新的置换群体日渐增多,促使二手房挂牌量持续增加。

关键是成都对四川川内具备天然的人口吸附能力,城市首位度居全国第四,一城GDP占全省36.7%,仅次于银川、西宁、长春三市。

其二是人口流入在全国处于中上水平,考虑到成都已经有超2100万常住城市人口,这个数据也是很亮眼的。

第三是新房大幅度缩量,购买力转向二手市场,特别是总价400万以内这部分需求,在主城供应量正在减少。

对于2025年成都的房产走势,预测如下:5+2区域全年只卖了31宗地,新房库存见底,多个200㎡+户型曝光,大户型成明年新房供应主流

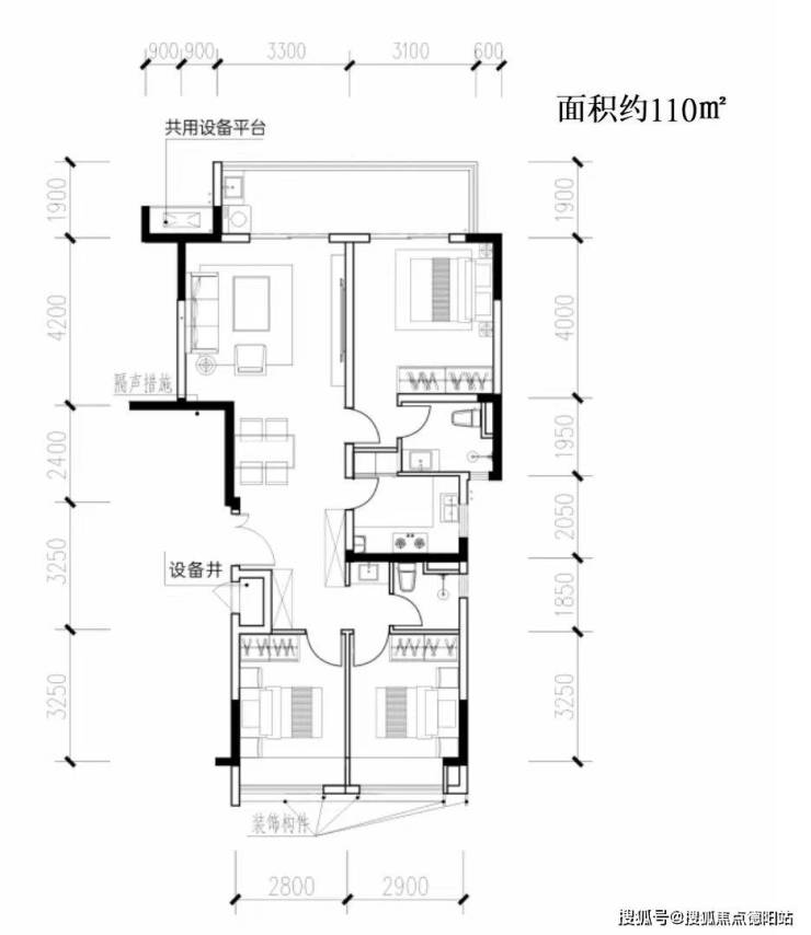
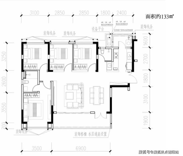
【核心价值剖析】幸福桥TOD幸福拾光占据着极为优越的地理位置。作为清水准现房项目,其当前在售户型种类繁多:- 二期的主力户型涵盖125 - 180㎡(具体为125㎡、135㎡、143㎡、180㎡)。- 三期精心挑选的户型范围在108 - 143㎡(包含108㎡、110㎡、112㎡、134㎡、143㎡)。该项目起步单价为16000元/㎡,中区平均价格为17500元/㎡ 。

【项目档案】项目位于金牛区北部新城·地铁5号线幸福桥站,其开发单位为成都轨道交通集团(作为城市运营商)。在物业服务方面,由具备国家一级资质的成都轨道万科物业负责。从占地面积来看,整体规划总计700亩,其中二期占地64亩,三期占地74亩。再看建筑参数:二期建筑楼层为12 - 17F,首层设置了4.5米的架空层;三期建筑楼层为9 - 17F 。该项目容积率为2.0,属于低密住区。绿化体系方面,二期绿化率达52%,三期绿化率为35%。梯户配置上,二期是2T2的设计,三期则采用1T2与2T3的组合。物业收费标准为3.8元/㎡·月。车位配比情况为,二期达到1:1.6,三期为1:1.2 。交付计划明确,二期预计于2024年8月交付,三期预计在2025年10月交付。房源总量方面,二期有624户,三期有503户。关于公摊范围,二期在17 - 20%,三期在16 - 19%。

【全能生活配套】这座城市综合体总占地近 500 亩,规划建筑面积高达 69356㎡,整体绿化覆盖率达到 40%,全力打造全维度生活场域。**商业矩阵**:周边规划有大型购物中心和特色商街,以此构建起 15 分钟便捷生活圈,让居民购物、休闲等需求都能轻松满足。**教育体系**:项目配备全龄段优质教育资源,从幼儿园到中学,提供一站式教育解决方案,为孩子的成长和学习提供坚实保障,让家长无需为子女不同阶段的教育衔接问题担忧。**健康保障**:社区内设有专业医疗中心,能够提供 24 小时不间断的健康管理服务,时刻守护居民的身体健康 。

【立体交通网络】该项目位于金牛区天回镇街道天泽路560号,与地铁5号线幸福桥站紧密相连,实现了无缝对接。借助“轨道交通+公交接驳+慢行系统”这种立体化的交通模式,高效通勤与绿色出行得以完美融合。

【臻品户型鉴赏】

幸福桥TOD幸福拾光,不只是一处居住之所,更是一座融合城市多元资源、引领全新生活方式的未来社区典范。在这片充满魅力的区域,便捷的交通网络如同城市的血脉,为生活注入无尽活力;丰富的商业配套,满足您日常的消费与休闲需求;优质的教育资源,为孩子的未来铺就坚实道路;健康宜人的生态环境,让您在繁华都市中享受宁静与自然。这些要素相互交织,共同勾勒出一幅理想生活的美好画卷。倘若您正追求高品质生活,幸福桥TOD幸福拾光无疑是您在置业时值得重点考虑的选择。它将为您带来全方位的生活体验,满足您对家的所有憧憬。

?售楼处电话028-83516246「来电尊享优惠活动」?

?【置业经理】:15928896133「微信同步」?

温馨提示:为了给您提供更高更好的接待服务质量,看房请提前致电售楼处预约!

【有免费看房车接送服务,如需预约,请致电售楼处】

免责声明:

以上内容仅作为邀约邀请,涉及的图片为部分区域实拍图和美学畅想图,具体内容请以现场公示和合同约定为准;本文部分资料、部分图片来源于网络,如有侵权请联系我们删除。

声明:本文由入驻焦点开放平台的作者撰写,除焦点官方账号外,观点仅代表作者本人,不代表焦点立场。