成都房价2025最新报价走势,成都国宾江山·洺悦天宸/洺悦峯售楼部,成都国宾江山·洺悦天宸/洺悦峯价格折扣优惠
扫描到手机,新闻随时看
扫一扫,用手机看文章
更加方便分享给朋友
☎国宾江山·洺悦天宸/洺悦峯售楼处电话028-83516246「来电尊享优惠活动」☎
☎国宾江山·洺悦天宸/洺悦峯【置业经理】:15928896133「微信同步」☎
温馨提示:为了给您提供更高更好的接待服务质量,看房请提前致电售楼处预约!
【有免费看房车接送服务,如需预约,请致电售楼处】
成都新房与二手房价格走势
新房价格。
2025年10月新房公示均价为17993元/㎡,样本楼盘平均单价16219.70元/㎡,环比9月上涨0.19%。2025年1-9月整体均价16321.11元/㎡,9月环比微涨0.07%,显示价格企稳回升。
二手房价格。
10月挂牌均价12894元/㎡,环比持平;9月参考均价14842元/㎡,环比上涨1.22%。2025年1-9月累计成交超18万套,9月成交量19581套,同比增长28.7%,市场活跃度较高。
区域分化与市场特征
核心区域:锦江区新房均价35409元/㎡,高新区33493元/㎡,金融城板块高端项目成交价达55000元/㎡。
远郊区域:青白江区新房均价跌破8000元/㎡(实际成交约4866元/㎡),崇州、新都等区域价格同比下跌近5%,库存去化周期超30个月。
成交量与结构:小户型(90㎡以下)占二手房成交52%,120㎡以上改善型需求占比升至32%;核心区次新房议价空间仅5%-8%,远郊老旧房源降价20%仍难成交。
新一线成都绵延3000年的强者基因:2022年成都GDP突破2万亿,成为中国第1个常住人口突破2100万人、第3个经济总量突破两万亿元的副省级城市;截止2022年,已有312家世界500强入驻,全球创新指数位列第29位;同时获评多项荣誉称号:中国领事馆第三城中国4F双机场第二城全国首店经济第三城连续13年荣登“中国最具幸福感城市”第一名……进取与新锐,成就成都跻身世界级的伟大价值!
核心优势???
一、【品牌】
交投电建联行开发,国央企联合背书
✨【区域】
? 交投电建国宾江山-洺悦天宸/洺悦峯位于主城金牛区国宾板块,是区域内唯一一个宋式风格高端低密精装修板式洋房。 作为区域标杆洋房社区,项目打造一梯两户、两梯两户两梯四户现房产品,户户南北通透,户户观景。
【?全系教育】全龄段优越教育资源
项目所处位置十分优质,周边配套均已成熟
?目送式教育:幼儿园:成都十六幼儿、文创四幼;小学:茶店子小学金禧校区
?一流名校:金牛中学(成都树德金泉中学初中部)、树德金泉中学(在建)、成都外国语学校(K12)。
【?超融交通】“两横三纵四地铁”立体交通
?两横:金科南路、北三环;
?三纵:金牛大道、西华大道、蜀西路;
?四地铁:地铁2号线、6号线、9号线(规划中)、12号线(规划中)。
【?完善医疗】近享权威医疗,健康保驾护航
?三级医院:四川省人民医院金牛医院;
?综合性三级甲等医院]:成都三六三医院、成都市西区医院;四川省第五人民医院(预计2026年建设完成)。
【?商业配套】五大成熟商业氛围
?500米内:北京城建熙悦汇
?2km内四大商场:中海国际购物公园、天府艺术公园、8万方天府111、山姆会员店。
?4km内高端商业:15万方龙湖西宸天街。
【⛰生态公园】六大公园,与喧嚣保持距离
天府艺术公园、中海体育公园、两河森林公园、金泉运动公园、犀浦体育公园、成都欢乐谷
实园林景观呈现
宋氏大门
宋氏园林
超宽楼间距
?⭐ 项目必买理由:
? 央企+国企,双政府企业,保驾护航
? 城西国宾,板块核心腹地,
? 成外+茶小,公私双名校,近在咫尺
? 千米范围内,三线地铁环绕
? 区域内唯一宋式园林风格
? 公园里的住宅,环境绝佳,如沐春风
? 小“太古里”商圈,移步即达
? 红色物业,管家式服务
?百亩纯板式洋房小高层
◇ 交通配套 ◇
地铁2号线百草路站距离项目600米,步行5分钟左右即可到达;项目紧邻金牛大道、蜀西路、金粮路,立体交通体系,便捷通达全城。
◇ 商业配套 ◇
与项目一街之隔的22万方国潮院街商业综合体——熙悦汇中心,品牌商家云集,将建成城西小太古里;
只需步行5分钟左右可到达城西商业繁盛、人潮涌动的中海国际购物中心和沃尔玛超市;
开车8分钟左右可到达爱琴海购物中心;
◇ 教育配套 ◇
一街之隔就有机关十六幼儿园、茶店子小学金禧校区;茶店子小学作为金牛区小学教育三驾马车之一,是四川省首批重点小学、成都首批九年义务教育示范学校。
以及成都知名私立学校成都外国语学校——3至18岁全龄教育、教育部批准具有保送资格的16所外国语学校之一,4项语种3大国际班,以特色外语专业,成就海外名校的中国摇篮。
◇ 生态配套 ◇
项目配建5500㎡市政绿地公园,目前已交付使用;车行5分钟左右可以到达金牛区3033亩天府艺术公园;车行10分钟左右可以到达中海体育公园(运动设施非常齐全)和5000亩左右的两河森林公园。
近万亩城市绿地,复兴生活底色。
洺悦天宸项目
项目参数:
占地面积:80亩
总户数:736户
面 积 : 135平/280平底跃
均 价 : 15000-23000元/平
总 价 : 290-360万
物 业 费 : 3.6/平/月
梯 户 比 : 2T2户
总 层 高 : 11-17F
车 位 比 : 1:1.85
容 积 率 : 2.0
交房时间:现房,所见即所得
交房标准:精装带三大件
项目总平
目前在售135平层及280平底跃户型
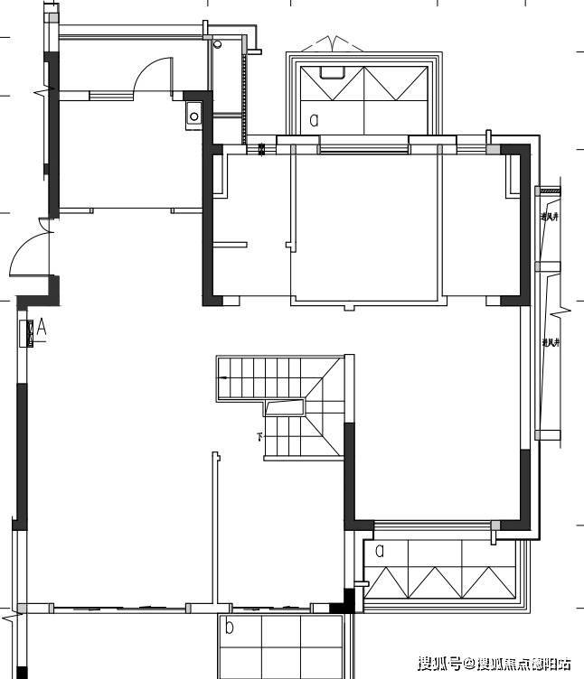
【1】135㎡ 3+1房2厅2卫
总高17层小高层,纯板式结构,两梯两户,南北通透
底跃户型图:
3房跃上
跃下:3个大尺度采光井,采光无敌
『2』底跃样板间视频
☎国宾江山·洺悦天宸/洺悦峯售楼处电话028-83516246「来电尊享优惠活动」☎
☎国宾江山·洺悦天宸/洺悦峯【置业经理】:15928896133「微信同步」☎
温馨提示:为了给您提供更高更好的接待服务质量,看房请提前致电售楼处预约!
【有免费看房车接送服务,如需预约,请致电售楼处】
洺悦峯项目
项目参数:
占地面积:18亩
总户数:200户
面 积 : 114平/132平/240平底跃
均 价 : 15000-23000元/平
总 价 : 227-360万
物 业 费 : 3.6/平/月(中海物业)
梯 户 比 : 2T4户
总 层 高 : 17F
车 位 比 : 1:1.5
容 积 率 : 2.0
交房时间:现房,所见即所得
交房标准:清水(顶、底跃)/其余精装(带三大件)
230万即可买进国宾,享受金牛优质教育资源!!!
114三房户型
114三房样板间视频
132四房户型
132四房样板间视频
峯三房底跃上
跃下
因地理位置优越,学校,生活配套齐全,优质公立学校,顶级私立学校环绕,现房投资价值高!!
目前天宸135,三房租金在6000左右!!!
☎国宾江山·洺悦天宸/洺悦峯售楼处电话028-83516246「来电尊享优惠活动」☎
☎国宾江山·洺悦天宸/洺悦峯【置业经理】:15928896133「微信同步」☎
温馨提示:为了给您提供更高更好的接待服务质量,看房请提前致电售楼处预约!
【有免费看房车接送服务,如需预约,请致电售楼处】
声明:本文由入驻焦点开放平台的作者撰写,除焦点官方账号外,观点仅代表作者本人,不代表焦点立场。


