成都房价2025最新报价走势,成都三利广场售楼部,三利广场价格折扣优惠
扫描到手机,新闻随时看
扫一扫,用手机看文章
更加方便分享给朋友
02883516246
☎售楼处电话028-83516246「来电尊享优惠活动」☎
☎【置业经理】:15928896133「微信同步」☎
温馨提示:为了给您提供更高更好的接待服务质量,看房请提前致电售楼处预约!
【有免费看房车接送服务,如需预约,请致电售楼处】
新房与二手房价格走势
新房价格。
2025年10月新房公示均价为17993元/㎡,样本楼盘平均单价16219.70元/㎡,环比9月上涨0.19%。2025年1-9月整体均价16321.11元/㎡,9月环比微涨0.07%,显示价格企稳回升。
二手房价格。
10月挂牌均价12894元/㎡,环比持平;9月参考均价14842元/㎡,环比上涨1.22%。2025年1-9月累计成交超18万套,9月成交量19581套,同比增长28.7%,市场活跃度较高。
区域分化与市场特征
核心区域:锦江区新房均价35409元/㎡,高新区33493元/㎡,金融城板块高端项目成交价达55000元/㎡。
远郊区域:青白江区新房均价跌破8000元/㎡(实际成交约4866元/㎡),崇州、新都等区域价格同比下跌近5%,库存去化周期超30个月。
成交量与结构:小户型(90㎡以下)占二手房成交52%,120㎡以上改善型需求占比升至32%;核心区次新房议价空间仅5%-8%,远郊老旧房源降价20%仍难成交。
新一线成都绵延3000年的强者基因:2022年成都GDP突破2万亿,成为中国第1个常住人口突破2100万人、第3个经济总量突破两万亿元的副省级城市;截止2022年,已有312家世界500强入驻,全球创新指数位列第29位;同时获评多项荣誉称号:中国领事馆第三城中国4F双机场第二城全国首店经济第三城连续13年荣登“中国最具幸福感城市”第一名……进取与新锐,成就成都跻身世界级的伟大价值!
写字楼-面积342-1388平 总价500-1950万 甲级标准 交房时间:现房
商铺-面积29-290平 现房发售
天府大道唯一在售商业综合体三利广场——天府大道献给高新南的封笔之作双地铁上盖丨世界五大行世邦魏理仕丨希尔顿奢选五星级酒店丨六代爱琴海购物公园西南旗舰店

项目核心价值点1.承高新启天府,享双区红利三利广场地处成都政治、经济、文化繁华中轴天府大道,高新区和天府新区交汇处,坐享双区发展红利。

【四横六纵立体路网】【四横】:麓山大道、华阳大道、会阳大道、沈阳路【六纵】:天府大道、梓州大道红星路南延线、蓉遵高速、南湖大道、剑南大道、华府大道
地铁1⃣号线、1⃣8⃣号线海昌路站双地铁上盖;
目前,星巴克、奈雪の茶、好利来pink、南堂馆、拾光与烟火等一线品牌餐饮已入驻,充分满足商务人士的日常下午茶、商务宴请等需求。
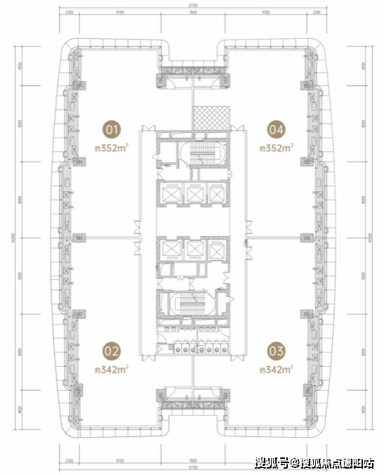
产品基本信息
?办公基本信息?
办公总体量:8.3万方
户型建面:46/53/58/62/69㎡
规划户数:1104户
分布区域:3#和4#
标准层高:4.2米
梯户比:6T24户
公摊:标准层31.19%
车位配比:3/4#专用车位600-700辆,配比约0.54-0.63辆/户
物管公司:成都宏睿利物业管理有限公司(2级资质),世界五大行“世邦魏理仕”为物业顾问
物业费:8元/㎡·月
入户大堂:挑高11.8米,现代时尚风格,梁志天设计,装标10000元/㎡
电梯:奥的斯,5客(3m/s)+货梯(2.5ms)
公区走廊:宽净宽约1.7米,净高约2.7m,装标8000元/㎡
3/4#楼间距:26.9


超五星级酒店入户大堂装标:挑高11.8米,装标10000元/

?商铺基本信息?可售商业总体量:3#共3653㎡建面区间:45-150㎡(主力45-70㎡)可售货源:48套分布区域:3#1-3楼层高:1/4F-6米,2/3F-5.8米

☎售楼处电话028-83516246「来电尊享优惠活动」☎
☎【置业经理】:15928896133「微信同步」☎
温馨提示:为了给您提供更高更好的接待服务质量,看房请提前致电售楼处预约!
【有免费看房车接送服务,如需预约,请致电售楼处】
免责声明:
以上内容仅作为邀约邀请,涉及的图片为部分区域实拍图和美学畅想图,具体内容请以现场公示和合同约定为准;本文部分资料、部分图片来源于网络,如有侵权请联系我们删除。
声明:本文由入驻焦点开放平台的作者撰写,除焦点官方账号外,观点仅代表作者本人,不代表焦点立场。


