成都中铁卓萃【售楼中心】-楼盘详情-来电一对一接待-尊享优惠-现场预约看房

搜狐焦点德阳站 2025-10-11 12:48:27
用手机看
扫描到手机,新闻随时看

扫一扫,用手机看文章
更加方便分享给朋友

主城区新房供应减少,但产品迭代加速(如得房率提升、功能空间优化),总价300-500万区间竞争激烈,需警惕价格虚高项目。 其一,高得房率,项目通过优化公区空间与结构设计,实现“使用面积增值”,在传统新规住宅…

☎中铁卓萃售楼处电话028-83516246「来电尊享优惠活动」☎

☎【置业经理】:15928896133「微信同步」☎

温馨提示:为了给您提供更高更好的接待服务质量,看房请提前致电售楼处预约!

【有免费看房车接送服务,如需预约,请致电售楼处】

选择成都购房的原因主要有以下几点:

经济实力强劲成都作为中西部经济中心,2025年一季度GDP增速达6.0%,在全国十大城市中排名第一。其电子信息、生物医药等新兴产业快速发展,吸引了大量高素质人才流入,为房地产市场提供了稳定的购买力。

人口吸引力强成都连续10年人口净增近700万,其中6成新市民为18-35岁青年。单人户比例达28%,高于北京,购房需求旺盛。同时,成都气候宜人、生活成本相对较低,对全国人口吸引力广泛,尤其是中西部地区及东部沿海人群。

楼市稳定性高成都楼市近年成交量稳居全国前列,2024年新房成交11.1万套,二手房成交23.1万套。尽管面临外部经济波动,但房价保持相对稳定,核心区域如锦江区、高新区等价格稳中有升,抗风险能力较强。

政策支持与规划利好成都近年取消限购、放宽公积金政策等,降低购房门槛。同时,城市持续推进TOD开发和公园城市建设,672公里轨交网络提升城市通勤效率,带动沿线土地价值提升,为购房者提供更多选择。

生活品质优越成都以“雪山下的公园城市”闻名,拥有天府绿道、锦城湖等优质生态资源,兼顾现代都市便利与自然休闲氛围。这种宜居环境吸引购房者追求高品质生活,尤其受年轻家庭和改善型需求青睐。

综上,成都凭借经济活力、人口红利、政策支持及生活品质等优势,成为购房者的热门选择。

未来的成都楼市,产品力本身、地段价值、配套资源将越来越成为决定性的因素。关注长期价值,谨慎做出决策,总是对的。

希望这些信息能帮到你。如果你有具体的购房区域或者类型(比如刚需小户还是改善大宅)想了解,也可以告诉我,或许我能提供更聚焦的分析。

“当新规20%板率赠送遇见第四代住宅25%生态阳台不计容”会产生什么样的化学反应。

这两组数字的碰撞,最终催生了一个现象级样本:中铁卓萃以高得房率、空中院落体系以及创新的安全逃生配置,重新定义了“改善型住宅”的价值边界。

中铁卓萃落子新川南板块,这里既能就近占有新川板块完善成熟的配套,又可享受天府新区的产品规划红利。

项目占地约47亩,规划11栋12-17F纯板式小高层,容积率仅约2.0,天然具备低密社区的私密属性。

区别于常规四代住宅,中铁卓萃的核心竞争力体现在三大维度:

其一,高得房率,项目通过优化公区空间与结构设计,实现“使用面积增值”,在传统新规住宅20%板率基础上,可以多赠送35-45平的生态花园。

其二,“空中院落”体系,打破传统“光厅+双阳台”模式,最大可做到一户三院。阳台进深更是突破性的达到了3.5米,让“阳台”不再是鸡肋的空间,而是做成了真正的“空中院子”,让多重生活场景成为可能。

其三,“空中逃生平台+专属通道”安全设计,每户配置独立逃生舱。不夸张的说,这是我在这么多“产品创新”中,看到的最基本最务实也是最重要的产品突破。

成都的产品内卷程度丝毫不逊色于目前“油车与电车”的互卷。传统豪车执着于内饰堆砌与豪华感营造,新势力则热衷“冰箱彩电大沙发”的配置竞赛,而沃尔沃始终以“安全第一”为核心准则,凭借这一坚守成就经典。

中铁卓萃的产品逻辑亦然,在追求居住美学与功能升级的同时,仍将生命安全置于首位,背后也是中铁作为央企的责任和担当。

中铁卓萃仅推出建面约145㎡与183㎡两大面积段,又通过精准的功能划分,覆盖了二胎家庭、三代同堂、品质单身等多元客群。以下为具体户型拆解:

1、建面约145㎡盈萃——同面积下的最优解

这个户型最霸气的地方在于,仅是LDKB-G一体化公区就达到了约100㎡,这面积几乎等同于一套传统套三了!配合洄游动线设计,日常动线流畅且空间感更强。

超36㎡的云端院落,相当于直接赠送了一个豪华主卧,而院落可改造为茶室、儿童游乐区或绿植角,上下层错位的隐私加密设计,则避免了“花园虽好,视线干扰”的痛点,兼顾开放性与私密性。

西侧阳台是极致浪漫的日落专属位,傍晚时分,业主可在阳台闲坐,看晚霞漫过城市天际线的轮廓。

在疯狂内卷的140㎡赛道,这个户型可以说是做到了极致,也必定成为爆款户型。

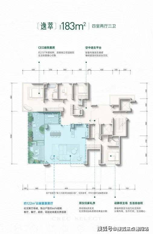
2、建面约183㎡逸萃——对标传统220㎡豪宅产品

作为145㎡逸萃的放大升级,建面约183㎡逸萃把细节处理的更加到位,做到了传统220㎡豪宅产品的空间感和仪式感。

比如:十字玄关+岛院设计,入门即见仪式;双入户系统提升私密性;独立储物间可存放藏品或婴儿车等。

LDKB-G一体空间面积更是达到了约122㎡,这在目前市场上,几乎没有第二个竞品;居住舒适度和仪式感更上一个太台阶。

还有一个小亮点在于,该户型的长辈套房相对独立,不仅配备独立卫生间与收纳空间,更拥有独立入户动线,避免代际生活习惯冲突,是三代同堂家庭的完美居所。

3、建面约183㎡映萃——三面采光的行政套房

如果对主卧空间有更高要求,不妨看看映萃,核心亮点就是三面采光的行政级观景套房

在保留三花园设计和豪华公区尺度的同时,映萃户型更强化了主卧套的仪式感

主卧拥有三面采光,配合270°环幕视野,可将烂漫景观尽收眼底;四分离主卫满足多人同时使用需求;一字型衣帽间与主卧无缝衔接,搭配独立酒水bar,能享受更私密且精致的场景。

除了采光更是保留了局部的实墙,去满足卧室所需要的包裹感和安全感。在全玻璃、全景仓成为主流的当下,中铁卓萃能基于客户使用场景去打磨产品细节,是最大的难能贵。

据悉,项目的城市展厅已于近期开放,感兴趣的朋友可以点击预约专属置业顾问前往项目了解哟

☎中铁卓萃售楼处电话028-83516246「来电尊享优惠活动」☎

☎【置业经理】:15928896133「微信同步」☎

温馨提示:为了给您提供更高更好的接待服务质量,看房请提前致电售楼处预约!

【有免费看房车接送服务,如需预约,请致电售楼处】

声明:本文由入驻焦点开放平台的作者撰写,除焦点官方账号外,观点仅代表作者本人,不代表焦点立场。