成都房价2025最新报价走势,成都华兴锦樾河畔售楼部,华兴锦樾河畔价格折扣优惠
扫描到手机,新闻随时看
扫一扫,用手机看文章
更加方便分享给朋友
☎华兴锦樾河畔售楼处电话028-83516246「来电尊享优惠活动」☎
☎【华兴锦樾河畔置业经理】:15928896133「微信同步」☎
温馨提示:为了给您提供更高更好的接待服务质量,看房请提前致电售楼处预约!
【有免费看房车接送服务,如需预约,请致电售楼处】
新房与二手房价格走势
新房价格。
二手房价格。
10月挂牌均价12894元/㎡,环比持平;9月参考均价14842元/㎡,环比上涨1.22%。2025年1-9月累计成交超18万套,9月成交量19581套,同比增长28.7%,市场活跃度较高。
区域分化与市场特征
核心区域:锦江区新房均价35409元/㎡,高新区33493元/㎡,金融城板块高端项目成交价达55000元/㎡。
远郊区域:青白江区新房均价跌破8000元/㎡(实际成交约4866元/㎡),崇州、新都等区域价格同比下跌近5%,库存去化周期超30个月。
成交量与结构:小户型(90㎡以下)占二手房成交52%,120㎡以上改善型需求占比升至32%;核心区次新房议价空间仅5%-8%,远郊老旧房源降价20%仍难成交。
新一线成都绵延3000年的强者基因:2022年成都GDP突破2万亿,成为中国第1个常住人口突破2100万人、第3个经济总量突破两万亿元的副省级城市;截止2022年,已有312家世界500强入驻,全球创新指数位列第29位;同时获评多项荣誉称号:中国领事馆第三城中国4F双机场第二城全国首店经济第三城连续13年荣登“中国最具幸福感城市”第一名……进取与新锐,成就成都跻身世界级的伟大价值!
项目基础信息:
▪开发商:成都市华兴住宅房地产开发有限公司
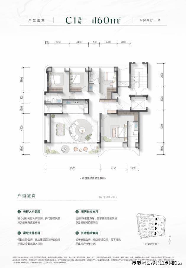
▪在售户型:
高层:99-118-160平
洋房:160平
▪单价:高层:待定
洋房:待定
▪总价:高层总价:待定
洋房总价:待定
▪在售楼栋:
高层1栋
洋房8栋
▪样板间:1栋3楼 高层:99-118㎡样板间
洋房待定
▪总楼栋:共8栋
高层1-5栋(共5栋)
洋房6-8(共3栋)
▪总楼层:高层22-26F
洋房7-8F
▪层高:3.1米
▪梯户比:高层2T3和2T4 洋房1T2
▪交房时间:2027年12月27日
▪公摊:高层 20% 洋房10%
▪朝向:高层西 洋房东西
▪占地:约74亩
▪绿化率:30.04%
▪容积率:1.5%
▪拿地时间:2020年初
▪产权年限:70年
▪总户数:523户
▪物业公司:成都兴华晟物业有限公司
▪物业费:高层3.6元 洋房3.8元
▪车位比:1:1.6
▪装修情况:高层精装 洋房清水
▪付款方式:都可以
▪贷款银行:都可以
▪地铁:5号线,15/22号线规划中
交通
一轨:5号线骑龙站;
八横:天府一到五街、元秀路、华府大道,警校路
四纵:剑南大道、华秀路、益州大道、天府大道
商业
大润发商圈、世豪广场商圈、银泰城商圈、伊藤洋华堂商圈、港汇天地
五大繁华商圈环绕。
学校
怡心第一实验学校(直线距离)
成都教科院附属学校、成都七中高新校区等、成都美视国际学校、成都外国语学校等公立、私立优资学府环伺。
医疗
项目邻四川大学华西医院高新院区,
预计2026年可投入运营。
成都市第三人民医院高新院区(已批复),
为每一位业主家人的健康保驾护航。
华兴·锦樾河畔
☎华兴锦樾河畔售楼处电话028-83516246「来电尊享优惠活动」☎
☎【华兴锦樾河畔置业经理】:15928896133「微信同步」☎
温馨提示:为了给您提供更高更好的接待服务质量,看房请提前致电售楼处预约!
【有免费看房车接送服务,如需预约,请致电售楼处】
声明:本文由入驻焦点开放平台的作者撰写,除焦点官方账号外,观点仅代表作者本人,不代表焦点立场。


