成都稀缺酒店资源——映江南:开高端酒店的老板看过来 ,建面24661平1.7个亿拿下, 星级配套️绝版资产
扫描到手机,新闻随时看
扫一扫,用手机看文章
更加方便分享给朋友
☎售楼处电话028-60220139「来电尊享优惠活动」☎
☎【置业经理】:15928896133「微信同步」☎
温馨提示:为了给您提供更高更好的接待服务质量,看房请提前致电售楼处预约!
【有免费看房车接送服务,如需预约,请致电售楼处】
免责声明:(本文章所用信息图片来源于网络,如有侵权请联系本网站及时删除)
??成都绝版全配套酒店物业??
??【2025绝版酒店资产】全城首开??
———————————————————
??【绝版物业|碾压全城】??
•?唯一款|绝版酒店,顶流配套?
•?地铁口|三轨交汇,人流汇聚?
•?财富地|成北新消费活力区?
•?正中轴|天府大道北中轴封面?
•?产业芯|六大千亿产业环伺,价值稳涨?
•?带人潮|百万产业人群,自带流量?
•?旅游点|网红打卡点,旅游目的地?
•?天际楼|约139米天际线,全落地玻璃?
•?全配套|会所·泳池·宴会·央厨·车位等?

??【绝版区位|天府中轴心脏】??
•立足150KM天府北中轴——全球最长城市中轴,城市财富黄金线
•坐拥成都战略门户——成北新消费活力区,承接成渝双核、成德绵一体化红利
??【全城通达 丨 交通便利】??
•三横三纵立体交通——便捷连通全城
•三轨交汇——地铁5号线,27号线,S11

??【千亿圈层 丨 产业齐聚】??
•六大产业链同频发力——坐享上下游资源(商务商贸、体育文创、汽车贸易、智能家居、美食餐饮、医药贸易)
•千亿级企业总部集群——尽享全球财富磁力圈(国际商贸城、中航城、海宁皮革城、传化物流、京东园区、阿里巴巴)

??【赛事红利|人潮爆发】??
凤凰体育公园演唱会、赛事、展览不断——吸引大量星粉,消费潜力巨大。
??【网红景点|旅客必到】??
三星堆、大熊猫基地、金沙遗址黄金三角——网红旅游线路核心打卡地。
??【常住人口|稳固客群】??
项目五公里约100万、三公里约20万人口沉淀。


??【全城瞩目丨标杆级旅游目的地】??
•约25万方苏州园林综合体——15000㎡园林IP商业+外广场+源上湾公园,文旅一体消费体验。
•西南唯一纯正苏州园林——水石相依、亭台楼阁尽显江南韵味,城市级网红打卡地。
•超甲写字楼+宴会厅——自带商务与婚宴人群,稳定导流。


??【豪华配套丨商旅畅享】??
•高端宴会厅——婚宴、会议、聚会全能承载,稳固导入人群。
•天际会所+泳池——城市之巅,尊贵社交场。
•9梯27户高速电梯——高效通行,舒适体验。
•地上+地下专属车位——配比充足,畅停无忧。
•星级酒店大堂——恢弘形象,尊崇接待。
•中央厨房——全能支持,满足餐饮宴会全场景需求


??【1层】艺术办公大堂??
(层高6米)

??【2层】宴会厅+会议厅+VIP接待??
面积:3517.62㎡,层高:6米

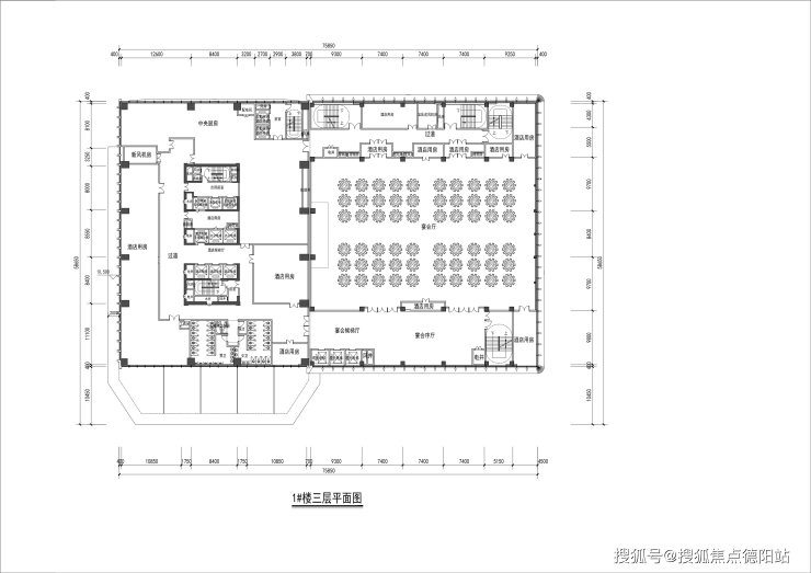
??【3层】挑高宴会厅+中央厨房+全日制餐厅??
面积:3648.91㎡,层高:4.5米,局部8.7米挑高

??【4层】私宴+中厨房+约500㎡共享空间??
面积:2133.84㎡,层高:4.5米

??【5层】棋牌+娱乐(赠送超大露台)??
面积:1882.49㎡,层高:4.2米

??【绝版酒店丨全城唯一】??
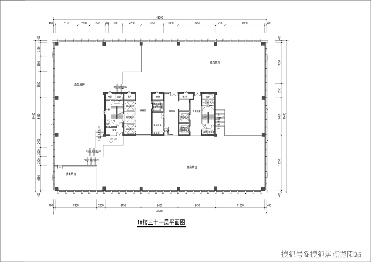
•25层~30层,单层面积:1658.08㎡
•31层面积:1658.08㎡
•层高:3.6/4.2米
??【酒店共计产权面积丨24661㎡】??


??【买增值买预期|稳健资产闭眼入】??
呈现进度80%,酒店需求超高
??限时售卖|区域唯一|稳定收益<<<<
☎售楼处电话028-60220139「来电尊享优惠活动」☎
☎【置业经理】:15928896133「微信同步」☎
温馨提示:为了给您提供更高更好的接待服务质量,看房请提前致电售楼处预约!
【有免费看房车接送服务,如需预约,请致电售楼处】
免责声明:(本文章所用信息图片来源于网络,如有侵权请联系本网站及时删除)
声明:本文由入驻焦点开放平台的作者撰写,除焦点官方账号外,观点仅代表作者本人,不代表焦点立场。


