新川雅境(成都)天府星萃里售楼处电话-楼盘详情-售楼处地址-明信天府壹号房价-在售户型
扫描到手机,新闻随时看
扫一扫,用手机看文章
更加方便分享给朋友
02883516246
☎新川雅境售楼处电话028-83516246「来电尊享优惠活动」☎
☎【新川雅境置业经理】:15928896133「微信同步」☎
温馨提示:为了给您提供更高更好的接待服务质量,看房请提前致电售楼处预约!
【有免费看房车接送服务,如需预约,请致电售楼处】
成都现在房产市场三级分化,第一类是核心资产,止跌横盘或小幅上涨都有,补涨的苗头已经出现了,这类资产受大环境影响很大,也是市场风向标,随时被人关注。
第二类是优质产品,表现不一,涨跌幅取决于之前的价格泡沫大小,像北门几个改善楼盘涨跌就很小,没有大涨过自然不会大跌,而以天新为代表的新开发区域、次新盘往往入市价格偏高,止跌压力比较大。
第三类是完全丧失流动性的小区,集中在五城区,只有居住价值,一年成交几套,探讨涨跌意义不大,成交数据比较偏离真实市场情况。
2024年成都新房市场趋向高改化:成交主力面积段为120-144㎡,成交主力总价段为200-300万。其中,建面180㎡以上新房供应总量约为255万方,成交总量约为258万方,为成都新房市场成交次主力。
二手房成首置、首改家庭主阵地:2024年大成都二手房成交主力面积段为90㎡以内,成交次主力面积段为90-120㎡,建面120㎡以内中小户型的成交套数占比超八成,这说明在成都购买二手房市场的家庭,主要住房需求为首次置业或者首次改善;
根据2024年大成都二手房成交价格来看,总价两百万以内的房源成交占比接近九成,这说明活跃在成都二手房市场的家庭购房预期价格普遍在两百万以内。据CRIC数据,11月成都二手房成交规模居全国重点52城之首,远高于上海、北京,约为广州+深圳单月二手房成交总量的1.65倍。
成都二手房成交量之所以能领先于其他城市,一方面是因为卖旧买新的置换群体日渐增多,促使二手房挂牌量持续增加。
关键是成都对四川川内具备天然的人口吸附能力,城市首位度居全国第四,一城GDP占全省36.7%,仅次于银川、西宁、长春三市。
其二是人口流入在全国处于中上水平,考虑到成都已经有超2100万常住城市人口,这个数据也是很亮眼的。
第三是新房大幅度缩量,购买力转向二手市场,特别是总价400万以内这部分需求,在主城供应量正在减少。

对于2025年成都的房产走势,预测如下:5+2区域全年只卖了31宗地,新房库存见底,多个200㎡+户型曝光,大户型成明年新房供应主流
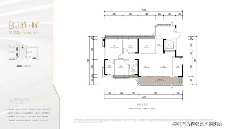
兴唐新川雅境总占地约32.8亩,容积率2.5,共397户,被新川北三路化为东西两个地块,共规划了11栋14-17F的小高层,均为两梯两户的纯板式。其中7栋为南北朝向,4栋为东西朝向。【基本信息】项目占地:约33亩容积率:约2.5绿地率:约35%层高:3.15米楼层高度:14层-17层项目规划:规划8栋住宅房源套数:397套交付标准:精装交付梯户比:2梯2户,每户带独立入户光厅产品面积:132㎡(套四双卫),143㎡(套四三卫 )总价区间:423-574万物业公司:龙湖物业物业费:3.8元/㎡/月
【区域价值】
新川和高新南区的发展,正呈现出势不可挡的潜力。新川创新科技园占地面积10.34平方公里,旨在打造一个集创新、生态和人文于一体的“世界交融之城”,吸引全球高科技创新企业和人才,成为成都市开放、交流、融合和创新的核心和引擎。根据规划,新川科技园将致力于建设5G智慧城示范标杆,重点发展5G通信、人工智能、前沿医学等领域,吸引创新型企业入驻。新川,这个未来的中心将以其高度的活力融入城市的发展进程,一同书写区域发展的宏伟史诗。

周围环境 新川黄金中心的新川雅境将成为最大的受益者,受到极大的欢迎和海量的配套资源的支持。实际上,新川雅境本身就是一个资源聚合地,门口已经有了完备的生活配套资源。交通方面,项目南侧就是新通大道,可以快速连接锦翰路、梓州大道、新程大道等城市主干道,自驾非常便捷。距离地铁6号线的新通大道站不到400米。商业方面,3号邻里中心近在咫尺,华润·时光里、华润·万象天地(在建)、圆中商业广场(在建)等综合配套步行即可到达;教育方面,项目位于中和A片区,共有5所小学:行知小学、新华小学、四川省教科院附小、高新区蒙新小学、四川省教科院附小崇和校区。医疗方面,四川省中西医结合医院高新医院、四川省医院高新分院(规划)。在售户型:
☎新川雅境售楼处电话028-83516246「来电尊享优惠活动」☎
☎【新川雅境置业经理】:15928896133「微信同步」☎
温馨提示:为了给您提供更高更好的接待服务质量,看房请提前致电售楼处预约!
【有免费看房车接送服务,如需预约,请致电售楼处】
免责声明:
以上内容仅作为邀约邀请,涉及的图片为部分区域实拍图和美学畅想图,具体内容请以现场公示和合同约定为准;本文部分资料、部分图片来源于网络,如有侵权请联系我们删除
声明:本文由入驻焦点开放平台的作者撰写,除焦点官方账号外,观点仅代表作者本人,不代表焦点立场。


