成都清凤翡翠岛售楼处【2024成都新房二手房成交情况及2025年成都新房走势】
扫描到手机,新闻随时看
扫一扫,用手机看文章
更加方便分享给朋友
☎清凤翡翠岛售楼处电话028-83516246「来电尊享优惠活动」☎
☎【清凤翡翠岛置业经理】:15928896133「微信同步」☎
温馨提示:为了给您提供更高更好的接待服务质量,看房请提前致电售楼处预约!
【有免费看房车接送服务,如需预约,请致电售楼处】
成都现在房产市场三级分化,第一类是核心资产,止跌横盘或小幅上涨都有,补涨的苗头已经出现了,这类资产受大环境影响很大,也是市场风向标,随时被人关注。
第二类是优质产品,表现不一,涨跌幅取决于之前的价格泡沫大小,像北门几个改善楼盘涨跌就很小,没有大涨过自然不会大跌,而以天新为代表的新开发区域、次新盘往往入市价格偏高,止跌压力比较大。
第三类是完全丧失流动性的小区,集中在五城区,只有居住价值,一年成交几套,探讨涨跌意义不大,成交数据比较偏离真实市场情况。
2024年成都新房市场趋向高改化:成交主力面积段为120-144㎡,成交主力总价段为200-300万。其中,建面180㎡以上新房供应总量约为255万方,成交总量约为258万方,为成都新房市场成交次主力。
二手房成首置、首改家庭主阵地:2024年大成都二手房成交主力面积段为90㎡以内,成交次主力面积段为90-120㎡,建面120㎡以内中小户型的成交套数占比超八成,这说明在成都购买二手房市场的家庭,主要住房需求为首次置业或者首次改善;
根据2024年大成都二手房成交价格来看,总价两百万以内的房源成交占比接近九成,这说明活跃在成都二手房市场的家庭购房预期价格普遍在两百万以内。据CRIC数据,11月成都二手房成交规模居全国重点52城之首,远高于上海、北京,约为广州+深圳单月二手房成交总量的1.65倍。
成都二手房成交量之所以能领先于其他城市,一方面是因为卖旧买新的置换群体日渐增多,促使二手房挂牌量持续增加。
关键是成都对四川川内具备天然的人口吸附能力,城市首位度居全国第四,一城GDP占全省36.7%,仅次于银川、西宁、长春三市。
其二是人口流入在全国处于中上水平,考虑到成都已经有超2100万常住城市人口,这个数据也是很亮眼的。
第三是新房大幅度缩量,购买力转向二手市场,特别是总价400万以内这部分需求,在主城供应量正在减少。

对于2025年成都的房产走势,预测如下:5+2区域全年只卖了31宗地,新房库存见底,多个200㎡+户型曝光,大户型成明年新房供应主流
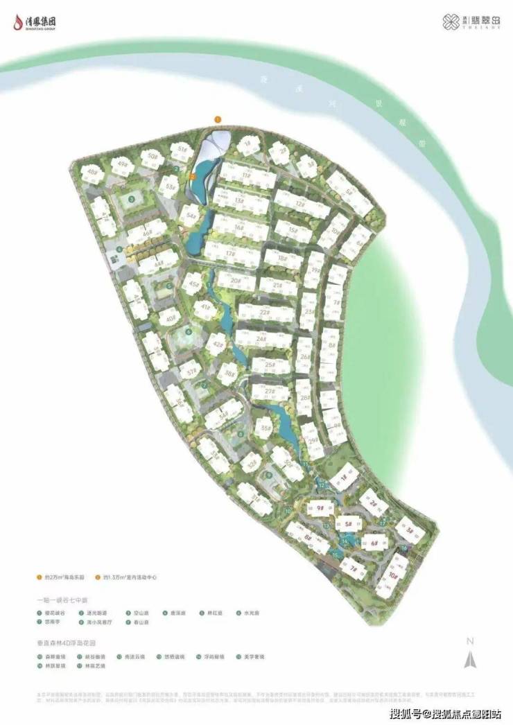
【基本情况】
占地面积:整盘约320亩(含69亩公园),翡翠岛约37亩
容积率:整盘1.8
总高:洋房(11-12F)(含底跃+顶跃)
绿化率:50%
层高:3.3米
梯户比:3梯2户/2梯2户(翡翠岛)
外销证:有
三期【翡翠岛】:175㎡~379㎡
总价:约400万~900万(含顶跃和底跃)
本项目十大必买理由
住在这里,您可享有
1、最美湖岸线:约500米鹿溪湖岸线,私享一线无遮挡湖景。
2、最繁华商圈:大悦城、暹罗天地、保税中心等3公里黄金商业圈,双地铁交通路网,尽享城市繁华;
3、度假式景观园林:八大景观主题庭院,九重叠水景观,生活与自然无界共融。
4、源创立面标准:金属铝板外墙、公建化LOW-E玻璃、高阶莫兰迪配色,引领未来建筑审美。
5、最强产品:约35m2U型环幕露台,270°广阔瞰景视野;约3.3-5.8米奢阔层高;3梯2户主人独梯,约2.2米超大电梯进深尺度,成都豪宅NO.1。
【项目配套】
交通:
天府大道(贯穿成都南北区域)、梓州大道;18号线兴隆站、19号线蓝家店站。
商业:
天府国际保税中心、天府大悦城、言几又文创中心、招商花园城购物中心、正大暹罗天地、天府美丽汇、西博城,汇聚约126万方集中商业。
医疗:
华西天府医院、万达国际医院、四川第二人民医院天府院区、天府新区妇女儿童医院(拟建),给予全家健康保障。
教育:
G区四川天府新区教育科学研究院附属小学、四川天府新区教育科学研究院附属中学(西区)等,师资力量雄厚,给予圈层骄子优质菁英教育。(天府新区第一小学,天府中学,天府新区教育科学研究院附小、中学)
生态:
鹿溪智谷生态湿地中央公园、鹿溪河生态公园、兴隆湖环湖湿地、麓湖等生态宜居大境。
产业:
西部科学城两大核心:以西博城为代表的国家展览中心、以独角兽岛为代表的国际科创中心,鹿溪智谷-天府新区产业之钻
在售户型
【227㎡玉蝶大平层】

现房大平层


【顶跃户型】(在12层,绝佳视野,带100㎡左右屋顶花园)



【底跃户型】

【叠拼别墅产品介绍】
楼栋:11栋、13栋、16栋、17栋、20栋
面积:约557-630㎡
上叠实得:900左右 花园150左右
下叠实得:1000左右 花园80-120
上叠总价:1200万起(在售9套)
下叠总价:1300万起(在售10套)
上下叠拼(御墅),总7层楼高,实得2000平
【装修情况】:清水交付
别墅:11栋、13栋、16栋
【交房时间】2024年11月15日,现房!
别墅:17栋、20栋
【交房时间】2024年11月30日,现房!
上叠户型:

下叠户型:

清凤翡翠岛
☎清凤翡翠岛售楼处电话028-83516246「来电尊享优惠活动」☎
☎【清凤翡翠岛置业经理】:15928896133「微信同步」☎
温馨提示:为了给您提供更高更好的接待服务质量,看房请提前致电售楼处预约!
【有免费看房车接送服务,如需预约,请致电售楼处】
声明:本文由入驻焦点开放平台的作者撰写,除焦点官方账号外,观点仅代表作者本人,不代表焦点立场。


