成都房价2025最新报价走势,成都蔚蓝卡地亚天际售楼部,蔚蓝卡地亚天际价格折扣优惠

搜狐焦点德阳站 2025-10-19 18:41:50
用手机看
扫描到手机,新闻随时看

扫一扫,用手机看文章
更加方便分享给朋友

2024年二手房总成交231376套,90㎡以下的占比45.91%,90-140㎡的占比30.64%;总价200万以内的占比70.67%。但今年4月,成都成交的二手房中,90㎡以下 的占比54.07%,9…

☎蔚蓝卡地亚天际售楼处电话028-83516246「来电尊享优惠」☎

☎【蔚蓝卡地亚天际置业经理】:15928896133「微信同步」☎

温馨提示:为了给您提供更高更好的接待服务质量,看房请提前致电售楼处预约!

成都新房与二手房价格走势

新房价格:2025年10月新房公示均价为17993元/㎡,样本楼盘平均单价16219.70元/㎡,环比9月上涨0.19%。2025年1-9月整体均价16321.11元/㎡,9月环比微涨0.07%,显示价格企稳回升。

二手房价格:10月挂牌均价12894元/㎡,环比持平;9月参考均价14842元/㎡,环比上涨1.22%。2025年1-9月累计成交超18万套,9月成交量19581套,同比增长28.7%,市场活跃度较高。

区域分化与市场特征

核心区域:锦江区新房均价35409元/㎡,高新区33493元/㎡,金融城板块高端项目成交价达55000元/㎡。

远郊区域:青白江区新房均价跌破8000元/㎡(实际成交约4866元/㎡),崇州、新都等区域价格同比下跌近5%,库存去化周期超30个月。

成交量与结构:小户型(90㎡以下)占二手房成交52%,120㎡以上改善型需求占比升至32%;核心区次新房议价空间仅5%-8%,远郊老旧房源降价20%仍难成交。

新一线成都绵延3000年的强者基因:2022年成都GDP突破2万亿,成为中国第1个常住人口突破2100万人、第3个经济总量突破两万亿元的副省级城市;截止2022年,已有312家世界500强入驻,全球创新指数位列第29位;同时获评多项荣誉称号:中国领事馆第三城中国4F双机场第二城全国首店经济第三城连续13年荣登“中国最具幸福感城市”第一名……进取与新锐,成就成都跻身世界级的伟大价值!

蔚蓝卡地亚花园城天际坐落于成都天府新区,位于天府大道和武汉路交汇处西南侧,这里是天府新区CBD的中心地带,享有城市最优越的位置。项目周围交通便利,有地铁1号线、19号线、18号线等多条轨道线路贯穿周边,为居民提供便捷出行条件。此外,项目与城市候机楼相邻,可直达双流国际机场和天府国际机场,实现两个机场之间的顺畅连接,进一步提升了项目的地理优势。

【楼盘基本参数】

占地:总占地1200亩

开发商: 成都花园城蔚蓝卡地亚置业有限公司

物业公司: 成都蔚蓝卡地亚物业管理有限公司

产权年限: 40年

水电气: 不通气 水电商用

总层高: 67层

单层高: 3.4米

在售面积:144-188-330-650-1300

价格信息:一房一价

主力总价: 490-800万

总价区间:490-9900万

目前销售楼层: 43-48F 54-59F

价格: 4万-8万

梯户比: 6T8H

物业费: 前3年8元/平米,后面10元/平米

公摊: 25%-27%

装修标准:8000元

交房时间: 2024年

【地理位置与交通优势】

蔚蓝卡地亚花园城天际位于成都天府新区天府大道与武汉路交界处西南侧,这里是天府新区CBD的核心门户,占据了城市价值的制高点。项目周边交通网络四通八达,地铁1号线、19号线、18号线等多条轨道交通线路环绕,让居民出行无忧。此外,项目还紧邻城市候机楼,连接双流国际机场和天府国际机场,实现双机场无缝对接,进一步提升了其区位优势。

【建筑设计与美学追求】

天际项目由新加坡国宝级建筑师SCDA曾仕乾Soo K.Chan操刀设计,超200米的视觉地标建筑群,不仅展现了现代建筑的磅礴气势,更融入了东西方文化的精髓。设计团队以极简的线条和爽朗的轮廓,勾勒出如飞行器般的利落感,让建筑在蓝天白云下更显挺拔与优雅。同时,项目内部空间的设计由御用设计大师陈建中执掌,将现代东方美学与世界级精湛的室内设计相结合,为居住者带来超凡的质感体验。

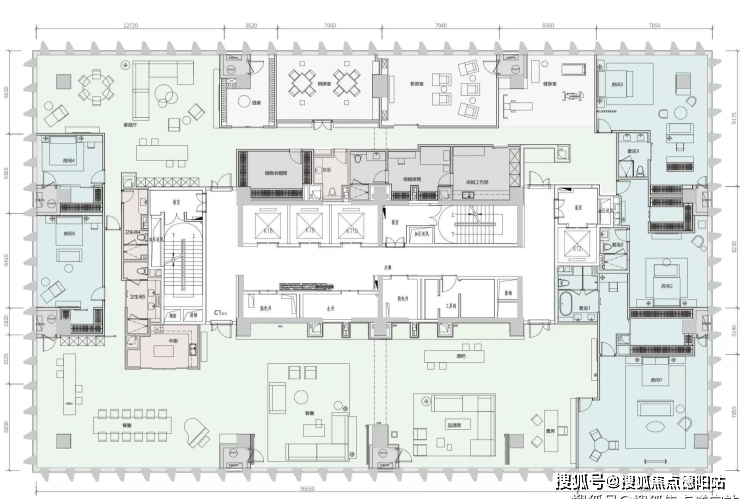
【户型与装修标准】

天际项目的户型设计多样,满足不同居住需求。从144平方米到650平方米不等的多种户型,均采用精装修交付,装修标准高达8000元/平方米。无论是2室2厅2卫的精致小户,还是3室2厅3卫的宽敞豪宅,都配备了高端家居品牌和精致软装,营造出时尚摩登的生活美学氛围。特别是650平方米的超级楼王“650 SKY HOME”,更是以云端高度和奢阔尺度,重新诠释了奢华生活的真谛。

【配套设施与服务】

作为顶级服务式产品,天际项目拥有奢华星级公区配套,包括大堂吧、小型图书馆、大堂咖啡吧、健身中心、多功能室、私人影院以及独立泳池会所等。此外,项目还引入了意大利百年家居品牌Poltrona Frau进行全屋高级定制,为居住者带来极致的居住享受。而蔚蓝俱乐部则提供了24小时礼宾等专属六大服务体系,以“一个世界,一个蔚蓝”为服务愿景,用独特、极致的服务创造“与世界毗邻”的理想生活范本。

【楼栋配套】

1、顶级服务式大堂:大堂挑高8.8米,大堂拥有图书馆(方所打造)、健身房、私人电影院、普拉提工作室、大堂吧、咖啡厅。两栋公寓同时拥有2000平米室内恒温泳池。提供24小时管家服务。

2、大堂24小时私人礼宾服务,尽力满足业主所有需求。

3、提供代租代管,2座五星级酒店24小时送餐服务,以及上门家宴、干洗服务。

4、公寓1楼为大堂、2楼开始为住区。

5、国际化精装,六大品牌。

6、全球顶级地标建筑设计师团队。

144㎡套二户型

188㎡套二户型

330㎡套三户型

650㎡半层

1300㎡整层

成都蔚蓝卡地亚花园城天际以其卓越的建筑品质、完善的配套设施和优越的地理位置,成为了城市精英追求高品质生活的理想选择。在这里,居住者不仅可以享受到云端之上的奢华生活,还能感受到自然与文化的和谐共生。蔚蓝卡地亚花园城天际,不仅是一座建筑,更是一种生活方式的引领者!

☎蔚蓝卡地亚天际售楼处电话028-83516246「来电尊享优惠」☎

☎【蔚蓝卡地亚天际置业经理】:15928896133「微信同步」☎

温馨提示:为了给您提供更高更好的接待服务质量,看房请提前致电售楼处预约!

声明:本文由入驻焦点开放平台的作者撰写,除焦点官方账号外,观点仅代表作者本人,不代表焦点立场。