成都华侨城七十二院售楼处【2024成都新房二手房成交情况及2025年成都新房走势】
扫描到手机,新闻随时看
扫一扫,用手机看文章
更加方便分享给朋友
☎七十二院售楼处电话028-83516246「来电尊享优惠」☎
☎【七十二院置业经理】:15928896133「微信同步」☎
温馨提示:为了给您提供更高更好的接待服务质量,看房请提前致电售楼处预约!
成都现在房产市场三级分化,第一类是核心资产,止跌横盘或小幅上涨都有,补涨的苗头已经出现了,这类资产受大环境影响很大,也是市场风向标,随时被人关注。
第二类是优质产品,表现不一,涨跌幅取决于之前的价格泡沫大小,像北门几个改善楼盘涨跌就很小,没有大涨过自然不会大跌,而以天新为代表的新开发区域、次新盘往往入市价格偏高,止跌压力比较大。
第三类是完全丧失流动性的小区,集中在五城区,只有居住价值,一年成交几套,探讨涨跌意义不大,成交数据比较偏离真实市场情况。
2024年成都新房市场趋向高改化:成交主力面积段为120-144㎡,成交主力总价段为200-300万。其中,建面180㎡以上新房供应总量约为255万方,成交总量约为258万方,为成都新房市场成交次主力。
二手房成首置、首改家庭主阵地:2024年大成都二手房成交主力面积段为90㎡以内,成交次主力面积段为90-120㎡,建面120㎡以内中小户型的成交套数占比超八成,这说明在成都购买二手房市场的家庭,主要住房需求为首次置业或者首次改善;
根据2024年大成都二手房成交价格来看,总价两百万以内的房源成交占比接近九成,这说明活跃在成都二手房市场的家庭购房预期价格普遍在两百万以内。据CRIC数据,11月成都二手房成交规模居全国重点52城之首,远高于上海、北京,约为广州+深圳单月二手房成交总量的1.65倍。
成都二手房成交量之所以能领先于其他城市,一方面是因为卖旧买新的置换群体日渐增多,促使二手房挂牌量持续增加。
关键是成都对四川川内具备天然的人口吸附能力,城市首位度居全国第四,一城GDP占全省36.7%,仅次于银川、西宁、长春三市。
其二是人口流入在全国处于中上水平,考虑到成都已经有超2100万常住城市人口,这个数据也是很亮眼的。
第三是新房大幅度缩量,购买力转向二手市场,特别是总价400万以内这部分需求,在主城供应量正在减少。

对于2025年成都的房产走势,预测如下:5+2区域全年只卖了31宗地,新房库存见底,多个200㎡+户型曝光,大户型成明年新房供应主流。
背依龙泉山,中国建筑的七十二院
【华侨城七十二院】择址成渝双城经济圈的纽带——龙泉驿,依托东进红利,坐拥全维生活配套的同时,依托龙泉山国家森林公园的生态底蕴为背景,于“离尘不离城”的诗意格局之中,聚人文芳华。独创三街九巷格局,顺遂国人成家、社交、传承等置业需求。汇聚川闽海晋徽五大派系美学,每一栋皆为藏品级定制:一砖一瓦,一榫一卯,一转一折,处处凝聚着匠人文脉的精魄。

华侨城·七十二院实景图
续写精魂,川派建筑的博物馆
在一方国风院墅,永序世家门风的背景下,【华侨城七十二院】提取川派建筑发展脉络,从川派民居、川派院落、川派会馆三大建筑时间发展维度,于屋脊处、于厅堂上、于细节处的雕梁工艺间,重现川派建筑史,让喜爱者于建筑中跨时空感知华夏大家生活。

华侨城·七十二院实景图
续写昨日川派会馆辉煌
始于明代会馆建筑风,四川地区受到对外贸易活跃的影响,川派建筑结合会馆形成了庭院、大厅、正厅,东西厢房的对称布局
从大厅接待、娱乐社交到正厅厢房办公旅居的分区递进生活模式之外,在会馆庭院内大多叠石、引水,种植各种花草树木,形成会馆建筑与园林构景相结合的布局。

华侨城·七十二院实景图
青瓦白墙的川派民居
从建筑的材质和样式来看,川西民居结构通常采用的“穿斗”结构,早在汉代就已出现,是中国古代木制建筑三大结构之一,再进一步演变为地龙墙、高勒脚、木地板、四周设通风口的庭园式民居,体现了中国传统建筑的科学和美学,恰如其分地为川西先民提供舒适美观的栖居之所。

华侨城·七十二院实景图
自然隐逸的川派院落
川西院子既显气宇轩昂之势,亦藏碧玉小家之幽。此院吸取传统川西建筑精髓,小青瓦、薄封檐,门窗木构雕而不画建筑特点
更在院内原植银杏香樟数株,玉兰绽放,繁花清香,静坐院内观四时枯荣,以花做篱笆,诗意为墙,无车马喧嚣,恍如隔世。

洛带华侨城·七十二院实景图
项目简介:
洛带华侨城·七十二院,东靠龙泉山城市森林公园,北接国家4A级景区洛带古镇,西面洛水湿地公园,南临千亩蔚然花海
项目以客家人历史上五次大迁徙为文化脉络,精选中国建筑的优秀元素,汇聚闵、海、川、晋、徽五大建筑派系院落,随着街、巷、院的空间变化,让中国的传统建筑艺术得以展现

基础信息:
项目位置:成都市龙泉驿区洛带三峨街999号
占地面积:约200亩
物业公司:华侨城物业(集团)有限公司成都分公司
物业费:5元/平米/月
容积率:0.7
项目区位图:
周边配套:
交通:
城市主干道:成都五环路(成环路)、成洛大道、渝蓉高速、蜀都大道等?
公交:219路、850路、K7快速公交等十余条公交线路?
距离双流机场、天府国际机场约40km,40分钟即可起飞全球✈
生态:
龙泉山城市森林公园、洛水湿地公园、蔚然花海(4A级景区)
学校:
龙泉驿区洛带第二幼儿园、洛带小学、洛带中学、成都康礼·克雷格公学(建设中)
医院:
龙泉驿区第二人民医院、洛带公立卫生院、龙泉驿区第一人民医院、龙泉驿区妇幼保健院、四川省人民医院东院
休闲:
洛带古镇(4A级景区)、中国艺库商业街
产品介绍:
闵派:自持商业院落,面积段30-300㎡,打造城市商业步行街
海派:自持商业院落,面积段300-3000㎡,打造中法特色风情街
川派:在售合院,面积段200-500㎡,均价约17000元/平,总价段300-900万元
晋派:在售合院,面积段400-600㎡,均价约17800元/平,总价段680-1000万元
徽派:在售联排,面积段210-350㎡,均价约15000元/平,总价段330-520万元
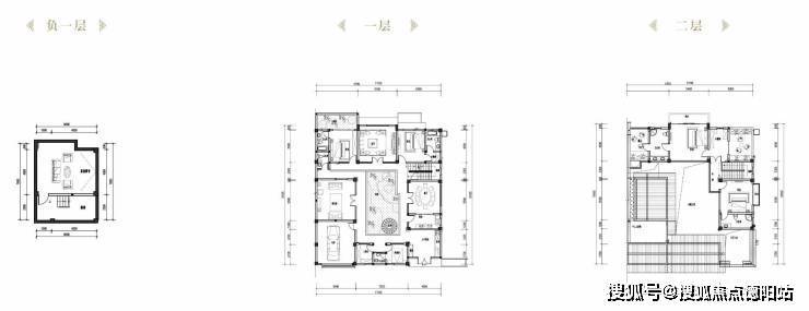
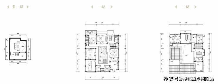
户型鉴赏:
川派:明月府 9-2#(建筑面积373.17㎡,实得面积约513㎡)
川派:南风院 6-3#(建筑面积369.13㎡,实得面积约513㎡)
川派:锦云府 13-6#(建筑面积327.5㎡,实得面积约435.66㎡)

川派:烟霞堂 6-2#(建筑面积469.43㎡,实得面积约698.88㎡)

园林景观

【十美合院】集合三大建筑特色【川派、晋派、徽派】,仅10套的体量,足以体现出产品的稀有性,全实景现房交付,切身感受院落围合的居住理念,倾听来自华夏文脉的故事留存于院落之中。
洛带华侨城·七十二院实景图
洛带华侨城·七十二院作为中国院落的高光代表,花费了数年的时间用来打磨产品,不断将理想化为现实。在全新组团【十美合院】中完美体现了匠心精神,三大派系符号糅合其中——川派的清雅灵动、晋派的浑厚大气、徽派的儒雅清丽。众多“院落粉”们欣喜若狂,【十美合院】不管是价值潜力还是生活尺度,都足以成为你的必买理由。



洛带华侨城·七十二院实景图

01
实力品牌·匠心构筑
央企华侨城集团三十六载筑梦前行,连续11年获得国务院国资委年度业绩考核A级评价,截至2021年末,总资产规模近7000亿元。央企华侨城集团始终以开拓者的角色,与城市共同发展,为每座城市开启全新美好。
02
卓越匠心·荣耀加冕
在2021中国房产风云榜成都站颁奖中,洛带华侨城·七十二院斩获“2021年度卓越匠心楼盘”奖项。万众瞩目,皆为上品!
洛带华侨城·七十二院实景图
03
三大派系·院院臻品
川派:小青瓦、薄封檐,婉约灵动山水里。
川派建筑的气质蕴涵,依附于瓦檐、石墩上,形态各异的花卉、飞鸟、图腾,成为独有的符号文化。



洛带华侨城·七十二院实景图
晋派:高墙深院气磅礴,四水归堂大开阖。
晋派建筑凝存着晋商的精神理念,展现在斗拱飞檐、黑白高墙上,它们相互衬托形成显著的文化符号。

洛带华侨城·七十二院实景图
徽派:白墙青瓦马头墙,肥梁瘦柱内天井。
徽派建筑里的人事浮沉留存于千姿百态的马头墙下,一方天地间,重现美好生活,安放静谧的心灵。


洛带华侨城·七十二院实景图
04
独栋独院·院院不同
约217-450m²独栋合院,围合而造,一户一字号,一院一生活,从设计理念到建筑规划,都沿袭了对传统院落的生活情节。

洛带华侨城·七十二院实景图
05
高性价比·此后难有
总价仅300万元起,入主成都主城独栋,院落主人可根据不同的喜好挑选派系,每一席都是流芳百世的臻品。

洛带华侨城·七十二院实景图
06
皇家园林·辅佐院落
五步一院,十步一巷,廊间曼妙,斗拱飞檐,以皇家园林为蓝本打造,横梁、立柱、大门,以古都名宅为标准,一砖一木皆为名匠古法精造,一院一字号,重现华夏人文街巷。
洛带华侨城·七十二院实景图
07
街巷布局·烟火人间
三街九巷的建筑布局串联起生活艺术品味。四顾环绕,移步一景,廊栏曲折,有露有藏。这份特有的生活审美,将理想带回到现实中。
洛带华侨城·七十二院实景图
08
院落孤品·绝版在即
它们是不可复制、不可再生的文化符号及传世基因。然而这方院落已逐渐稀少,这也注定了成为院落“孤品”的事实。
洛带华侨城·七十二院实景图
09
艺术造诣·飞屋脊兽
壁廊上的龙图腾、屋脊瑞兽、抱鼓貔貅等等,皆是归家路上的一种意境,给巷间增添了一份灵动的活力,丰富了生活的愿景。

洛带华侨城·七十二院实景图
10
距自然近·离城不远
坐落于距三环约16公里的东五环,紧邻约1275 km²龙泉山森林公园,更享有文化故地洛带古镇的风采,西临千亩湿地公园、南接千亩花海,有绿意鲜花为伴,与诗意含蓄留白,让生活在如诗画般的美景中呈现,满足生活的渴望,实现人与自然的和谐共处。
既有东进繁华的核心地段,又有难以复刻的院落生活。这样一部迭代进阶的“传世之作”,卖一套,少一套!
【十美合院】已步入收官倒计时!把握最后时机,【院】梦一生美好。

洛带华侨城·七十二院实景图

【十美合院】全新组团即将收官,总价仅需300万元起,即可拥有约217—450㎡独栋合院,最后十套院落终将成绝唱,未来潜力更是不可限量。而此前未能入席者,势必抓住此次机会,否则日后恐将难以释怀。

洛带华侨城·七十二院实景图
因其不可复制的天然属性,注定了再无延续的可能,换句话说,经典或将就此封笔。想要入主院落生活的人们,想要在成都主城寻得一处真正隐于山间的院落,或许真的是最后的机会了。希望,不久的将来,在【十美合院】的落款上,我们有幸能见到您的名字。

洛带华侨城·七十二院实景图
热势加身是对【十美合院】的品质认可
更是对产品理念的肯定
三大建筑派系集合于此
堪称绝无仅有的巅峰著作
独门独院的建筑设计
围合出生活的美好点滴

华侨城·七十二院介绍
七十二院位于国家级AAAA风景旅游区——成都洛带古镇核心位置,并于2013年被认定为“非物质文化遗产”,该项目以客家人五次大迁徙为线索,萃取世界小镇之精华,精选中国建筑的优秀元素,每栋楼都是不可多得的非物质文化遗产。
夏日的七十二院,植物枝繁叶茂,生机勃勃。宽街窄巷的迂回曲折,高树樾荫间的天光高远,勾勒出悠然的小镇生活。七十二院以文化传承街、巷、院里的中国式美好,旨在打造一种属于中国人专属的时尚生活方式。
三街九巷七十二院,院院皆不同。融汇川、闽、海、晋、徽五派建筑风格。名匠古法精工打造,一砖一木,皆精湛厚重,足见中国。

如今的七十二院,多了一丝烟火气。书院、博物馆、艺术馆,各式雅致院落隐于其中。不同于洛带古镇的喧嚣,这里更多给人以从容、安心之感。在这里,不须慕世间繁华声色,院落之中,自有清凉天地。
七十二院实景▲
七十二院内中宣部国务院新闻办立百年巨匠石匾▲
项目荣誉:
全国人居经典 建筑规划双金奖
第十届精瑞科学技术奖 建筑设计优秀奖
中国非物质文化传承奖
商道全国商业地产设计开发、设计之道经典项目案例推介
澳门国际设计联展第二届金莲花杯国际设计大师邀请赛 优秀提名奖
成都市优秀勘察设计奖 原创方案一等奖
☎七十二院售楼处电话028-83516246「来电尊享优惠」☎
☎【七十二院置业经理】:15928896133「微信同步」☎
温馨提示:为了给您提供更高更好的接待服务质量,看房请提前致电售楼处预约!
免责声明:
以上内容仅作为邀约邀请,涉及的图片为部分区域实拍图和美学畅想图,具体内容请以现场公示和合同约定为准;本文部分资料、部分图片来源于网络,如有侵权请联系我们删除。
声明:本文由入驻焦点开放平台的作者撰写,除焦点官方账号外,观点仅代表作者本人,不代表焦点立场。


