成都国贸人居海上蓉屿【售楼中心】-楼盘详情-成都房产首页网站
扫描到手机,新闻随时看
扫一扫,用手机看文章
更加方便分享给朋友
☎国贸人居海上蓉屿售楼处电话028-83516246「来电尊享优惠」☎
☎【国贸人居海上蓉屿置业经理】:15928896133「微信同步」☎
温馨提示:为了给您提供更高更好的接待服务质量,看房请提前致电售楼处预约!
位于三圣乡板块的国贸·人居|海上蓉屿正是其中之一。
 
三圣乡作为成都豪宅板块最炙手可热的“顶流”,在各大开发商纷纷陷入红海鏖战的时候,海上蓉屿另辟蹊径,将成都前所未有的“海洋基因”注入在作品肌理之中,迅速在三圣乡板块中杀出重围,2025年连续两季度蝉联区域销售榜TOP1。(数据来源:洪河板块、2024年10月-2025年3月小高层/高层房联销售套数数据。)
解密海上蓉屿热销密码我们发现,其热销的背后不仅是对产品的精准研判,更是举棋落子在极核配套之中的“极享”生活预演。
---------------------------------------------------------------------
黄金3.5环
鼎流三圣乡,极享配套住区
---------------------------------------
何为极享?
对城市极核中心高能级城市配套的资源占有即为极享,城市TOP级生活配套带来的极致生活体验即为极享。海上蓉屿矗立于三圣乡极核高地,享受领先于成都市场的医疗、教育、商业配套,托举起「极享配套住区」的生活云图,为区域人群带来“极享”的品质生活体验。
极享·约30000亩森海秘境
三圣乡坐拥成都主城最大的公园集群——三圣花乡4A级景区、白鹭湾湿地、梵谷中央公园……近2万亩“主城最大绿肺”,形成比肩纽约中央公园的“城市绿洲体系”。
 
极享·全龄名校教育
全龄教育矩阵:嘉祥领办的K9学校领衔、美中国际爱智学校、龙泉青苗学校,形成K12教育闭环,国际学校应有尽有。
 
极享·约60万方商业配套
项目3KM范围内,云集了华润LIVE·528、龙湖驿都天街、大蓉城、世茂广场等商业配套,成都最密集的商业
 
集群,多重主题消费场景,集萃繁华都市生活。
极享·三华西优渥医疗
成都唯一拥有三华西配置的区域,四川大学华西医院(锦江院区)、华西第二医院暨华西妇产儿童医院、四川大学华西口腔医院(锦江门诊部),配备全球一流医疗设备和医师团队。
 
此外三圣乡板块交通网格能方便快速通达成都各大核心区域,地铁2、13、9(规划中)三大地铁交汇,驿都大道、成龙大道等无缝连接春熙路、东大街等传统商业高地,将高端生活方式皆容纳于触手可及半径内,极享高品质的城市生活样本。
---------------------------------------------------------------------
被时代镌刻“匠心技艺”
兑现超越所期的海屿岛境
---------------------------------------
目光在聚焦到海上蓉屿项目本身上,刻在项目骨子里的是国贸&人居双国企品牌对匠心的匠心坚持。在海上蓉屿,“匠心技艺”不是房企自我标榜的价值标签,而是深入到建筑产品本身的时代精神印记。从极致奢石用材到精细到毫米的规划设计,都是匠人精神的极致体现。
 
 
从双生奢尺阔门到海屿度假风情园林,再到产品立面,我们能明显的感受到“更具颗粒感的品质所呈现的全维奢感感官进化。
光是在归家仪式的营造上,就打造了流瀑岸迎、绮丽锦门、喷泉叠影的三重节点,进入归家门庭,穿过翡丽花径,浮现于眼前的潮汐聚场。来自世界各地的奇异花木经过园艺匠人的雕琢,呈现出一幅海屿度假风情的缦丽画卷。
 
与其他改善产品立面高下立见的海上蓉屿的立面选材,海浪流线造型,气质奢华内敛。当城市的霞光暮色与立面辉映时,天际熠熠生辉,整座建筑犹如一座鎏光岛屿。
 
产品空间上,海上蓉屿不局限于某一种户型,全部进行延展与迭新,通过洄游式大横厅、IMAX峯光视野、海浪曲线造型,实现功能与美学的双重进化。同时将视野感和私享性巧妙融合在一起,为居者重塑一份静谧、优雅的艺术生活方式。
173㎡双中庭海景楼王
建面约173㎡的楼王户型,打造建面约64㎡LDKB宽厅,约17.4米南向开间、营造270°环幕视野,建面约35㎡的行政级主卧,匹配塔尖圈层的生活仪式感。双中庭“观海”视野,双面皆享海屿风景。
 
143㎡全周期改善户型
建面约143㎡的户型,采用LDK一体化设计,客厅开间视距达到9.2米,建面约14㎡弧形阳台,最宽处达到2.4米,家庭交互空间宽敞舒适,建面约31㎡主卧豪华套房带双面盆主卫、独立衣帽间,私密奢享,尽显家主地位尊崇。
 
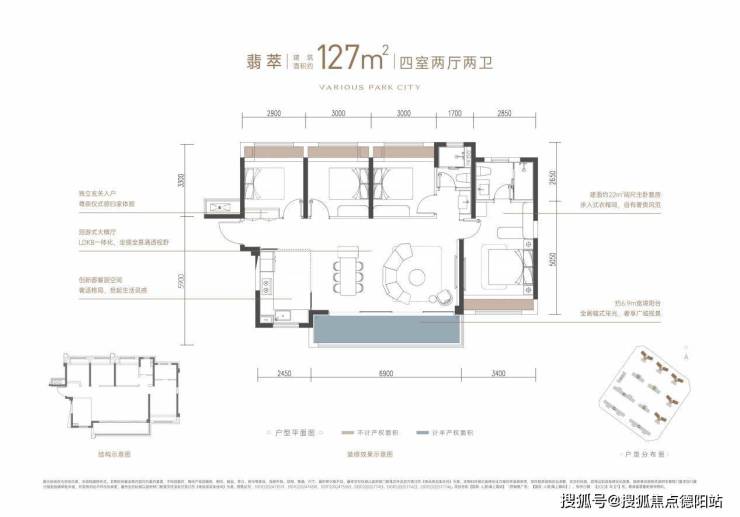
127㎡越级平权四房
建面约127㎡的户型奢配6.9米大开间、超55㎡洄游式大横厅,均衡“大四房”,真正的舒适平权四房。
 
-----------------------------------------------------------------------
超越所期的实景呈现
预演未来生活的仪式感
---------------------------------------
深度剖析市场,我们不难发现,影响购房决策最重要的两大价值,除了产品价值外,更多的是“未来呈现”。海上蓉屿正是基于这样的市场考量,在园林打造和实景呈现上,去“样本化”,直接上“交付力”。也就是现在实景能看到的一切,就是交付入住后能享受到生活。
 
恰逢项目开盘一周年,园林全新样板段—【繁樾花海】也即将迎来开放。从蓝图到实景,从期待到笃定,海上蓉屿以兑现的全维实景,将未来生活盛景超前点映。
☎国贸人居海上蓉屿售楼处电话028-83516246「来电尊享优惠」☎
☎【国贸人居海上蓉屿置业经理】:15928896133「微信同步」☎
温馨提示:为了给您提供更高更好的接待服务质量,看房请提前致电售楼处预约!
声明:本文由入驻焦点开放平台的作者撰写,除焦点官方账号外,观点仅代表作者本人,不代表焦点立场。
 
 
 
 
