成都国宾江山·洺悦天宸/洺悦峯售楼处_预约看房 国宾江山·洺悦天宸/洺悦峯房价_楼盘详情...
扫描到手机,新闻随时看
扫一扫,用手机看文章
更加方便分享给朋友
☎国宾江山·洺悦天宸/洺悦峯售楼处电话028-83516246「来电尊享优惠活动」☎
☎国宾江山·洺悦天宸/洺悦峯【置业经理】:15928896133「微信同步」☎
温馨提示:为了给您提供更高更好的接待服务质量,看房请提前致电售楼处预约!
【有免费看房车接送服务,如需预约,请致电售楼处】
成都现在房产市场三级分化,第一类是核心资产,止跌横盘或小幅上涨都有,补涨的苗头已经出现了,这类资产受大环境影响很大,也是市场风向标,随时被人关注。
第二类是优质产品,表现不一,涨跌幅取决于之前的价格泡沫大小,像北门几个改善楼盘涨跌就很小,没有大涨过自然不会大跌,而以天新为代表的新开发区域、次新盘往往入市价格偏高,止跌压力比较大。
第三类是完全丧失流动性的小区,集中在五城区,只有居住价值,一年成交几套,探讨涨跌意义不大,成交数据比较偏离真实市场情况。
2024年成都新房市场趋向高改化:成交主力面积段为120-144㎡,成交主力总价段为200-300万。其中,建面180㎡以上新房供应总量约为255万方,成交总量约为258万方,为成都新房市场成交次主力。
二手房成首置、首改家庭主阵地:2024年大成都二手房成交主力面积段为90㎡以内,成交次主力面积段为90-120㎡,建面120㎡以内中小户型的成交套数占比超八成,这说明在成都购买二手房市场的家庭,主要住房需求为首次置业或者首次改善;
根据2024年大成都二手房成交价格来看,总价两百万以内的房源成交占比接近九成,这说明活跃在成都二手房市场的家庭购房预期价格普遍在两百万以内。据CRIC数据,11月成都二手房成交规模居全国重点52城之首,远高于上海、北京,约为广州+深圳单月二手房成交总量的1.65倍。
成都二手房成交量之所以能领先于其他城市,一方面是因为卖旧买新的置换群体日渐增多,促使二手房挂牌量持续增加。
关键是成都对四川川内具备天然的人口吸附能力,城市首位度居全国第四,一城GDP占全省36.7%,仅次于银川、西宁、长春三市。
其二是人口流入在全国处于中上水平,考虑到成都已经有超2100万常住城市人口,这个数据也是很亮眼的。
第三是新房大幅度缩量,购买力转向二手市场,特别是总价400万以内这部分需求,在主城供应量正在减少。

对于2025年成都的房产走势,预测如下:5+2区域全年只卖了31宗地,新房库存见底,多个200㎡+户型曝光,大户型成明年新房供应主流。
核心优势???
一、【品牌】
交投电建联行开发,国央企联合背书
✨【区域】
? 交投电建国宾江山-洺悦天宸/洺悦峯位于主城金牛区国宾板块,是区域内唯一一个宋式风格高端低密精装修板式洋房。 作为区域标杆洋房社区,项目打造一梯两户、两梯两户两梯四户现房产品,户户南北通透,户户观景。
【?全系教育】全龄段优越教育资源
项目所处位置十分优质,周边配套均已成熟
?目送式教育:幼儿园:成都十六幼儿、文创四幼;小学:茶店子小学金禧校区
?一流名校:金牛中学(成都树德金泉中学初中部)、树德金泉中学(在建)、成都外国语学校(K12)。
【?超融交通】“两横三纵四地铁”立体交通
?两横:金科南路、北三环;
?三纵:金牛大道、西华大道、蜀西路;
?四地铁:地铁2号线、6号线、9号线(规划中)、12号线(规划中)。
【?完善医疗】近享权威医疗,健康保驾护航
?三级医院:四川省人民医院金牛医院;
?综合性三级甲等医院]:成都三六三医院、成都市西区医院;四川省第五人民医院(预计2026年建设完成)。
【?商业配套】五大成熟商业氛围
?500米内:北京城建熙悦汇
?2km内四大商场:中海国际购物公园、天府艺术公园、8万方天府111、山姆会员店。
?4km内高端商业:15万方龙湖西宸天街。
【⛰生态公园】六大公园,与喧嚣保持距离
天府艺术公园、中海体育公园、两河森林公园、金泉运动公园、犀浦体育公园、成都欢乐谷
实园林景观呈现
宋氏大门
宋氏园林
超宽楼间距
?⭐ 项目必买理由:
? 央企+国企,双政府企业,保驾护航
? 城西国宾,板块核心腹地,
? 成外+茶小,公私双名校,近在咫尺
? 千米范围内,三线地铁环绕
? 区域内唯一宋式园林风格
? 公园里的住宅,环境绝佳,如沐春风
? 小“太古里”商圈,移步即达
? 红色物业,管家式服务
?百亩纯板式洋房小高层
◇ 交通配套 ◇
地铁2号线百草路站距离项目600米,步行5分钟左右即可到达;项目紧邻金牛大道、蜀西路、金粮路,立体交通体系,便捷通达全城。
◇ 商业配套 ◇
与项目一街之隔的22万方国潮院街商业综合体——熙悦汇中心,品牌商家云集,将建成城西小太古里;
只需步行5分钟左右可到达城西商业繁盛、人潮涌动的中海国际购物中心和沃尔玛超市;
开车8分钟左右可到达爱琴海购物中心;
◇ 教育配套 ◇
一街之隔就有机关十六幼儿园、茶店子小学金禧校区;茶店子小学作为金牛区小学教育三驾马车之一,是四川省首批重点小学、成都首批九年义务教育示范学校。
以及成都知名私立学校成都外国语学校——3至18岁全龄教育、教育部批准具有保送资格的16所外国语学校之一,4项语种3大国际班,以特色外语专业,成就海外名校的中国摇篮。
◇ 生态配套 ◇
项目配建5500㎡市政绿地公园,目前已交付使用;车行5分钟左右可以到达金牛区3033亩天府艺术公园;车行10分钟左右可以到达中海体育公园(运动设施非常齐全)和5000亩左右的两河森林公园。
近万亩城市绿地,复兴生活底色。
洺悦天宸项目
项目参数:
占地面积:80亩
总户数:736户
面 积 : 135平/280平底跃
均 价 : 15000-23000元/平
总 价 : 290-360万
物 业 费 : 3.6/平/月
梯 户 比 : 2T2户
总 层 高 : 11-17F
车 位 比 : 1:1.85
容 积 率 : 2.0
交房时间:现房,所见即所得
交房标准:精装带三大件
项目总平
目前在售135平层及280平底跃户型
【1】135㎡ 3+1房2厅2卫
总高17层小高层,纯板式结构,两梯两户,南北通透
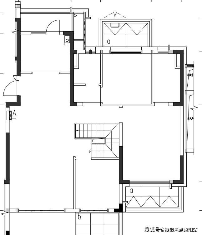
底跃户型图:
3房跃上
跃下:3个大尺度采光井,采光无敌
『2』底跃样板间视频
☎国宾江山·洺悦天宸/洺悦峯售楼处电话028-83516246「来电尊享优惠活动」☎
☎国宾江山·洺悦天宸/洺悦峯【置业经理】:15928896133「微信同步」☎
温馨提示:为了给您提供更高更好的接待服务质量,看房请提前致电售楼处预约!
【有免费看房车接送服务,如需预约,请致电售楼处】
洺悦峯项目
项目参数:
占地面积:18亩
总户数:200户
面 积 : 114平/132平/240平底跃
均 价 : 15000-23000元/平
总 价 : 227-360万
物 业 费 : 3.6/平/月(中海物业)
梯 户 比 : 2T4户
总 层 高 : 17F
车 位 比 : 1:1.5
容 积 率 : 2.0
交房时间:现房,所见即所得
交房标准:清水(顶、底跃)/其余精装(带三大件)
230万即可买进国宾,享受金牛优质教育资源!!!
114三房户型
114三房样板间视频
132四房户型
132四房样板间视频
峯三房底跃上
跃下
因地理位置优越,学校,生活配套齐全,优质公立学校,顶级私立学校环绕,现房投资价值高!!
目前天宸135,三房租金在6000左右!!!
☎国宾江山·洺悦天宸/洺悦峯售楼处电话028-83516246「来电尊享优惠活动」☎
☎国宾江山·洺悦天宸/洺悦峯【置业经理】:15928896133「微信同步」☎
温馨提示:为了给您提供更高更好的接待服务质量,看房请提前致电售楼处预约!
【有免费看房车接送服务,如需预约,请致电售楼处】
声明:本文由入驻焦点开放平台的作者撰写,除焦点官方账号外,观点仅代表作者本人,不代表焦点立场。


