成都华兴锦樾河畔售楼处【2024成都新房二手房成交情况及2025年成都新房走势】
扫描到手机,新闻随时看
扫一扫,用手机看文章
更加方便分享给朋友
02883516246
☎华兴锦樾河畔售楼处电话028-83516246「来电尊享优惠活动」☎
☎【华兴锦樾河畔置业经理】:15928896133「微信同步」☎
温馨提示:为了给您提供更高更好的接待服务质量,看房请提前致电售楼处预约!
【有免费看房车接送服务,如需预约,请致电售楼处】
成都现在房产市场三级分化,第一类是核心资产,止跌横盘或小幅上涨都有,补涨的苗头已经出现了,这类资产受大环境影响很大,也是市场风向标,随时被人关注。
第二类是优质产品,表现不一,涨跌幅取决于之前的价格泡沫大小,像北门几个改善楼盘涨跌就很小,没有大涨过自然不会大跌,而以天新为代表的新开发区域、次新盘往往入市价格偏高,止跌压力比较大。
第三类是完全丧失流动性的小区,集中在五城区,只有居住价值,一年成交几套,探讨涨跌意义不大,成交数据比较偏离真实市场情况。
2024年成都新房市场趋向高改化:成交主力面积段为120-144㎡,成交主力总价段为200-300万。其中,建面180㎡以上新房供应总量约为255万方,成交总量约为258万方,为成都新房市场成交次主力。
二手房成首置、首改家庭主阵地:2024年大成都二手房成交主力面积段为90㎡以内,成交次主力面积段为90-120㎡,建面120㎡以内中小户型的成交套数占比超八成,这说明在成都购买二手房市场的家庭,主要住房需求为首次置业或者首次改善;
根据2024年大成都二手房成交价格来看,总价两百万以内的房源成交占比接近九成,这说明活跃在成都二手房市场的家庭购房预期价格普遍在两百万以内。据CRIC数据,11月成都二手房成交规模居全国重点52城之首,远高于上海、北京,约为广州+深圳单月二手房成交总量的1.65倍。
成都二手房成交量之所以能领先于其他城市,一方面是因为卖旧买新的置换群体日渐增多,促使二手房挂牌量持续增加。
关键是成都对四川川内具备天然的人口吸附能力,城市首位度居全国第四,一城GDP占全省36.7%,仅次于银川、西宁、长春三市。
其二是人口流入在全国处于中上水平,考虑到成都已经有超2100万常住城市人口,这个数据也是很亮眼的。
第三是新房大幅度缩量,购买力转向二手市场,特别是总价400万以内这部分需求,在主城供应量正在减少。

对于2025年成都的房产走势,预测如下:5+2区域全年只卖了31宗地,新房库存见底,多个200㎡+户型曝光,大户型成明年新房供应主流。
项目基础信息:
▪开发商:成都市华兴住宅房地产开发有限公司
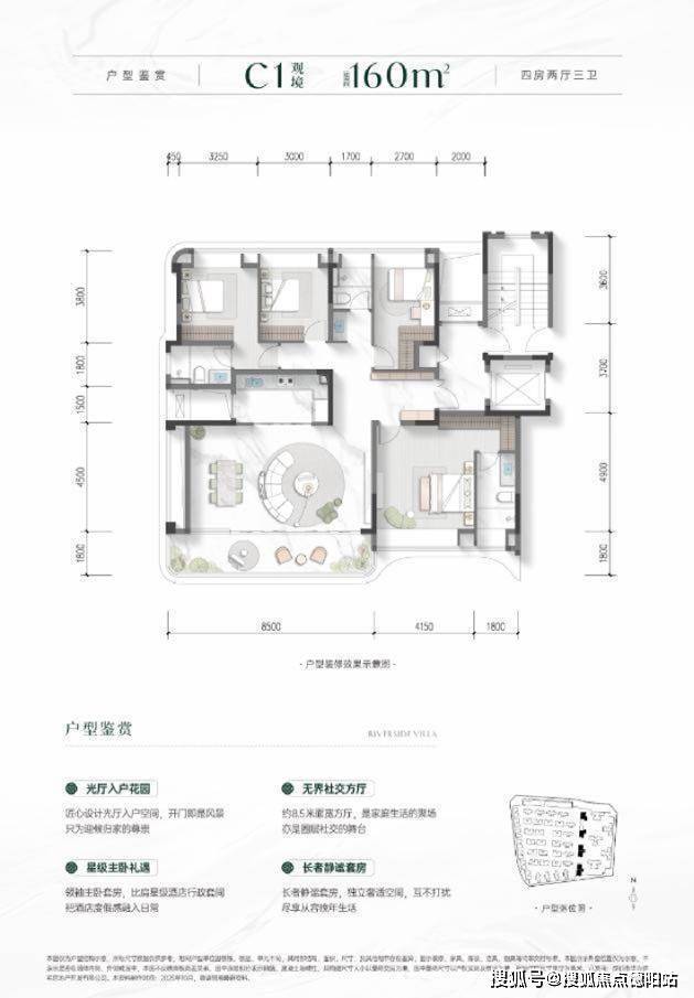
▪在售户型:
高层:99-118-160平
洋房:160平
▪单价:高层:待定
洋房:待定
▪总价:高层总价:待定
洋房总价:待定
▪在售楼栋:
高层1栋
洋房8栋
▪样板间:1栋3楼 高层:99-118㎡样板间
洋房待定
▪总楼栋:共8栋
高层1-5栋(共5栋)
洋房6-8(共3栋)
▪总楼层:高层22-26F
洋房7-8F
▪层高:3.1米
▪梯户比:高层2T3和2T4 洋房1T2
▪交房时间:2027年12月27日
▪公摊:高层 20% 洋房10%
▪朝向:高层西 洋房东西
▪占地:约74亩
▪绿化率:30.04%
▪容积率:1.5%
▪拿地时间:2020年初
▪产权年限:70年
▪总户数:523户
▪物业公司:成都兴华晟物业有限公司
▪物业费:高层3.6元 洋房3.8元
▪车位比:1:1.6
▪装修情况:高层精装 洋房清水
▪付款方式:都可以
▪贷款银行:都可以
▪地铁:5号线,15/22号线规划中
交通
一轨:5号线骑龙站;
八横:天府一到五街、元秀路、华府大道,警校路
四纵:剑南大道、华秀路、益州大道、天府大道
商业
大润发商圈、世豪广场商圈、银泰城商圈、伊藤洋华堂商圈、港汇天地
五大繁华商圈环绕。
学校
怡心第一实验学校(直线距离)
成都教科院附属学校、成都七中高新校区等、成都美视国际学校、成都外国语学校等公立、私立优资学府环伺。
医疗
项目邻四川大学华西医院高新院区,
预计2026年可投入运营。
成都市第三人民医院高新院区(已批复),
为每一位业主家人的健康保驾护航。
华兴·锦樾河畔
☎华兴锦樾河畔售楼处电话028-83516246「来电尊享优惠活动」☎
☎【华兴锦樾河畔置业经理】:15928896133「微信同步」☎
温馨提示:为了给您提供更高更好的接待服务质量,看房请提前致电售楼处预约!
【有免费看房车接送服务,如需预约,请致电售楼处】
声明:本文由入驻焦点开放平台的作者撰写,除焦点官方账号外,观点仅代表作者本人,不代表焦点立场。


