成都大华湖畔里【售楼中心】-楼盘详情-9月降息后,成都楼市的走势

搜狐焦点德阳站 2025-09-30 08:05:00
用手机看
扫描到手机,新闻随时看

扫一扫,用手机看文章
更加方便分享给朋友

☎售楼处电话028-83516246「来电尊享优惠活动」☎ ☎【置业经理】:15928896133「微信同步」☎ 温馨提示:为了给您提供更高更好的接待服务质量,看房请提前致电售楼处预约! 【有免费看房车接送服务,如需预约,请致电售楼处】

☎售楼处电话028-83516246「来电尊享优惠活动」☎

☎【置业经理】:15928896133「微信同步」☎

温馨提示:为了给您提供更高更好的接待服务质量,看房请提前致电售楼处预约!

【有免费看房车接送服务,如需预约,请致电售楼处】

成都为什么在全国房地产市场异军突起,遥遥领先?

天下未治蜀先治,天下未涨蜀先涨。西南,是中国的大后方,成都,就是这个大后方的核心。

从地理上来说,武汉往西的中国地域,大部分被高原丘陵和荒漠覆盖,气候温和又适宜人居的,除了狭长的关中平原,只有天府之国的四川盆地。

因此,成都除了吸附川内的城市,还包括甘肃、新疆、云南、贵州、重庆等地。虽然这些地方也不是中国富裕省份,但掏空6个钱包,举家支持,也是不小的购买力。

9月美联储降息后,成都的楼市出现了一些新的变化。我为你梳理了当前的情况和可能的发展趋势,希望能帮助你做判断。

成都楼市在降息后的主要动态:

方面 当前状况 影响因素与趋势

房贷利率 首套房贷利率执行3.0% 未来仍有下调空间,5年期LPR若再降30基点,利率或首次触及2.5%区间

购房成本 以100万元30年期贷款计算,月供可减少近700元,总利息节省25万元 月供减少,购房负担降低

新房供应 9月预计23个项目超1500套新房入市,成华区是供应主力 核心区土地供应缩减,房企转向产品升级(如层高突破3.3米,全屋智能精装)

市场热度 9月前两周项目平均周度来访量环比上升22%,认购量环比上升40%,客户转化率达4.8% 核心地段改善型需求韧性较强

市场分化 核心区域(如金融城板块)热度较高;远郊区域(如龙泉驿、温江)二手房挂牌量激增,部分房东降价8%-10% 购房逻辑迭代,更看重三甲医院、地铁TOD、物业响应等硬指标

外资流入 外资加速布局中国核心城市房地产,偏好一线和强二线城市(如成都)的核心资产 外资正从“抄底住宅”转向“价值持有”策略,通过REITs、私募基金等形式参与

房企融资 美联储降息降低了房企美元债融资成本 融资环境改善,但房企整体债务压力仍未根本缓解,行业分化加剧,头部房企优势更明显

“金九银十”成色 市场热度有所回升,但并非所有项目都能普享市场回暖 房企推盘和营销力度提升,但楼市行情仍受宏观经济等多因素影响,新政刺激可能以短期脉冲效果为主

? 给购房者的建议

· 对于刚需和改善型购房者:当前降息降低了购房成本,是一个值得关注的窗口期。但更重要的是根据自身需求和经济实力做出决策。

· 在区域选择上,应优先考虑核心地段,这些区域通常有更好的配套设施和更强的抗风险能力。

· 对于有“卖旧买新”打算的改善型客户,当前二手房市场活跃,可利用这个机会加快置换效率。

· 投资需格外谨慎。虽然利率较低,但“房住不炒”的政策基调没有改变。市场分化明显,非核心区域的房产流动性可能较差,未来升值空间也相对有限。

? 总结一下

9月降息后的成都楼市,整体有望温和复苏,但分化是主旋律。核心区优质改善项目可能保持较高热度,而远郊区域则继续面临压力。

未来的成都楼市,产品力本身、地段价值、配套资源将越来越成为决定性的因素。关注长期价值,谨慎做出决策,总是对的。

【大华湖畔里】据东安湖中央活力区 CAZ核心位置,项目一线瞰湖高阶产品,引领区域高端商业和楼宇总部发展。首推智慧资产:建面39-59㎡4.2米幻变空间,99㎡-119云墅空间,139m2-336㎡天际云邸。

目前在售商办房源,商办LOFT主推建面约39-59m²,总价36-70万。大平层主推建面约139-274m²,总价280-480万。预计2024年12月清水交付。

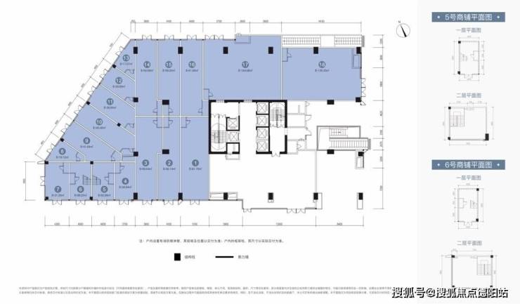
商铺产品信息

面积区间:约17-319㎡

价格区间:88万-900万

总户数:59户

楼层:2-1#楼1层/2-2#楼1层/1#楼1层

层高:5.9米

装修情况:清水

物业费:8元/㎡

付款方式:按揭/全款

交付时间:2024年10月31日

--------------

商办产品(loft)信息

面积区间:2#楼约39-59㎡/1#楼约47-51㎡

价格区间:9500元/㎡—12643元/㎡;总价39万起

梯户比:2#楼6T23户/1#楼5T19户

总户数:279

楼层:2#楼14层-21层/1#楼14-18层

层高:4.2米

装修情况:清水

物业费:4.5元/㎡

付款方式:按揭/全款

水电气详情:三通

交付时间:2024年10月31日

-----------------------------

商办产品(大平层)信息

面积区间:约139-336㎡

价格区间:179万-480万

梯户比:6T4户

总户数:129户

楼层:2-1#楼22层-25层,2-2#楼2层-27层

层高:3.6米

装修情况:清水

物业费:4.5元/㎡

付款方式:按揭/全款

水电气详情:三通

交付时间:2024年10月31日

区域战略:

东进战略,国家战略,成渝双城经济圈、世界大学生夏季运动会2023年7月在东安新城召开,汇聚世界目光,打开成都未来发展空间

规划配套:

5500亩东安湖生态公园、约1910亩驿马河公园、约32平方公里锦绣天府、全国最大城市森林公园龙泉山森林公园、东安阁酒店、木棉花酒店、图书馆、大剧院、新闻中心等配套环伺;大华·湖畔里占据东安湖中央活力区CAZ核芯位置,项目一线瞰湖高阶产品,引领区域高端商业和楼宇总部发展

交通:地铁2号线、20号线(规划中)、25号线(规划中)、桃都大道、湖低隧道、公交L11等,快速路+隧道+地铁+公交,四层级复合交通枢纽

学校:北大紫境幼儿园、启元幼儿园、向阳桥幼儿园、香港博瀚幼儿园、龙泉驿区第五小学校、经开区实验小学校、向阳桥小学、龙泉驿区第七小学校、成都龙泉二中、向阳桥中学、经开区实验中学、成都七中(东安湖校区)等

商圈:吾悦广场、龙泉万达、龙湖天街(建设中)、万象系商业综合体、世茂广场,永辉超市、沃尔玛等

医院:龙泉第一人民医院华西分院、龙泉妇幼保健院、四川省第三人民医院、龙泉驿区中医医院、华西医院(锦江分院)

公园:约5500亩东安湖生态公园、约1910亩驿马河公园、约32平方公里锦绣天府(龙泉欢乐田园)、龙泉山城市森林公园

其他:东安湖10.2公里环湖跑道、图书馆、大剧院、市民生活中心、科技馆、艺术馆、多功能体育馆、游泳馆以及博物馆

项目亮点:

1、项目位于东安新城CAZ中央活力区国际商务中心,东安新城践行公园城市理念,打造一座中国风范、蜀川魅力、成都特色的公园城市。目前,CAZ中央活力区已入驻威马汽车全球研发中心、西门子中国研究院、浙江大华智慧城等集团总部,成为成都新一代高精尖的商务前沿中心,除此,东安阁七星级酒店、五星级木棉花酒店、五星级万豪酒店,都汇聚在东安新城。本项目也将作为引领区域高端商务和楼宇总部发展的重要承载地。

2、既享受CAZ中央活力区的高规格、又享受城市CBD的生活配套、完善的交通、医疗、教育、商城所见即所得,约5500亩东安湖公园、约1910亩驿马河公园、背靠全球最大龙泉山城市森林公园

3、五星级入户大堂,地面全大理石水刀拼花、墙面敢挂石材,镜面不锈钢硬包及金属镜面造型,菁装首层入户大堂,入户大堂约6米挑高,定制水晶吊灯,精雕细琢入户仪仗,用心铺排,动静相间营造极具尊贵的舒适体验

4、引鉴新加坡建筑理念,启幕城市窗格。外立面整体采用现代简约风格,以灰色、白色为主基调,大面积运用玻璃幕墙,呈现共建化立面高级感;部分外立面则以玻璃幕墙搭配石材、线条与建筑形成有意思的城市窗格,达到了一种丰富、有序、统一的姿态,形成强烈的品质感

5、区域稀缺产品、4.2米幻变空间、一线瞰湖区域、1.5公里人口超过10万+,知名集团总部、甲级写字楼具备丰富客群

6、德国蒂森克虏伯电梯,一线匹配一线。1000KG超大容量,速度达到2.5米/秒,2.3米电梯门,从细节处匹配业主的大气格局

7、一环五庭,六大景观节点,采用特定主题,打造个性化架空层,覆盖全龄日常需求,书写摩登都会美好理想

一环:【曼云逐欢】(特色商业街+网红打卡公园);五庭:【都市之芯)(归家展示区)、【镜水云庭】(中庭会客区)、【林趣乐园】(全民健身区)、【轻氧沐林】(中庭会客区)、【林氧浮影】(宅间花园)

8、成都宝之源物业服务有限公司作为成都高端服务的物业样本,是一家从事物业管理、房地产经纪、房地产咨询等业务的公司。全天候24小时管家服务,12小时礼宾服务,宝之源物业让服务再一次被重新定义

建面约17-318㎡商业2-1号楼一层商业平面图

2-2号楼一层商业平面图

1号楼一层商业平面图

建面约39-59㎡公寓

2#14一21层平面图

loft【多样人生的灵动创变场域】

突破空间束缚,承载N+1种美好可能

科学动线规划,动静交互的极致体验

日常功能完备,礼遇塔尖菁英峯层

幻变双层天地,一半是静谧休憩场,一半是事业梦工厂

建面约139-336㎡天际行宫(大平层)

☎售楼处电话028-83516246「来电尊享优惠活动」☎

☎【置业经理】:15928896133「微信同步」☎

温馨提示:为了给您提供更高更好的接待服务质量,看房请提前致电售楼处预约!

【有免费看房车接送服务,如需预约,请致电售楼处】

免责声明:

以上内容仅作为邀约邀请,涉及的图片为部分区域实拍图和美学畅想图,具体内容请以现场公示和合同约定为准;本资料部分图片来源于网络,如有侵权请联系我们删除。

声明:本文由入驻焦点开放平台的作者撰写,除焦点官方账号外,观点仅代表作者本人,不代表焦点立场。