成都华侨城七十二院【售楼中心】-楼盘详情-来电一对一接待-尊享优惠-现场预约看房
扫描到手机,新闻随时看
扫一扫,用手机看文章
更加方便分享给朋友
☎售楼处电话028-83516246「来电尊享优惠活动」☎
☎【置业经理】:15928896133「微信同步」☎
温馨提示:为了给您提供更高更好的接待服务质量,看房请提前致电售楼处预约!
【有免费看房车接送服务,如需预约,请致电售楼处】
免责声明:(本文章所用信息图片来源于网络,如有侵权请联系本网站及时删除)
成都为什么在全国房地产市场异军突起,遥遥领先?
天下未治蜀先治,天下未涨蜀先涨。西南,是中国的大后方,成都,就是这个大后方的核心。
从地理上来说,武汉往西的中国地域,大部分被高原丘陵和荒漠覆盖,气候温和又适宜人居的,除了狭长的关中平原,只有天府之国的四川盆地。
因此,成都除了吸附川内的城市,还包括甘肃、新疆、云南、贵州、重庆等地。虽然这些地方也不是中国富裕省份,但掏空6个钱包,举家支持,也是不小的购买力。
9月美联储降息后,成都的楼市出现了一些新的变化。我为你梳理了当前的情况和可能的发展趋势,希望能帮助你做判断。
成都楼市在降息后的主要动态:
方面 当前状况 影响因素与趋势
房贷利率 首套房贷利率执行3.0% 未来仍有下调空间,5年期LPR若再降30基点,利率或首次触及2.5%区间
购房成本 以100万元30年期贷款计算,月供可减少近700元,总利息节省25万元 月供减少,购房负担降低
新房供应 9月预计23个项目超1500套新房入市,成华区是供应主力 核心区土地供应缩减,房企转向产品升级(如层高突破3.3米,全屋智能精装)
市场热度 9月前两周项目平均周度来访量环比上升22%,认购量环比上升40%,客户转化率达4.8% 核心地段改善型需求韧性较强
市场分化 核心区域(如金融城板块)热度较高;远郊区域(如龙泉驿、温江)二手房挂牌量激增,部分房东降价8%-10% 购房逻辑迭代,更看重三甲医院、地铁TOD、物业响应等硬指标
外资流入 外资加速布局中国核心城市房地产,偏好一线和强二线城市(如成都)的核心资产 外资正从“抄底住宅”转向“价值持有”策略,通过REITs、私募基金等形式参与
房企融资 美联储降息降低了房企美元债融资成本 融资环境改善,但房企整体债务压力仍未根本缓解,行业分化加剧,头部房企优势更明显
“金九银十”成色 市场热度有所回升,但并非所有项目都能普享市场回暖 房企推盘和营销力度提升,但楼市行情仍受宏观经济等多因素影响,新政刺激可能以短期脉冲效果为主
? 给购房者的建议
· 对于刚需和改善型购房者:当前降息降低了购房成本,是一个值得关注的窗口期。但更重要的是根据自身需求和经济实力做出决策。
· 在区域选择上,应优先考虑核心地段,这些区域通常有更好的配套设施和更强的抗风险能力。
· 对于有“卖旧买新”打算的改善型客户,当前二手房市场活跃,可利用这个机会加快置换效率。
· 投资需格外谨慎。虽然利率较低,但“房住不炒”的政策基调没有改变。市场分化明显,非核心区域的房产流动性可能较差,未来升值空间也相对有限。
总结一下
9月降息后的成都楼市,整体有望温和复苏,但分化是主旋律。核心区优质改善项目可能保持较高热度,而远郊区域则继续面临压力。
未来的成都楼市,产品力本身、地段价值、配套资源将越来越成为决定性的因素。关注长期价值,谨慎做出决策,总是对的。
背依龙泉山,中国建筑的七十二院
【华侨城七十二院】择址成渝双城经济圈的纽带——龙泉驿,依托东进红利,坐拥全维生活配套的同时,依托龙泉山国家森林公园的生态底蕴为背景,于“离尘不离城”的诗意格局之中,聚人文芳华。独创三街九巷格局,顺遂国人成家、社交、传承等置业需求。汇聚川闽海晋徽五大派系美学,每一栋皆为藏品级定制:一砖一瓦,一榫一卯,一转一折,处处凝聚着匠人文脉的精魄。

华侨城·七十二院实景图
续写精魂,川派建筑的博物馆
在一方国风院墅,永序世家门风的背景下,【华侨城七十二院】提取川派建筑发展脉络,从川派民居、川派院落、川派会馆三大建筑时间发展维度,于屋脊处、于厅堂上、于细节处的雕梁工艺间,重现川派建筑史,让喜爱者于建筑中跨时空感知华夏大家生活。

华侨城·七十二院实景图
续写昨日川派会馆辉煌
始于明代会馆建筑风,四川地区受到对外贸易活跃的影响,川派建筑结合会馆形成了庭院、大厅、正厅,东西厢房的对称布局
从大厅接待、娱乐社交到正厅厢房办公旅居的分区递进生活模式之外,在会馆庭院内大多叠石、引水,种植各种花草树木,形成会馆建筑与园林构景相结合的布局。

华侨城·七十二院实景图
青瓦白墙的川派民居
从建筑的材质和样式来看,川西民居结构通常采用的“穿斗”结构,早在汉代就已出现,是中国古代木制建筑三大结构之一,再进一步演变为地龙墙、高勒脚、木地板、四周设通风口的庭园式民居,体现了中国传统建筑的科学和美学,恰如其分地为川西先民提供舒适美观的栖居之所。

华侨城·七十二院实景图
自然隐逸的川派院落
川西院子既显气宇轩昂之势,亦藏碧玉小家之幽。此院吸取传统川西建筑精髓,小青瓦、薄封檐,门窗木构雕而不画建筑特点
更在院内原植银杏香樟数株,玉兰绽放,繁花清香,静坐院内观四时枯荣,以花做篱笆,诗意为墙,无车马喧嚣,恍如隔世。

洛带华侨城·七十二院实景图
项目简介:
洛带华侨城·七十二院,东靠龙泉山城市森林公园,北接国家4A级景区洛带古镇,西面洛水湿地公园,南临千亩蔚然花海
项目以客家人历史上五次大迁徙为文化脉络,精选中国建筑的优秀元素,汇聚闵、海、川、晋、徽五大建筑派系院落,随着街、巷、院的空间变化,让中国的传统建筑艺术得以展现

基础信息:
项目位置:成都市龙泉驿区洛带三峨街999号
占地面积:约200亩
物业公司:华侨城物业(集团)有限公司成都分公司
物业费:5元/平米/月
容积率:0.7
项目区位图:
周边配套:
交通:
城市主干道:成都五环路(成环路)、成洛大道、渝蓉高速、蜀都大道等?
公交:219路、850路、K7快速公交等十余条公交线路?
距离双流机场、天府国际机场约40km,40分钟即可起飞全球✈
生态:
龙泉山城市森林公园、洛水湿地公园、蔚然花海(4A级景区)
学校:
龙泉驿区洛带第二幼儿园、洛带小学、洛带中学、成都康礼·克雷格公学(建设中)
医院:
龙泉驿区第二人民医院、洛带公立卫生院、龙泉驿区第一人民医院、龙泉驿区妇幼保健院、四川省人民医院东院
休闲:
洛带古镇(4A级景区)、中国艺库商业街
产品介绍:
闵派:自持商业院落,面积段30-300㎡,打造城市商业步行街
海派:自持商业院落,面积段300-3000㎡,打造中法特色风情街
川派:在售合院,面积段200-500㎡,均价约17000元/平,总价段300-900万元
晋派:在售合院,面积段400-600㎡,均价约17800元/平,总价段680-1000万元
徽派:在售联排,面积段210-350㎡,均价约15000元/平,总价段330-520万元
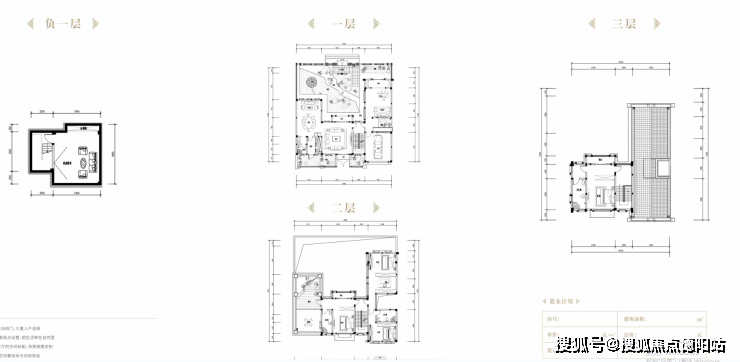
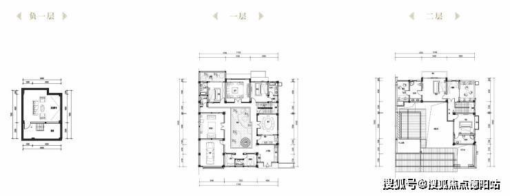
户型鉴赏:
川派:明月府 9-2#(建筑面积373.17㎡,实得面积约513㎡)
川派:南风院 6-3#(建筑面积369.13㎡,实得面积约513㎡)
川派:锦云府 13-6#(建筑面积327.5㎡,实得面积约435.66㎡)

川派:烟霞堂 6-2#(建筑面积469.43㎡,实得面积约698.88㎡)

园林景观

【十美合院】集合三大建筑特色【川派、晋派、徽派】,仅10套的体量,足以体现出产品的稀有性,全实景现房交付,切身感受院落围合的居住理念,倾听来自华夏文脉的故事留存于院落之中。
洛带华侨城·七十二院实景图
洛带华侨城·七十二院作为中国院落的高光代表,花费了数年的时间用来打磨产品,不断将理想化为现实。在全新组团【十美合院】中完美体现了匠心精神,三大派系符号糅合其中——川派的清雅灵动、晋派的浑厚大气、徽派的儒雅清丽。众多“院落粉”们欣喜若狂,【十美合院】不管是价值潜力还是生活尺度,都足以成为你的必买理由。



洛带华侨城·七十二院实景图

01
实力品牌·匠心构筑
央企华侨城集团三十六载筑梦前行,连续11年获得国务院国资委年度业绩考核A级评价,截至2021年末,总资产规模近7000亿元。央企华侨城集团始终以开拓者的角色,与城市共同发展,为每座城市开启全新美好。
02
卓越匠心·荣耀加冕
在2021中国房产风云榜成都站颁奖中,洛带华侨城·七十二院斩获“2021年度卓越匠心楼盘”奖项。万众瞩目,皆为上品!
洛带华侨城·七十二院实景图
03
三大派系·院院臻品
川派:小青瓦、薄封檐,婉约灵动山水里。
川派建筑的气质蕴涵,依附于瓦檐、石墩上,形态各异的花卉、飞鸟、图腾,成为独有的符号文化。



洛带华侨城·七十二院实景图
晋派:高墙深院气磅礴,四水归堂大开阖。
晋派建筑凝存着晋商的精神理念,展现在斗拱飞檐、黑白高墙上,它们相互衬托形成显著的文化符号。

洛带华侨城·七十二院实景图
徽派:白墙青瓦马头墙,肥梁瘦柱内天井。
徽派建筑里的人事浮沉留存于千姿百态的马头墙下,一方天地间,重现美好生活,安放静谧的心灵。


洛带华侨城·七十二院实景图
04
独栋独院·院院不同
约217-450m²独栋合院,围合而造,一户一字号,一院一生活,从设计理念到建筑规划,都沿袭了对传统院落的生活情节。

洛带华侨城·七十二院实景图
05
高性价比·此后难有
总价仅300万元起,入主成都主城独栋,院落主人可根据不同的喜好挑选派系,每一席都是流芳百世的臻品。

洛带华侨城·七十二院实景图
06
皇家园林·辅佐院落
五步一院,十步一巷,廊间曼妙,斗拱飞檐,以皇家园林为蓝本打造,横梁、立柱、大门,以古都名宅为标准,一砖一木皆为名匠古法精造,一院一字号,重现华夏人文街巷。
洛带华侨城·七十二院实景图
07
街巷布局·烟火人间
三街九巷的建筑布局串联起生活艺术品味。四顾环绕,移步一景,廊栏曲折,有露有藏。这份特有的生活审美,将理想带回到现实中。
洛带华侨城·七十二院实景图
08
院落孤品·绝版在即
它们是不可复制、不可再生的文化符号及传世基因。然而这方院落已逐渐稀少,这也注定了成为院落“孤品”的事实。
洛带华侨城·七十二院实景图
09
艺术造诣·飞屋脊兽
壁廊上的龙图腾、屋脊瑞兽、抱鼓貔貅等等,皆是归家路上的一种意境,给巷间增添了一份灵动的活力,丰富了生活的愿景。

洛带华侨城·七十二院实景图
10
距自然近·离城不远
坐落于距三环约16公里的东五环,紧邻约1275 km²龙泉山森林公园,更享有文化故地洛带古镇的风采,西临千亩湿地公园、南接千亩花海,有绿意鲜花为伴,与诗意含蓄留白,让生活在如诗画般的美景中呈现,满足生活的渴望,实现人与自然的和谐共处。
既有东进繁华的核心地段,又有难以复刻的院落生活。这样一部迭代进阶的“传世之作”,卖一套,少一套!
【十美合院】已步入收官倒计时!把握最后时机,【院】梦一生美好。

洛带华侨城·七十二院实景图

【十美合院】全新组团即将收官,总价仅需300万元起,即可拥有约217—450㎡独栋合院,最后十套院落终将成绝唱,未来潜力更是不可限量。而此前未能入席者,势必抓住此次机会,否则日后恐将难以释怀。

洛带华侨城·七十二院实景图
因其不可复制的天然属性,注定了再无延续的可能,换句话说,经典或将就此封笔。想要入主院落生活的人们,想要在成都主城寻得一处真正隐于山间的院落,或许真的是最后的机会了。希望,不久的将来,在【十美合院】的落款上,我们有幸能见到您的名字。

洛带华侨城·七十二院实景图
热势加身是对【十美合院】的品质认可
更是对产品理念的肯定
三大建筑派系集合于此
堪称绝无仅有的巅峰著作
独门独院的建筑设计
围合出生活的美好点滴

华侨城·七十二院介绍
七十二院位于国家级AAAA风景旅游区——成都洛带古镇核心位置,并于2013年被认定为“非物质文化遗产”,该项目以客家人五次大迁徙为线索,萃取世界小镇之精华,精选中国建筑的优秀元素,每栋楼都是不可多得的非物质文化遗产。
夏日的七十二院,植物枝繁叶茂,生机勃勃。宽街窄巷的迂回曲折,高树樾荫间的天光高远,勾勒出悠然的小镇生活。七十二院以文化传承街、巷、院里的中国式美好,旨在打造一种属于中国人专属的时尚生活方式。
三街九巷七十二院,院院皆不同。融汇川、闽、海、晋、徽五派建筑风格。名匠古法精工打造,一砖一木,皆精湛厚重,足见中国。

如今的七十二院,多了一丝烟火气。书院、博物馆、艺术馆,各式雅致院落隐于其中。不同于洛带古镇的喧嚣,这里更多给人以从容、安心之感。在这里,不须慕世间繁华声色,院落之中,自有清凉天地。
七十二院实景▲
七十二院内中宣部国务院新闻办立百年巨匠石匾▲
项目荣誉:
全国人居经典 建筑规划双金奖
第十届精瑞科学技术奖 建筑设计优秀奖
中国非物质文化传承奖
商道全国商业地产设计开发、设计之道经典项目案例推介
澳门国际设计联展第二届金莲花杯国际设计大师邀请赛 优秀提名奖
成都市优秀勘察设计奖 原创方案一等奖
☎七十二院售楼处电话028-83516246「来电尊享优惠」☎
☎【七十二院置业经理】:15928896133「微信同步」☎
温馨提示:为了给您提供更高更好的接待服务质量,看房请提前致电售楼处预约!
免责声明:
以上内容仅作为邀约邀请,涉及的图片为部分区域实拍图和美学畅想图,具体内容请以现场公示和合同约定为准;本文部分资料、部分图片来源于网络,如有侵权请联系我们删除。
声明:本文由入驻焦点开放平台的作者撰写,除焦点官方账号外,观点仅代表作者本人,不代表焦点立场。


