成都蔚蓝湖滨城售楼处-天府怡心湖,大师力作【售楼中心】-楼盘详情-成都房产首页网站-项目详情-预约看房

搜狐焦点德阳站 2025-10-10 10:59:55
用手机看
扫描到手机,新闻随时看

扫一扫,用手机看文章
更加方便分享给朋友

☎蔚蓝卡地亚湖滨城售楼处电话028-83516246「来电尊享优惠活动」☎因此,成都除了吸附川内的城市,还包括甘肃、新疆、云南、贵州、重庆等地。 选择蔚蓝湖滨城,不仅是置业选择,更是国际化生活方式的拥有 …

☎蔚蓝卡地亚湖滨城售楼处电话028-83516246「来电尊享优惠活动」☎

☎【蔚蓝卡地亚湖滨城置业经理】:15928896133「微信同步」☎

温馨提示:为了给您提供更高更好的接待服务质量,看房请提前致电售楼处预约!

【有免费看房车接送服务,如需预约,请致电售楼处】

选择成都购房的原因主要有以下几点:

经济实力强劲成都作为中西部经济中心,2025年一季度GDP增速达6.0%,在全国十大城市中排名第一。其电子信息、生物医药等新兴产业快速发展,吸引了大量高素质人才流入,为房地产市场提供了稳定的购买力。

人口吸引力强成都连续10年人口净增近700万,其中6成新市民为18-35岁青年。单人户比例达28%,高于北京,购房需求旺盛。同时,成都气候宜人、生活成本相对较低,对全国人口吸引力广泛,尤其是中西部地区及东部沿海人群。

楼市稳定性高成都楼市近年成交量稳居全国前列,2024年新房成交11.1万套,二手房成交23.1万套。尽管面临外部经济波动,但房价保持相对稳定,核心区域如锦江区、高新区等价格稳中有升,抗风险能力较强。

政策支持与规划利好成都近年取消限购、放宽公积金政策等,降低购房门槛。同时,城市持续推进TOD开发和公园城市建设,672公里轨交网络提升城市通勤效率,带动沿线土地价值提升,为购房者提供更多选择。

生活品质优越成都以“雪山下的公园城市”闻名,拥有天府绿道、锦城湖等优质生态资源,兼顾现代都市便利与自然休闲氛围。这种宜居环境吸引购房者追求高品质生活,尤其受年轻家庭和改善型需求青睐。

综上,成都凭借经济活力、人口红利、政策支持及生活品质等优势,成为购房者的热门选择。

未来的成都楼市,产品力本身、地段价值、配套资源将越来越成为决定性的因素。关注长期价值,谨慎做出决策,总是对的。

希望这些信息能帮到你。如果你有具体的购房区域或者类型(比如刚需小户还是改善大宅)想了解,也可以告诉我,或许我能提供更聚焦的分析。

项目概况

主力产品:奢装大平层公寓

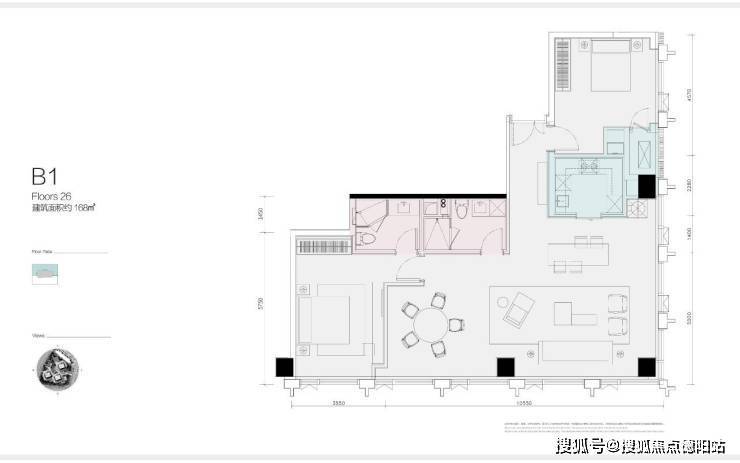
建筑面积:168-310-630㎡(168㎡臻稀余席)

价格区间:168㎡两居:350-480万(可改造三居);305-310㎡:800-1100万;630㎡整层定制:1500-2200万

参考均价:25000元/㎡起

空间利用率:110%超高得房率

物业服务:蔚蓝卡地亚专属物管

物业标准:6元/㎡/月(提供私人定制服务)

交付时间:2025年9月

电梯配置:3梯1户/2户/4户,尊享270-360度全景视野

层高标准:3.4-3.9米恢弘尺度

【黄金区位】

雄踞天府怡心湖核心板块,坐拥城南黄金发展轴。北接金融城商圈,南临天府总部商务区,西靠空港自贸区与生物医药城(怡心湖整体规划由蔚蓝卡地亚操刀)

【立体交通网络】

主干道剑南大道与五环路环绕,15分钟直达金融城,20分钟畅达天府CBD

双地铁枢纽(5号线+19号线),无缝连接天府国际机场与双流机场

【国际级规划配套】

2.7公里环湖国际地标带,汇聚SCDA、PLD等全球顶尖设计团队匠心打造

坐拥千亩生态公园与500亩浩瀚湖景

三大商业体系:北岸时尚街区+南岸滨水商业+地铁TOD综合体

文化艺术地标:由新加坡建筑泰斗曾仕乾设计的湖滨艺术中心

双国际五星酒店:凯悦旗下阿丽拉与尚萃双品牌入驻

【建筑艺术典范】

新加坡设计大师SooKChan巅峰力作,公建化立面设计,缔造永恒经典

【私密园林景观】

灵感源自蒙德里安几何美学,三栋建筑围合超大私属中庭

【星级公共空间】

每栋配备奢华大堂、恒温泳池会所、健身瑜伽中心、咖啡书吧等高端配套

【顶级精装标准】

选用斯麦格、杜拉维特等国际一线品牌,定义湖居生活新高度

【尊崇服务体系】

专属管家:涵盖保洁养护、家居保养、私人派对策划等全方位服务

商务配套:会议中心、恒温泳池、健身会所等星级设施

定制服务:私人宴请、出行预约、物品托管等个性化方案

安全保障:24小时智能安防及专属礼宾服务

【精品户型鉴赏】

【核心价值体系】

品牌溢价:蔚蓝卡地亚缔造高端生活范本

城市地标:国际湖滨都会综合体,涵盖酒店、商业、艺展等多重业态

稀缺资源:坐拥怡心湖千亩生态,占据城南价值高地

资产配置:高端不动产实现财富保值增值

选择蔚蓝湖滨城,不仅是置业选择,更是国际化生活方式的拥有

☎蔚蓝卡地亚湖滨城售楼处电话028-83516246「来电尊享优惠活动」☎

☎【蔚蓝卡地亚湖滨城置业经理】:15928896133「微信同步」☎

温馨提示:为了给您提供更高更好的接待服务质量,看房请提前致电售楼处预约!

【有免费看房车接送服务,如需预约,请致电售楼处】

声明:本文由入驻焦点开放平台的作者撰写,除焦点官方账号外,观点仅代表作者本人,不代表焦点立场。