2025成都龙光天瀛售楼处电话地址「天府新区兴隆湖东侧,单价7499起买龙光天瀛70年精装跃层」龙光天瀛房价?成都龙光天瀛值得买吗?
扫描到手机,新闻随时看
扫一扫,用手机看文章
更加方便分享给朋友
02883516246
 
 
 
 
天府新区兴隆湖东侧,单价7499起买龙光天瀛70年精装跃层
一、项目基本信息
面积:212~244平精装跃层
买一层送一层
总价:159万起
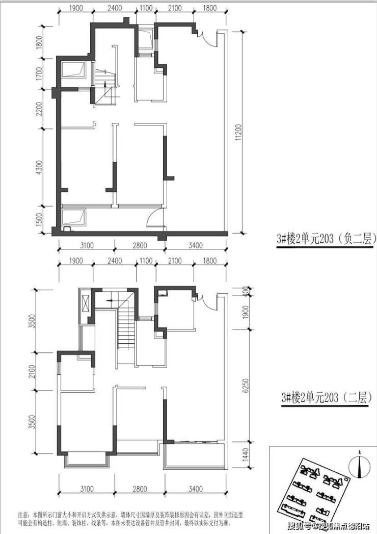
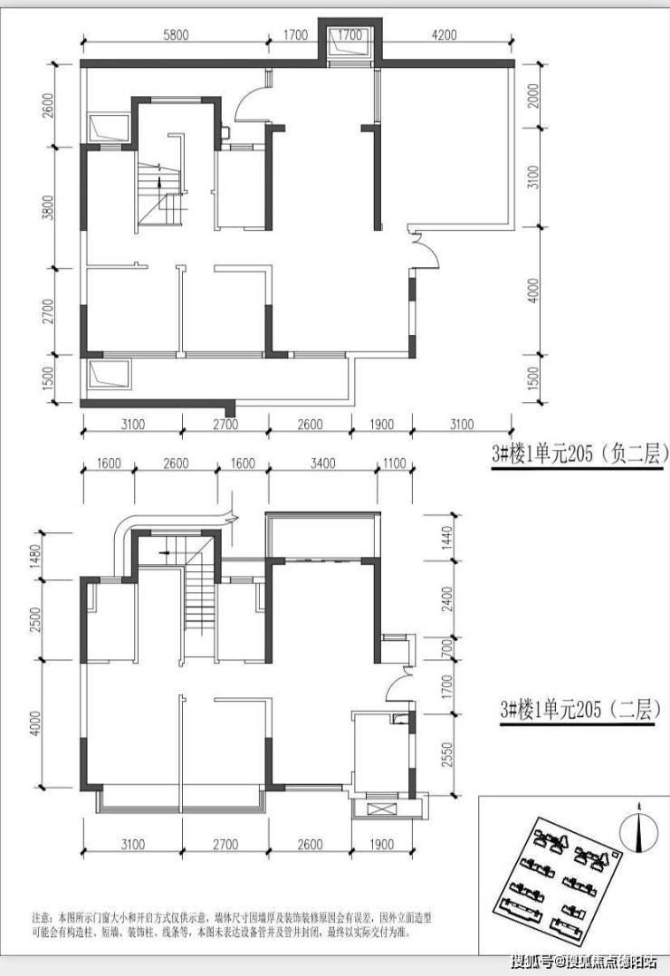
二、底跃户型图
 
 
 
 
 
二楼跃负二楼、有采光井
二期实体视频
地下室层高:-2层的面积比2层面积更大一些,挑高做到了约4.65m,约40㎡的朗阔空间可轻松实现空间功能变幻
精装带三大件
龙光配备了新风系统、中央空调、地暖三大件,可以24小时保证地下室的湿度和温度,同样精装的地下空间也可省一大笔费用
 
 
 
 
声明:本文由入驻焦点开放平台的作者撰写,除焦点官方账号外,观点仅代表作者本人,不代表焦点立场。
 
  
  
 
 
 

 
  
  
   
  