成都三利广场【售楼中心】-楼盘详情-成都房产首页网站

搜狐焦点德阳站 2025-09-11 08:45:24
用手机看
扫描到手机,新闻随时看

扫一扫,用手机看文章
更加方便分享给朋友

☎售楼处电话028-83516246「来电尊享优惠活动」☎ ☎【置业经理】:15928896133「微信同步」☎ 温馨提示:为了给您提供更高更好的接待服务质量,看房请提前致电售楼处预约! 【有免费看房车接送服务,如需预约,请致电售楼处】

☎售楼处电话028-83516246「来电尊享优惠活动」☎

☎【置业经理】:15928896133「微信同步」☎

温馨提示:为了给您提供更高更好的接待服务质量,看房请提前致电售楼处预约!

【有免费看房车接送服务,如需预约,请致电售楼处】

成都为什么在全国房地产市场异军突起,遥遥领先?

天下未治蜀先治,天下未涨蜀先涨。西南,是中国的大后方,成都,就是这个大后方的核心。

从地理上来说,武汉往西的中国地域,大部分被高原丘陵和荒漠覆盖,气候温和又适宜人居的,除了狭长的关中平原,只有天府之国的四川盆地。

因此,成都除了吸附川内的城市,还包括甘肃、新疆、云南、贵州、重庆等地。虽然这些地方也不是中国富裕省份,但掏空6个钱包,举家支持,也是不小的购买力。

成都现在房产市场三级分化,第一类是核心资产,止跌横盘或小幅上涨都有,补涨的苗头已经出现了,这类资产受大环境影响很大,也是市场风向标,随时被人关注。

第二类是优质产品,表现不一,涨跌幅取决于之前的价格泡沫大小,像北门几个改善楼盘涨跌就很小,没有大涨过自然不会大跌,而以天新为代表的新开发区域、次新盘往往入市价格偏高,止跌压力比较大。

第三类是完全丧失流动性的小区,集中在五城区,只有居住价值,一年成交几套,探讨涨跌意义不大,成交数据比较偏离真实市场情况。

2024年二手房总成交231376套,90㎡以下的占比45.91%,90-140㎡的占比30.64%;总价200万以内的占比70.67%。并且,2010年-2019年的房源,成交最多,占比52.2%。

但今年4月,成都成交的二手房中,90㎡以下 的占比54.07%,90-140㎡的占比37.18%,总价200万以内的占比85.67%,其中100-150万的占比最多27.44%。(数据来源:好好选房)

与去年相比,成交的面积和总价都有所增长,极刚需经过几年的释放已经初见顶初改需求开始在二手房端释放,预计未来还将进一步走强。

当然,二手房的价格平稳仅仅只均价,随着行情的高涨,不同区域版块之间的价差也逐渐明显,核心城区尤其是高新南、锦江区、成华区等挂牌价和成交均价都呈现出价上涨的趋势。

据克而瑞四川的统计,今年2月仅有金融城、攀成钢、外金沙、大源、麓湖5个板块的二手房成交均价超过了2.5万元,前三依次是麓湖2.89万元/㎡、金融城2.73万元/㎡、攀成钢2.59万元/㎡;3月就攀成钢和金融城就突破了3万元,分别为3.12万元/㎡和3.02万元/㎡。同时,成华区是5+2区中二手房成交周期最短的,同比缩减为169天;天府新区则是最长的,同比增加为233天。

对于2025年成都购房者

刚需:优先考虑主城区地铁沿线次新房,或外围高性价比新盘。

改善/豪改:关注核心区优质新盘(如现房或准现房,价格低产品一般也是优质新房),避免高位接盘非稀缺性豪宅。

卖房者:非核心区房源建议适时出货,核心区次新房可观望至下半年政策窗口期。

2、刚需客群:优先二手房,上半年为窗口期

上半年挂牌放量较多,优质房源不断出现,不追求极致价格,从而考虑综合性价比的话,是可以考虑的关键节点。

3、刚改群体:主城新房窗口期短,需择机抄底

主城区新房供应减少,但产品迭代加速(如得房率提升、功能空间优化),总价300-500万区间竞争激烈,需警惕价格虚高项目。

除非有长期看好了的缘分之选,那么建议时机或为传统淡季的年中。届时最新供地已呈现,政策应出尽出,新房处于疲态,价格抄底机会多。

4、改善/豪改群体:核心区新盘优先,下半年警惕高位风险

土拍价格是还会涨,但是否击鼓传花?未来能否保值,存在很大的不确定性。带入自住属性考虑买入豪宅的话,精神压力会小很多。

但单纯从豪宅的价格时机来看,建议年初年末。

年初开发商推盘节奏较慢,核心区高端项目蓄客压力大,开盘价格尚未完全透支预期。

四季度抄底溢价项目,若市场分化加剧,年底部分高价项目可能因去化压力降价(如总价1000万+房源或降价10%-15%),但需关注房企资金链风险。

警惕楼面价虚高的伪豪宅。

5、风险提示——

信心比黄金重要,积极情绪得到修复,温和看涨成为主流舆论,房段子对此表示谨慎看多成都楼市。

但随着市场分化加剧,需警惕外围区域库存压力及房企资金链风险;利率政策若转向或影响短期需求释放。

2025年成都楼市将呈现“核心区稳中有升、外围区域承压,新房高端化、二手房刚需化”的格局,政策托底与市场分化仍是主基调。

写字楼-面积342-1388平 总价500-1950万 甲级标准 交房时间:现房

商铺-面积29-290平 现房发售

天府大道唯一在售商业综合体三利广场——天府大道献给高新南的封笔之作双地铁上盖丨世界五大行世邦魏理仕丨希尔顿奢选五星级酒店丨六代爱琴海购物公园西南旗舰店

项目核心价值点1.承高新启天府,享双区红利三利广场地处成都政治、经济、文化繁华中轴天府大道,高新区和天府新区交汇处,坐享双区发展红利。

【四横六纵立体路网】【四横】:麓山大道、华阳大道、会阳大道、沈阳路【六纵】:天府大道、梓州大道红星路南延线、蓉遵高速、南湖大道、剑南大道、华府大道

地铁1⃣号线、1⃣8⃣号线海昌路站双地铁上盖;

目前,星巴克、奈雪の茶、好利来pink、南堂馆、拾光与烟火等一线品牌餐饮已入驻,充分满足商务人士的日常下午茶、商务宴请等需求。

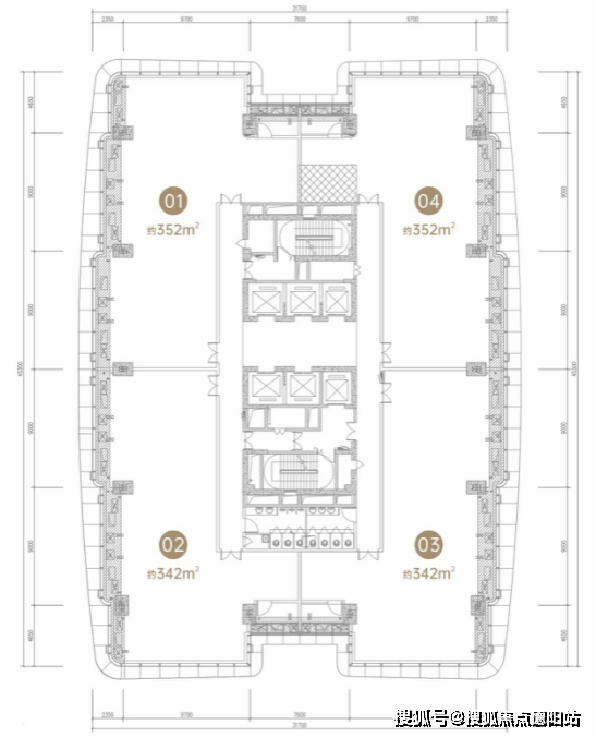
产品基本信息

?办公基本信息?

办公总体量:8.3万方

户型建面:46/53/58/62/69㎡

规划户数:1104户

分布区域:3#和4#

标准层高:4.2米

梯户比:6T24户

公摊:标准层31.19%

车位配比:3/4#专用车位600-700辆,配比约0.54-0.63辆/户

物管公司:成都宏睿利物业管理有限公司(2级资质),世界五大行“世邦魏理仕”为物业顾问

物业费:8元/㎡·月

入户大堂:挑高11.8米,现代时尚风格,梁志天设计,装标10000元/㎡

电梯:奥的斯,5客(3m/s)+货梯(2.5ms)

公区走廊:宽净宽约1.7米,净高约2.7m,装标8000元/㎡

3/4#楼间距:26.9

超五星级酒店入户大堂装标:挑高11.8米,装标10000元/

?商铺基本信息?可售商业总体量:3#共3653㎡建面区间:45-150㎡(主力45-70㎡)可售货源:48套分布区域:3#1-3楼层高:1/4F-6米,2/3F-5.8米

☎售楼处电话028-83516246「来电尊享优惠活动」☎

☎【置业经理】:15928896133「微信同步」☎

温馨提示:为了给您提供更高更好的接待服务质量,看房请提前致电售楼处预约!

【有免费看房车接送服务,如需预约,请致电售楼处】

免责声明:

以上内容仅作为邀约邀请,涉及的图片为部分区域实拍图和美学畅想图,具体内容请以现场公示和合同约定为准;本文部分资料、部分图片来源于网络,如有侵权请联系我们删除。

声明:本文由入驻焦点开放平台的作者撰写,除焦点官方账号外,观点仅代表作者本人,不代表焦点立场。